Sandiways, Maghull, Merseyside, L31
By Churcher Estates
£ 190,000
Reviews
3 out of 5 stars
Churcher Estates says ..
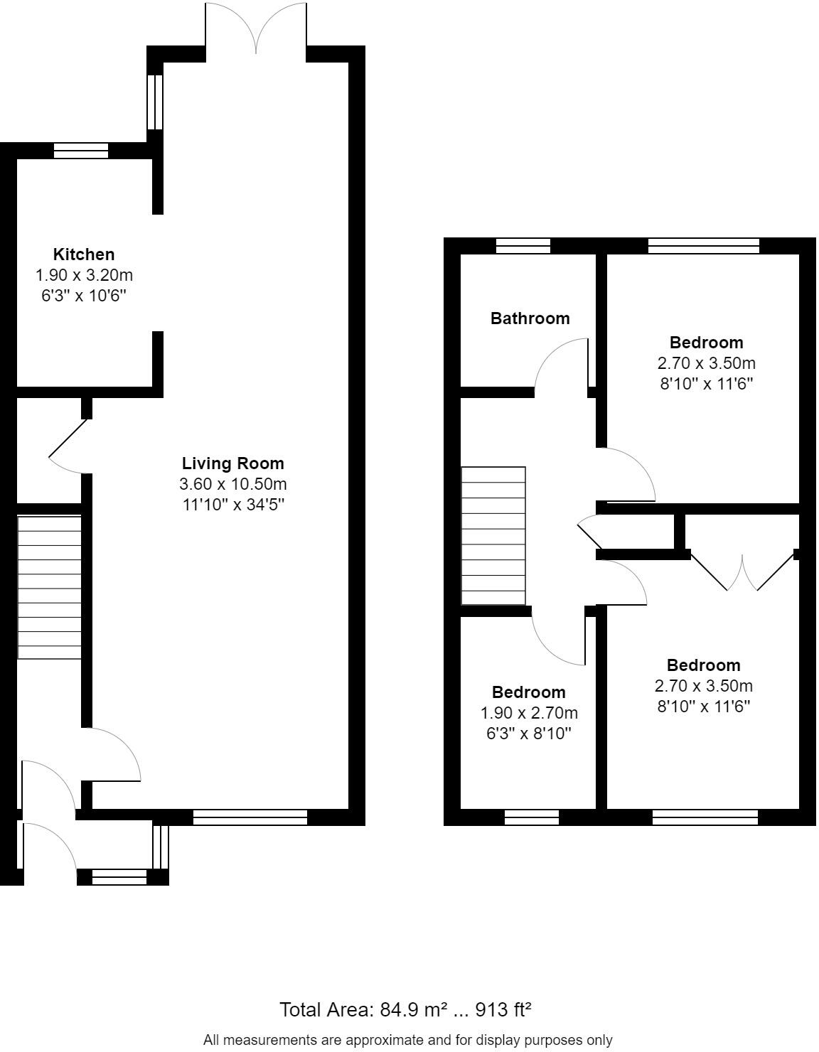
Churcher Estates are delighted to offer for sale this beautifully presented Three Bedroom Terraced Family Home not overlooked to the front or rear. This bright property boasts many features to include; 34' Lounge/Dining Room with a large picture window to the front and conservatory area to the rear.
Property Oracle says ..
This is a three-bedroom terraced house in Maghull, Merseyside. The property is in reasonable condition and has a modern kitchen and bathroom. It also has a good-sized garden with a shed. The property is located close to schools and public transportation. The listing price of £190,000 appears to be reasonable for the area and the condition of the property. The property benefits from a conservatory. The property is located near a park. The bathroom would benefit from modernisation. The property is listed with Churcher Estates.
Therefore, we give this property 7 / 10. *Disclaimer: This is our option and does constitute a recommendation or financial advice. Do your own research. *
- Price
- 8
- Condition
- 7
- Location
- 7
- Land
- 7
- Bedrooms
- 3
- Bathrooms
- 1
- Sqft (est)
- 913.86
The heatmap indicates the level of crime in the area. The color of the heatmap indicates the crime severity and recency.
Metrics Year-on-Year
- Average area value
- 257,222.00 £Decreased by 8.17 %
- Est sale value
- 226,637.28 £Increased by 16.43 %
- Average area rental value
- 1,100.00 £/moIncreased by 7.32 %
- Est letting value
- 913.86 £/mo
- Est rental Yield
- 5.13 %Increased by 16.86 %
- Crime Rate
- 10.00 %Unchanged by 0.00 %
Agent Activity
Churcher Estates created the listing.
Nearby Schools
| Name | Type | Ofsted | Distance |
|---|---|---|---|
| St Andrews Church Of England Primary School, Maghull | Academy Converter | 0.51 KM | |
| Deyes High School | Academy Converter | Good | 0.57 KM |
| Maricourt Catholic High School | Voluntary Aided School | Requires improvement | 0.69 KM |
| Northway Primary School | Community School | Good | 0.81 KM |
| St George'S Catholic Primary School | Voluntary Aided School | Good | 1.17 KM |
Images
Nearby Streets
| Name | Average Price | Average Sqft | Distance |
|---|---|---|---|
| Fir Cotes | £ 0 | 0 | 0.00 KM |
| Langdale Drive | £ 315,000 | 0 | 0.00 KM |
| Twyford Close | £ 0 | 0 | 0.00 KM |
| Little Acre | £ 585,000 | 0 | 0.00 KM |
| The Meadows | £ 0 | 0 | 0.00 KM |
Nearby Transport
| Name | NLC | TLC | Distance |
|---|---|---|---|
| Maghull | 2155 | MAG | 0.91 KM |
| Maghull North | 6576 | MNS | 1.60 KM |
| Old Roan | 2258 | ORN | 3.41 KM |
| Kirkby (Merseyside) | 2124 | KIR | 4.69 KM |
| Town Green | 2283 | TWN | 4.74 KM |
Nearby Listings
| Address | Price | Type | Score | Distance |
|---|---|---|---|---|
| Sandiways, Maghull, Merseyside, L31 | £ 190,000 | BUY | 7 / 10 | 0.00 KM |
| Court Hey, Maghull | £ 235,000 | BUY | 7 / 10 | 0.04 KM |
| Deyes Lane, Maghull | £ 240,000 | BUY | 7 / 10 | 0.08 KM |
| Deyes End, Liverpool, L31 | £ 265,000 | BUY | Unknown | 0.10 KM |
| Deyes End, Maghull | £ 265,000 | BUY | Unknown | 0.12 KM |
Nearby Properties
| Address | Price | Distance |
|---|---|---|
| 18 Sandiways | £ 128,000 | 0.00 KM |
| 19 Sandiways | £ 135,000 | 0.00 KM |
| 13 Sandiways | £ 165,000 | 0.00 KM |
| 23 Sandiways | £ 280,000 | 0.00 KM |
| 20 Sandiways | £ 148,000 | 0.00 KM |