Kestrel Lane, Hamilton, Leicester, Leicestershire, LE5 1BH
By Haus Estates
£ 370,000
Reviews
3 out of 5 stars
Haus Estates says ..
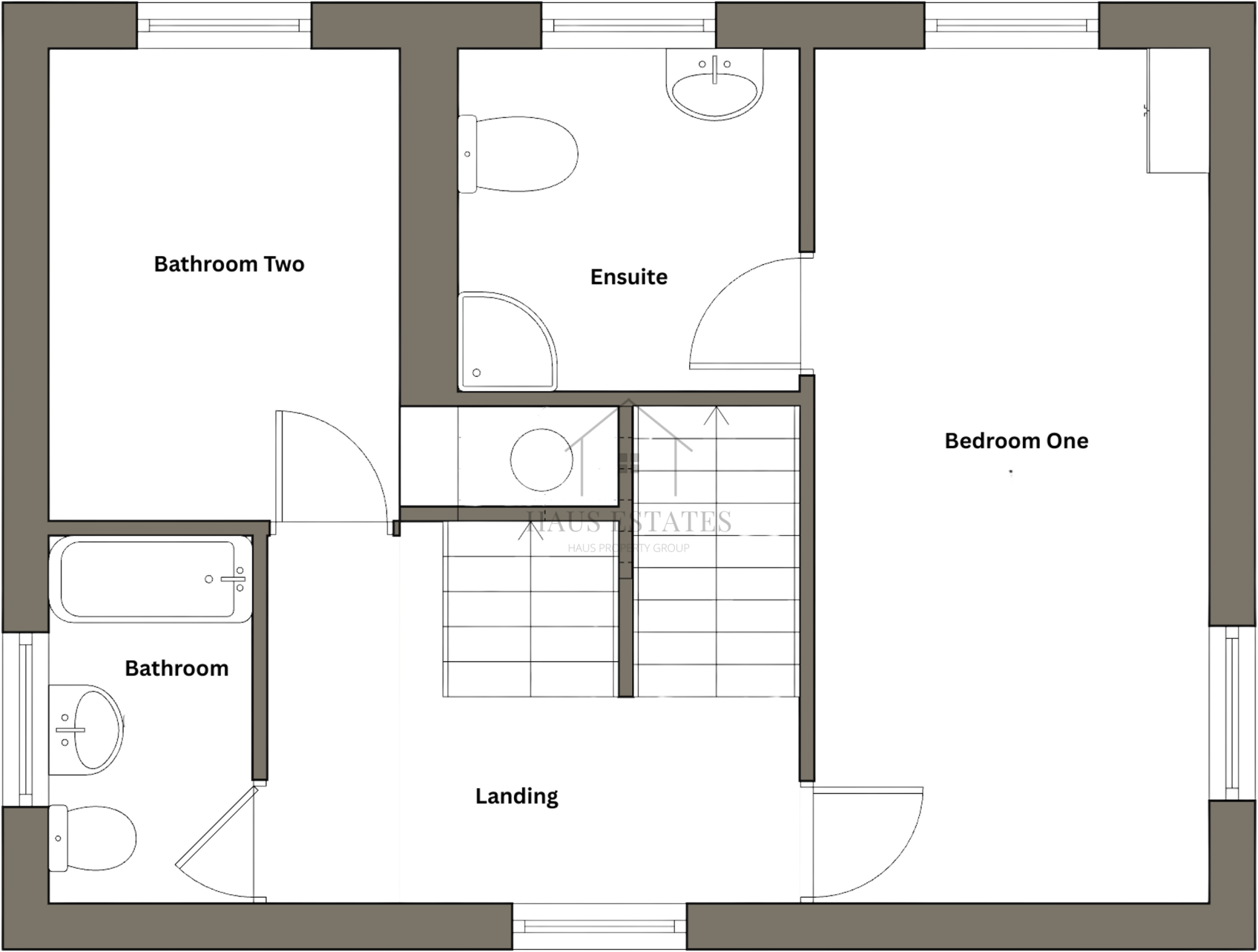
Haus Estates are delighted to market this four bedroom family home located in cul-de-sac, on Kestrel Lane, Hamilton. A highly sought after part of Leicester. Within easy walking distance to schools, local amenities and easy access to the A47
Property Oracle says ..
Therefore, we give this property 7 / 10. *Disclaimer: This is our option and does constitute a recommendation or financial advice. Do your own research. *
- Price
- 7
- Condition
- 8
- Location
- 7
- Land
- 7
- Bedrooms
- 4
- Bathrooms
- 1
- Sqft (est)
- 460.00
The heatmap indicates the level of crime in the area. The color of the heatmap indicates the crime severity and recency.
Metrics Year-on-Year
- Average area value
- 322,429.00 £Decreased by 3.54 %
- Est sale value
- 191,360.00 £Increased by 39.60 %
- Average area rental value
- 995.00 £/moDecreased by 17.36 %
- Est letting value
- 460.00 £/moUnchanged by 0.00 %
- Est rental Yield
- 3.70 %Decreased by 14.35 %
- Crime Rate
- 4.00 %Unchanged by 0.00 %
from 334,261.00 £
from 137,080.00 £
from 1,204.00 £/mo
from 460.00 £/mo
from 4.32 %
from 4.00 %
Agent Activity
Haus Estates marked this listing as sold.
Haus Estates created the listing.
Nearby Schools
| Name | Type | Ofsted | Distance |
|---|---|---|---|
| Hope Hamilton Cofe Primary School | Academy Converter | 0.45 KM | |
| Gateway Sixth Form College | Academy 16-19 Converter | Good | 0.61 KM |
| Hamilton Sure Start Children'S Centre | Children's Centre Linked Site | 0.96 KM | |
| Kestrel Mead Primary Academy | Academy Converter | 0.96 KM | |
| Keyham Lodge School | Academy Special Converter | 1.03 KM |
Images
Nearby Streets
| Name | Average Price | Average Sqft | Distance |
|---|---|---|---|
| Pearl Way | £ 0 | 0 | 0.00 KM |
| Harebell Close | £ 575,000 | 0 | 0.00 KM |
| Overstrand Road | £ 0 | 0 | 0.00 KM |
| Topaz Way | £ 625,000 | 0 | 0.00 KM |
| Marsham Close | £ 0 | 0 | 0.00 KM |
Nearby Transport
| Name | NLC | TLC | Distance |
|---|---|---|---|
| Syston | 1900 | SYS | 4.46 KM |
| Leicester | 1947 | LEI | 6.71 KM |
| Sileby | 1902 | SIL | 9.50 KM |
Nearby Listings
| Address | Price | Type | Score | Distance |
|---|---|---|---|---|
| Kestrel Lane, Hamilton, Leicester, Leicestershire, LE5 1BH | £ 370,000 | BUY | 7 / 10 | 0.00 KM |
| Kestrel Lane, Hamilton, Leicester, Leicestershire | £ 380,000 | BUY | 6 / 10 | 0.00 KM |
| Hanworth Close, Hamilton, Leicester, LE5 | £ 335,000 | BUY | 7 / 10 | 0.09 KM |
| Kestrel Lane, Hamilton, LE5 | £ 139,950 | BUY | 6 / 10 | 0.12 KM |
| Columbine Road, Hamilton, Leicester, Leicestershire, LE5 | £ 615,000 | BUY | 7 / 10 | 0.14 KM |
Nearby Properties
| Address | Price | Distance |
|---|---|---|
| 7 Hanworth Close | £ 181,000 | 0.06 KM |
| 4 Hanworth Close | £ 215,000 | 0.06 KM |
| 11 Hanworth Close | £ 208,000 | 0.06 KM |
| 6 Hanworth Close | £ 137,500 | 0.06 KM |
| 8 Hanworth Close | £ 164,950 | 0.06 KM |