iMove Property says ..
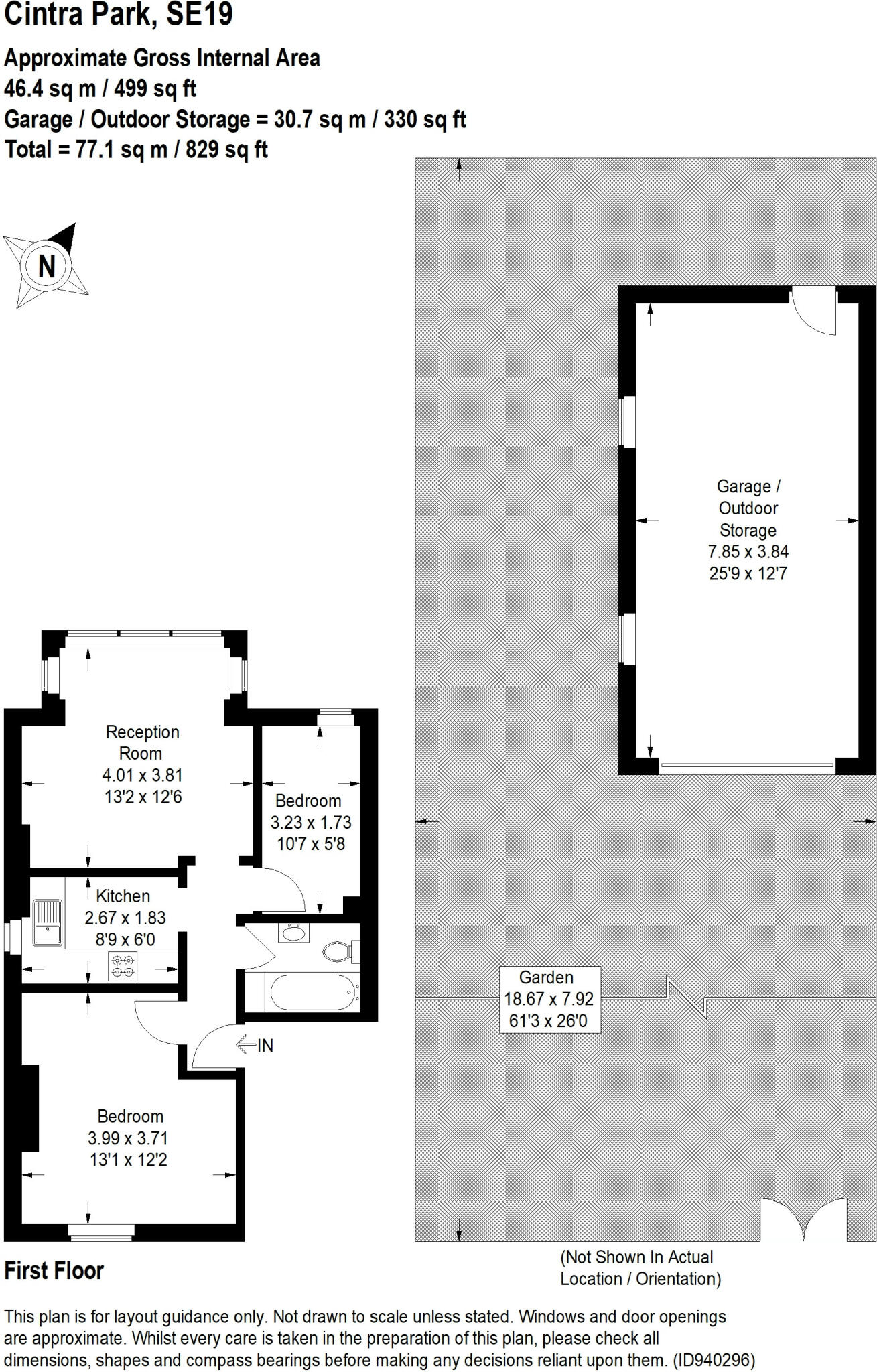
TWO bedroom VICTORIAN CONVERSION with PRIVATE GARDEN and GARAGE. A desirable location: the TRIANGLE, STATION and PARK are all just moments away. Offered with a SHARE OF THE FREEHOLD, contact the IMOVE TEAM for your VIEWING
Property Oracle says ..
This two-bedroom Victorian conversion flat in Crystal Palace, London, presents a compelling opportunity for buyers. The property benefits from a desirable location close to Crystal Palace station and park, with excellent transport links and highly-rated schools nearby. The interior appears well-maintained, offering a modern feel with some updates, but potential buyers should undertake a full survey. While the garden is a considerable asset, its size appears modest and the provided photos do not show precise dimensions. The overall condition is good, showing no major issues but some minor work may be needed in the future. The asking price of £450,000 should be viewed against other properties in the area; some comparable properties were listed at notably higher prices. Prospective buyers are advised to seek a professional survey and valuation to confirm its worth based on their individual requirements and the state of the market at the time of purchase.
Therefore, we give this property 6 / 10. *Disclaimer: This is our option and does constitute a recommendation or financial advice. Do your own research. *
- Price
- 7
- Condition
- 7
- Location
- 8
- Land
- 4
- Bedrooms
- 2
- Bathrooms
- 1
- Sqft (est)
- 829.90
The heatmap indicates the level of crime in the area. The color of the heatmap indicates the crime severity and recency.
Metrics Year-on-Year
- Average area value
- 445,000.00 £Increased by 0.77 %
- Est sale value
- 554,373.20 £Increased by 14.58 %
- Average area rental value
- 1,900.00 £/moIncreased by 9.38 %
- Est letting value
- 1,659.80 £/moUnchanged by 0.00 %
- Est rental Yield
- 5.12 %Increased by 8.47 %
- Crime Rate
- 5.00 %Unchanged by 0.00 %
Agent Activity
iMove Property marked this listing as sold.
iMove Property created the listing.
Nearby Schools
| Name | Type | Ofsted | Distance |
|---|---|---|---|
| Harris City Academy Crystal Palace | Academy Sponsor Led | Outstanding | 0.70 KM |
| Paxton Primary School | Community School | Outstanding | 0.72 KM |
| James Dixon Primary School | Academy Converter | Good | 1.09 KM |
| All Saints Cofe Primary School | Voluntary Aided School | Good | 1.32 KM |
| Cypress Primary School | Academy Sponsor Led | Good | 1.34 KM |
Images
Nearby Streets
| Name | Average Price | Average Sqft | Distance |
|---|---|---|---|
| Brunswick Place | £ 0 | 0 | 0.00 KM |
| Crystal Palace Parade | £ 650,000 | 0 | 0.00 KM |
| Belvedere Road | £ 0 | 0 | 0.00 KM |
| Tudor Road | £ 0 | 0 | 0.00 KM |
| Bowley Close | £ 0 | 0 | 0.00 KM |
Nearby Transport
| Name | NLC | TLC | Distance |
|---|---|---|---|
| Crystal Palace | 5356 | CYP | 0.38 KM |
| Gipsy Hill | 5363 | GIP | 1.12 KM |
| Anerley | 5397 | ANZ | 1.30 KM |
| Penge West | 5378 | PNW | 1.68 KM |
| Sydenham Hill | 5085 | SYH | 1.71 KM |
Nearby Listings
| Address | Price | Type | Score | Distance |
|---|---|---|---|---|
| Cintra Park, London, SE19 | £ 450,000 | BUY | 6 / 10 | 0.00 KM |
| Cintra Park, Crystal Palace, London, SE19 | £ 475,000 | BUY | Unknown | 0.02 KM |
| Cintra Park, London, SE19 | £ 425,000 | BUY | 7 / 10 | 0.04 KM |
| Cintra Park, London, SE19 | £ 375,000 | BUY | 7 / 10 | 0.05 KM |
| Palace Square, London, SE19 | £ 800,000 | BUY | 6 / 10 | 0.09 KM |
Nearby Properties
| Address | Price | Distance |
|---|---|---|
| 2b Cintra Park | £ 450,000 | 0.02 KM |
| 23a Cintra Park | £ 445,000 | 0.02 KM |
| 25d Cintra Park | £ 375,000 | 0.02 KM |
| 3a Cintra Park | £ 565,000 | 0.02 KM |
| 13a Cintra Park | £ 565,000 | 0.02 KM |