Pearsons says ..
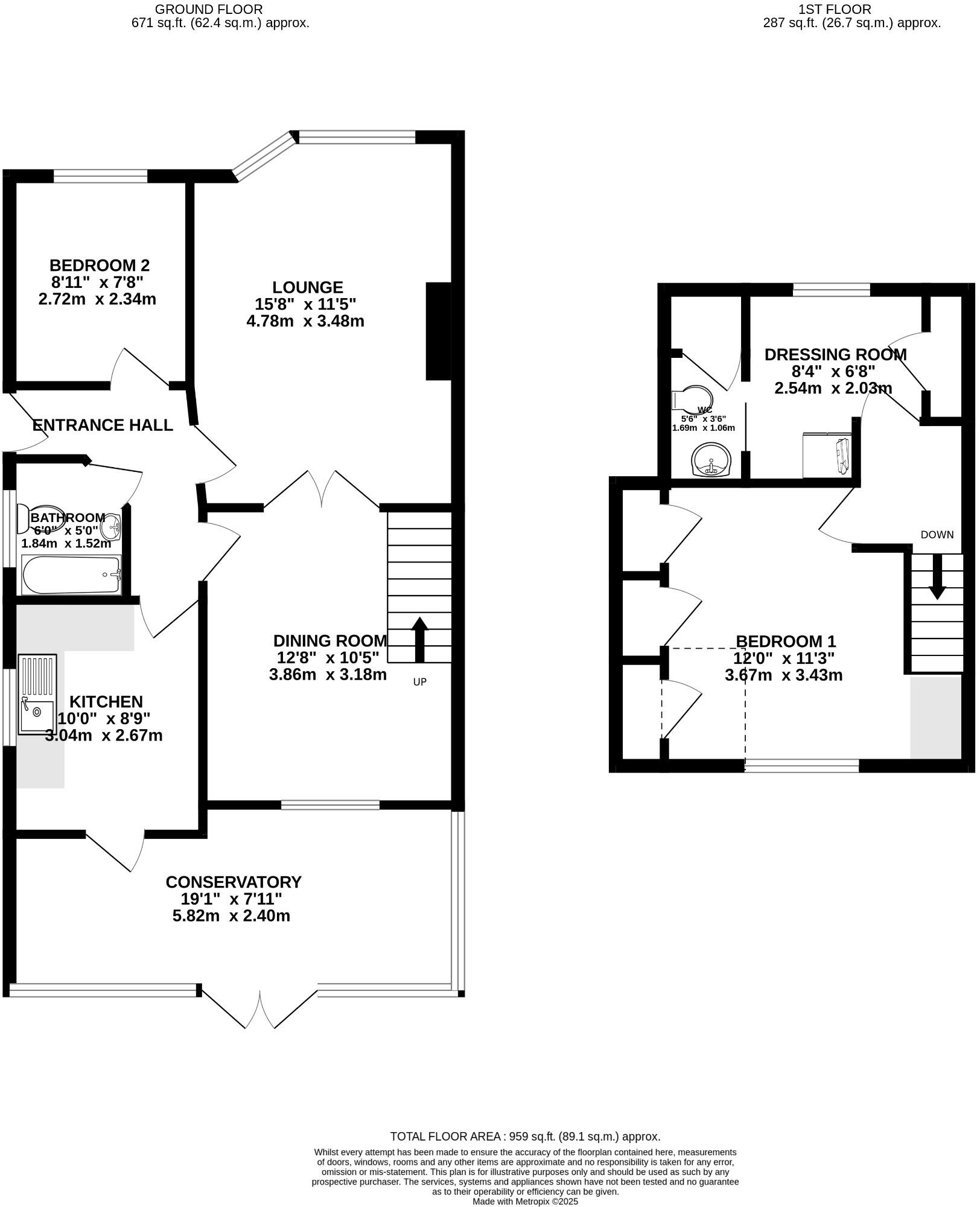
NO FORWARD CHAIN. An extended two bedroom, two reception room semi-detached bungalow located within a popular residential area which has views at the rear over Blackbrook Park. The property's accommodation briefly comprises; entrance hall, lounge, separate dining room with stairs to first floor, ...
Property Oracle says ..
This is a two-bedroom semi-detached bungalow in Fareham, Hampshire. The property offers 841.25 sqft of living space and includes a garden. While the property is in reasonable condition, it would benefit from some modernisation, particularly in the kitchen and bathroom. The location is convenient, with schools and transportation links nearby. The asking price of £295,000 seems reasonable given the size, location, and condition of the property.
Therefore, we give this property 6 / 10. *Disclaimer: This is our option and does constitute a recommendation or financial advice. Do your own research. *
- Price
- 7
- Condition
- 5
- Location
- 7
- Land
- 6
- Bedrooms
- 2
- Bathrooms
- 1
- Sqft (est)
- 841.25
The heatmap indicates the level of crime in the area. The color of the heatmap indicates the crime severity and recency.
Metrics Year-on-Year
- Average area value
- 429,993.00 £Increased by 1.22 %
- Est sale value
- 322,198.75 £Increased by 9.12 %
- Average area rental value
- 1,850.00 £/moIncreased by 33.29 %
- Est letting value
- 841.25 £/moUnchanged by 0.00 %
- Est rental Yield
- 5.16 %Increased by 31.63 %
- Crime Rate
- 1.00 %Unchanged by 0.00 %
Agent Activity
Pearsons created the listing.
Nearby Schools
| Name | Type | Ofsted | Distance |
|---|---|---|---|
| St Francis Special School | Community Special School | Good | 0.51 KM |
| Heathfield Special School | Community Special School | Good | 0.59 KM |
| Ranvilles Junior School | Community School | Good | 0.71 KM |
| Ranvilles Infant School | Community School | Outstanding | 0.71 KM |
| St Columba Ce Primary School | Academy Sponsor Led | 0.79 KM |
Images
Nearby Streets
| Name | Average Price | Average Sqft | Distance |
|---|---|---|---|
| Sandisplatt | £ 254,975 | 0 | 0.00 KM |
| Poppy Gardens | £ 0 | 0 | 0.00 KM |
| Coppice Way | £ 440,000 | 0 | 0.00 KM |
| Rowan Way | £ 300,000 | 0 | 0.00 KM |
| Brendon Road | £ 269,950 | 0 | 0.00 KM |
Nearby Transport
| Name | NLC | TLC | Distance |
|---|---|---|---|
| Fareham | 5900 | FRM | 2.61 KM |
| Swanwick | 5920 | SNW | 6.02 KM |
| Botley | 5894 | BOE | 8.38 KM |
Nearby Listings
| Address | Price | Type | Score | Distance |
|---|---|---|---|---|
| NAPIER CRESCENT, FAREHAM, | £ 295,000 | BUY | 6 / 10 | 0.00 KM |
| Bradly Road, Fareham | £ 345,000 | BUY | 7 / 10 | 0.05 KM |
| Bradly Road, Fareham | £ 340,000 | BUY | Unknown | 0.05 KM |
| Highlands Road, Fareham, Hampshire, PO15 | £ 315,000 | BUY | 6 / 10 | 0.12 KM |
| Highlands Road, Fareham | £ 425,000 | BUY | 8 / 10 | 0.12 KM |
Nearby Properties
| Address | Price | Distance |
|---|---|---|
| 9 Bradly Road | £ 250,000 | 0.05 KM |
| 5 Bradly Road | £ 285,000 | 0.05 KM |
| 11 Bradly Road | £ 155,000 | 0.05 KM |
| 7 Bradly Road | £ 237,000 | 0.05 KM |
| 13 Bradly Road | £ 405,000 | 0.07 KM |