Machin Lane says ..
Nestled on the charming Rushdean Road in Rochester, this delightful semi-detached house offers a perfect blend of space and comfort. With a generous 1,550 square feet of living area, this property is ideal for families seeking a welcoming home. The house boasts three well-proportioned re...
Property Oracle says ..
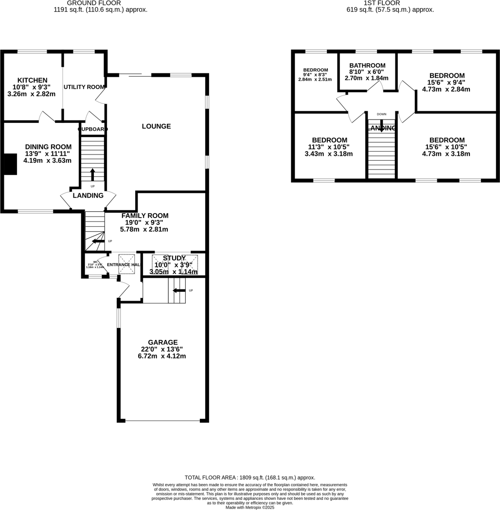
This is a semi-detached property located on Rushdean Road in Strood South, Rochester. It features four bedrooms and one bathroom, with a spacious 1,809.41 sq ft of living space. The property includes a garden and off-street parking. While some areas of the house have been updated, other parts, like the kitchen and one of the bathrooms, are dated and could use renovation. The location is convenient, with several schools and transportation options nearby. The asking price of £425,000 seems reasonable given the size and features of the property, but potential buyers should factor in the cost of planned renovations.
Therefore, we give this property 6 / 10. *Disclaimer: This is our option and does constitute a recommendation or financial advice. Do your own research. *
- Price
- 7
- Condition
- 6
- Location
- 7
- Land
- 7
- Bedrooms
- 4
- Bathrooms
- 1
- Sqft (est)
- 1,809.41
The heatmap indicates the level of crime in the area. The color of the heatmap indicates the crime severity and recency.
Metrics Year-on-Year
- Average area value
- 272,545.00 £Decreased by 13.33 %
- Est sale value
- 747,286.33 £Increased by 9.26 %
- Average area rental value
- 1,483.00 £/moIncreased by 11.09 %
- Est letting value
- 3,618.82 £/moIncreased by 100.00 %
- Est rental Yield
- 6.53 %Increased by 28.29 %
- Crime Rate
- 9.00 %Unchanged by 0.00 %
Agent Activity
Machin Lane created the listing.
Nearby Schools
| Name | Type | Ofsted | Distance |
|---|---|---|---|
| Cedar Children'S Academy | Academy Sponsor Led | Good | 0.90 KM |
| Elaine Primary School | Academy Sponsor Led | 1.22 KM | |
| Strood Academy | Academy Sponsor Led | Good | 1.23 KM |
| Bligh Primary School (Juniors) | Academy Converter | 1.25 KM | |
| Bligh Primary School (Infants) | Academy Converter | 1.25 KM |
Images
Nearby Streets
| Name | Average Price | Average Sqft | Distance |
|---|---|---|---|
| Lincoln Close | £ 270,000 | 0 | 0.00 KM |
| Wakefield Close | £ 240,000 | 0 | 0.00 KM |
| A2 | £ 375,000 | 0 | 0.00 KM |
| M2 | £ 550,000 | 0 | 0.00 KM |
| Ash Road | £ 0 | 0 | 0.00 KM |
Nearby Transport
| Name | NLC | TLC | Distance |
|---|---|---|---|
| Cuxton | 5201 | CUX | 1.59 KM |
| Strood (Kent) | 5191 | SOO | 3.60 KM |
| Rochester | 5203 | RTR | 4.52 KM |
| Higham | 5202 | HGM | 4.53 KM |
| Halling | 5173 | HAI | 4.61 KM |
Nearby Listings
| Address | Price | Type | Score | Distance |
|---|---|---|---|---|
| Rushdean Road, Rochester | £ 425,000 | BUY | 6 / 10 | 0.00 KM |
| Rushdean Road, Rochester, Kent, ME2 | £ 400,000 | BUY | 6 / 10 | 0.06 KM |
| Hillshaw Crescent, Rochester, ME2 | £ 425,000 | BUY | 7 / 10 | 0.11 KM |
| Ranscombe Close, Rochester, Kent | £ 325,000 | BUY | Unknown | 0.12 KM |
| Bootham Close, Strood, Rochester, Kent, ME2 | £ 425,000 | BUY | 7 / 10 | 0.14 KM |
Nearby Properties
| Address | Price | Distance |
|---|---|---|
| 37 Hillshaw Crescent | £ 300,000 | 0.11 KM |
| 51 Hillshaw Crescent | £ 142,500 | 0.11 KM |
| 59 Hillshaw Crescent | £ 83,000 | 0.11 KM |
| 30 Hillshaw Crescent | £ 285,000 | 0.11 KM |
| 53 Hillshaw Crescent | £ 240,000 | 0.11 KM |