Northwood Road, Tankerton, Whitstable
CH

Northwood Road, Tankerton, Whitstable

By Christopher Hodgson

£ 750,000

Reviews

2 out of 5 stars

Christopher Hodgson says ..

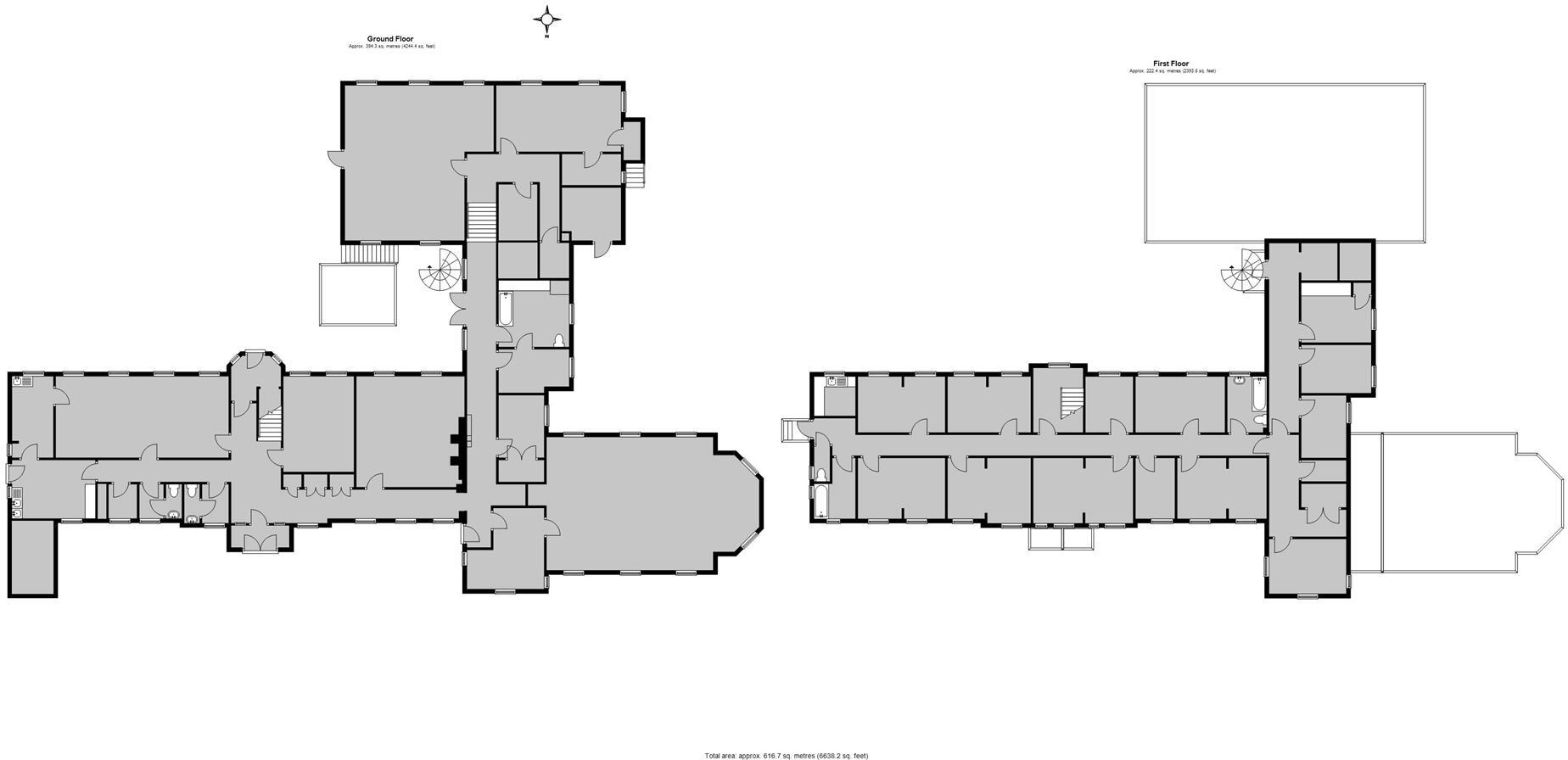
A development opportunity with significant potential, ideally positioned on a desirable road within central Tankerton, conveniently situated within close proximity to Tankerton's charming seafront, shops and amenities on Tankerton Road, and a short walk from Whitstable station (0.8 miles).

Property Oracle says ..

This property, located on Northwood Road in Tankerton, Whitstable, presents a unique opportunity. Currently listed as a plot, the existing structure appears to be a former convent with a chapel. The property boasts a substantial land area and is situated in a desirable coastal location near local amenities and schools. However, the buildings on the plot are in need of extensive renovation, as evidenced by the boarded-up windows and dated interiors. The large garden offers significant potential for landscaping or further development. While the asking price of £750,000 reflects the property’s size and location, the considerable renovation costs should be factored into any investment decision.

Therefore, we give this property 5 / 10. *Disclaimer: This is our option and does constitute a recommendation or financial advice. Do your own research. *

Price
6
Condition
2
Location
7
Land
8
Bedrooms
0
Bathrooms
0
Sqft (est)
6,638.10

The heatmap indicates the level of crime in the area. The color of the heatmap indicates the crime severity and recency.

Metrics Year-on-Year

Average area value
975,000.00 £
Increased by 29.96 %
from 750,202.00 £
Est sale value
5,051,594.10 £
Increased by 57.56 %
from 3,206,202.30 £
Average area rental value
1,098.00 £/mo
Decreased by 33.70 %
from 1,656.00 £/mo
Est letting value
0.00 £/mo
Decreased by 100.00 %
from 6,638.10 £/mo
Est rental Yield
1.35 %
Decreased by 49.06 %
from 2.65 %
Crime Rate
2.00 %
Unchanged by 0.00 %
from 2.00 %

Agent Activity

  • Christopher Hodgson created the listing.

Nearby Schools

NameTypeOfstedDistance
St Mary'S Catholic Primary School, WhitstableAcademy ConverterGood0.06 KM
Westmeads Community Infant SchoolCommunity SchoolOutstanding1.02 KM
The Whitstable SchoolAcademy Converter1.15 KM
Whitstable And Seasalter Endowed Church Of England Junior SchoolVoluntary Aided SchoolOutstanding1.47 KM
Isp Polar Re Start CentreOther Independent Special School1.48 KM

Images

Northwood Road, Tankerton, Whitstable Northwood Road, Tankerton, Whitstable Northwood Road, Tankerton, Whitstable Northwood Road, Tankerton, Whitstable Northwood Road, Tankerton, Whitstable Northwood Road, Tankerton, Whitstable Northwood Road, Tankerton, Whitstable Northwood Road, Tankerton, Whitstable Northwood Road, Tankerton, Whitstable Northwood Road, Tankerton, Whitstable Northwood Road, Tankerton, Whitstable Northwood Road, Tankerton, Whitstable Northwood Road, Tankerton, Whitstable Northwood Road, Tankerton, Whitstable Northwood Road, Tankerton, Whitstable Northwood Road, Tankerton, Whitstable Northwood Road, Tankerton, Whitstable Northwood Road, Tankerton, Whitstable Northwood Road, Tankerton, Whitstable Northwood Road, Tankerton, Whitstable Northwood Road, Tankerton, Whitstable

Nearby Streets

NameAverage PriceAverage SqftDistance
Tower Road £ 000.00 KM
Northwood Road £ 449,99500.00 KM
Juniper Close £ 595,00000.00 KM
Linden Avenue £ 555,00000.00 KM
Nursery Close £ 000.00 KM

Nearby Transport

NameNLCTLCDistance
Whitstable5196WHI0.75 KM
Chestfield And Swalecliffe5200CSW3.13 KM
Herne Bay5174HNB8.75 KM
Canterbury West5007CBW9.52 KM

Nearby Listings

AddressPriceTypeScoreDistance
Northwood Road, Tankerton, Whitstable £ 750,000BUY5 / 100.00 KM
Kingsdown Park, Tankerton, Whitstable £ 895,000BUY6 / 100.06 KM
Kingsdown Park, Tankerton, Whitstable £ 975,000BUY8 / 100.08 KM
Strangford Road, Tankerton, Whitstable £ 1,075,000BUY8 / 100.11 KM
Kingsdown Park, Tankerton, Whitstable £ 625,000BUY7 / 100.11 KM

Nearby Properties

AddressPriceDistance
22 Kingsdown Park £ 407,5000.03 KM
14 Kingsdown Park £ 235,0000.03 KM
12a Kingsdown Park £ 392,0000.03 KM
28 Kingsdown Park £ 861,0000.12 KM
32 Kingsdown Park £ 1,375,0000.12 KM