Hunter & Hunter says ..
Hunter & Hunter Are Proud to Present This 4 Bedroom Semi-Detached House For Sale.
Property Oracle says ..
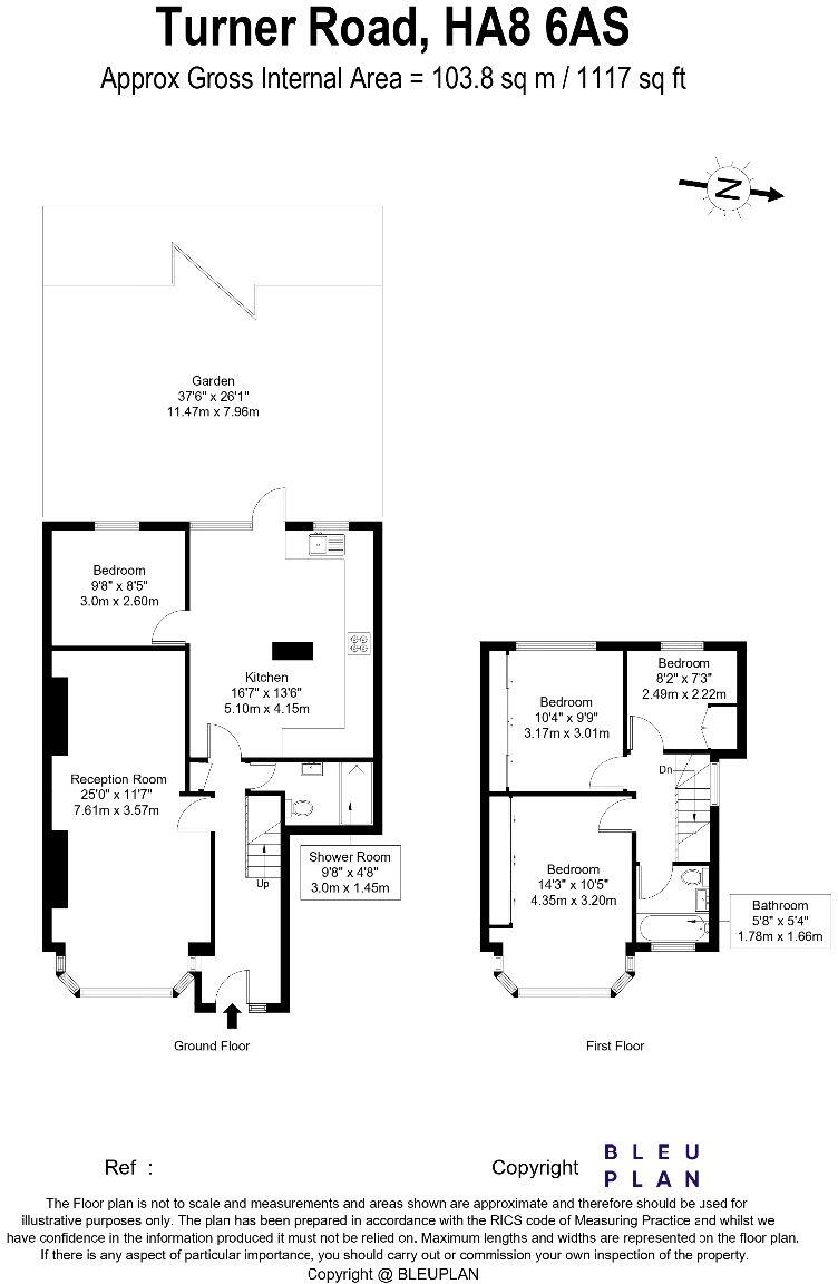
The property is a 4-bedroom, 2-bathroom semi-detached house located in Canons, Harrow. The list price is slightly above average for the area but significantly below average price per sqft, potentially due to its smaller size compared to the average. The property appears to be in reasonable condition, with some areas showing signs of wear and tear. The kitchen and bathrooms look well-maintained. The property benefits from a garden and is conveniently located near several well-regarded schools and transportation links. Further investigation is needed to fully assess the location and the overall value for money.
Therefore, we give this property 7 / 10. *Disclaimer: This is our option and does constitute a recommendation or financial advice. Do your own research. *
- Price
- 7
- Condition
- 7
- Location
- 8
- Land
- 6
- Bedrooms
- 4
- Bathrooms
- 2
- Sqft (est)
- 465.00
- Lot (est)
- 1,117.00
The heatmap indicates the level of crime in the area. The color of the heatmap indicates the crime severity and recency.
Metrics Year-on-Year
- Average area value
- 625,703.00 £Decreased by 3.61 %
- Est sale value
- 218,085.00 £Increased by 34.38 %
- Average area rental value
- 2,383.00 £/moDecreased by 5.55 %
- Est letting value
- 465.00 £/moUnchanged by 0.00 %
- Est rental Yield
- 4.57 %Decreased by 1.93 %
- Crime Rate
- 6.00 %Unchanged by 0.00 %
Agent Activity
Hunter & Hunter created the listing.
Nearby Schools
| Name | Type | Ofsted | Distance |
|---|---|---|---|
| North London Collegiate School | Other Independent School | 0.57 KM | |
| Whitchurch Primary School & Nursery | Community School | Good | 0.77 KM |
| Avanti House School | Free Schools | Good | 0.81 KM |
| Aylward Primary School | Academy Sponsor Led | Good | 0.87 KM |
| Woodlands School | Community Special School | Outstanding | 1.08 KM |
Images
Nearby Streets
| Name | Average Price | Average Sqft | Distance |
|---|---|---|---|
| Chestnut Avenue | £ 0 | 0 | 0.00 KM |
| Peters Close | £ 654,875 | 0 | 0.00 KM |
| St. Lawrence Close | £ 0 | 0 | 0.00 KM |
| Marsh Lane | £ 0 | 0 | 0.00 KM |
| Stonegrove Court | £ 0 | 0 | 0.00 KM |
Nearby Transport
| Name | NLC | TLC | Distance |
|---|---|---|---|
| Kenton | 1399 | KNT | 3.81 KM |
| South Kenton | 1453 | SOK | 4.55 KM |
| Harrow And Wealdstone | 1397 | HRW | 4.62 KM |
| Elstree And Borehamwood | 1542 | ELS | 5.20 KM |
| Mill Hill Broadway | 1527 | MIL | 5.25 KM |
Nearby Listings
| Address | Price | Type | Score | Distance |
|---|---|---|---|---|
| Turner Road | £ 625,000 | BUY | 7 / 10 | 0.00 KM |
| Howberry Road, Edgware, HA8 | £ 850,000 | BUY | 6 / 10 | 0.12 KM |
| Howberry Road, Edgware, HA8 | £ 855,000 | BUY | 7 / 10 | 0.13 KM |
| Howberry Road, Edgware | £ 875,000 | BUY | 6 / 10 | 0.13 KM |
| Watersfield Way, Edgware, Middlesex, HA8 6RZ | £ 575,000 | BUY | Unknown | 0.13 KM |
Nearby Properties
| Address | Price | Distance |
|---|---|---|
| 31 Cheyneys Avenue | £ 735,000 | 0.01 KM |
| 23 Cheyneys Avenue | £ 80,000 | 0.01 KM |
| 1 Cheyneys Avenue | £ 660,000 | 0.01 KM |
| 35 Cheyneys Avenue | £ 455,000 | 0.01 KM |
| 12 Cheyneys Avenue | £ 117,000 | 0.04 KM |