Chappells says ..
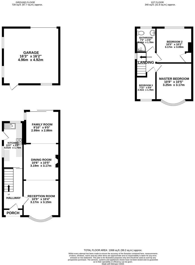
***New Instruction*** ATTRACTIVE 1930’S SEMI DETACHED FAMILY HOME, OFFERED TO THE MARKET WITH NO ONWARD CHAIN IN THE POPULAR RESIDENTIAL AREA OF MOREDON. THE SPACIOUS PROPERTY OFFERS FANTASTIC DEVELOPMENT OPPORTUNITY WITH AN EXTENDED, SEMI-OPEN PLAN LAYOUT TO THE GROUND FLOOR AND SEPARATE KITCHEN...
Property Oracle says ..
Therefore, we give this property 7 / 10. *Disclaimer: This is our option and does constitute a recommendation or financial advice. Do your own research. *
- Price
- 8
- Condition
- 6
- Location
- 7
- Land
- 7
- Bedrooms
- 3
- Bathrooms
- 1
- Sqft (est)
- 958.70
The heatmap indicates the level of crime in the area. The color of the heatmap indicates the crime severity and recency.
Metrics Year-on-Year
- Average area value
- 481,967.00 £Increased by 28.07 %
- Est sale value
- 383,480.00 £Decreased by 15.97 %
- Average area rental value
- 1,254.00 £/moIncreased by 10.97 %
- Est letting value
- 958.70 £/moUnchanged by 0.00 %
- Est rental Yield
- 3.12 %Decreased by 13.33 %
- Crime Rate
- 4.00 %Unchanged by 0.00 %
from 376,332.00 £
from 456,341.20 £
from 1,130.00 £/mo
from 958.70 £/mo
from 3.60 %
from 4.00 %
Agent Activity
Chappells created the listing.
Nearby Schools
| Name | Type | Ofsted | Distance |
|---|---|---|---|
| Rodbourne Cheney Primary School | Academy Converter | 0.23 KM | |
| Moredon Primary School | Academy Converter | 0.56 KM | |
| Nova Hreod Academy | Academy Converter | Good | 0.85 KM |
| Moredon Children'S Centre | Children's Centre | 0.86 KM | |
| Haydon Wick Primary School | Academy Converter | 0.91 KM |
Images
Nearby Streets
| Name | Average Price | Average Sqft | Distance |
|---|---|---|---|
| Coombe Road | £ 0 | 0 | 0.00 KM |
| Fernham Road | £ 0 | 0 | 0.00 KM |
| Allison Court | £ 150,000 | 0 | 0.00 KM |
| Firth Close | £ 0 | 0 | 0.00 KM |
| Aubrey Gardens | £ 0 | 0 | 0.00 KM |
Nearby Transport
| Name | NLC | TLC | Distance |
|---|---|---|---|
| Swindon (Wilts) | 3333 | SWI | 2.68 KM |
Nearby Listings
| Address | Price | Type | Score | Distance |
|---|---|---|---|---|
| Church Walk North, Swindon | £ 290,000 | BUY | 7 / 10 | 0.00 KM |
| Church Walk North, Swindon | £ 285,000 | BUY | 7 / 10 | 0.05 KM |
| Church Walk North, Swindon, SN25 3 | £ 300,000 | BUY | 6 / 10 | 0.06 KM |
| Church Walk North, Swindon, Wiltshire, SN25 | £ 300,000 | BUY | 7 / 10 | 0.08 KM |
| Church Walk North, Swindon, Wiltshire | £ 300,000 | BUY | 7 / 10 | 0.09 KM |
Nearby Properties
| Address | Price | Distance |
|---|---|---|
| 28 Moredon Road | £ 217,000 | 0.08 KM |
| 60 Moredon Road | £ 180,000 | 0.08 KM |
| 19 Church Walk North | £ 325,000 | 0.08 KM |
| 1 Church Walk North | £ 144,995 | 0.08 KM |
| 9 Church Walk North | £ 265,000 | 0.08 KM |