North Wall says ..
Welcome to this inviting mid-terraced property that seamlessly blends style, comfort and convinence.
Property Oracle says ..
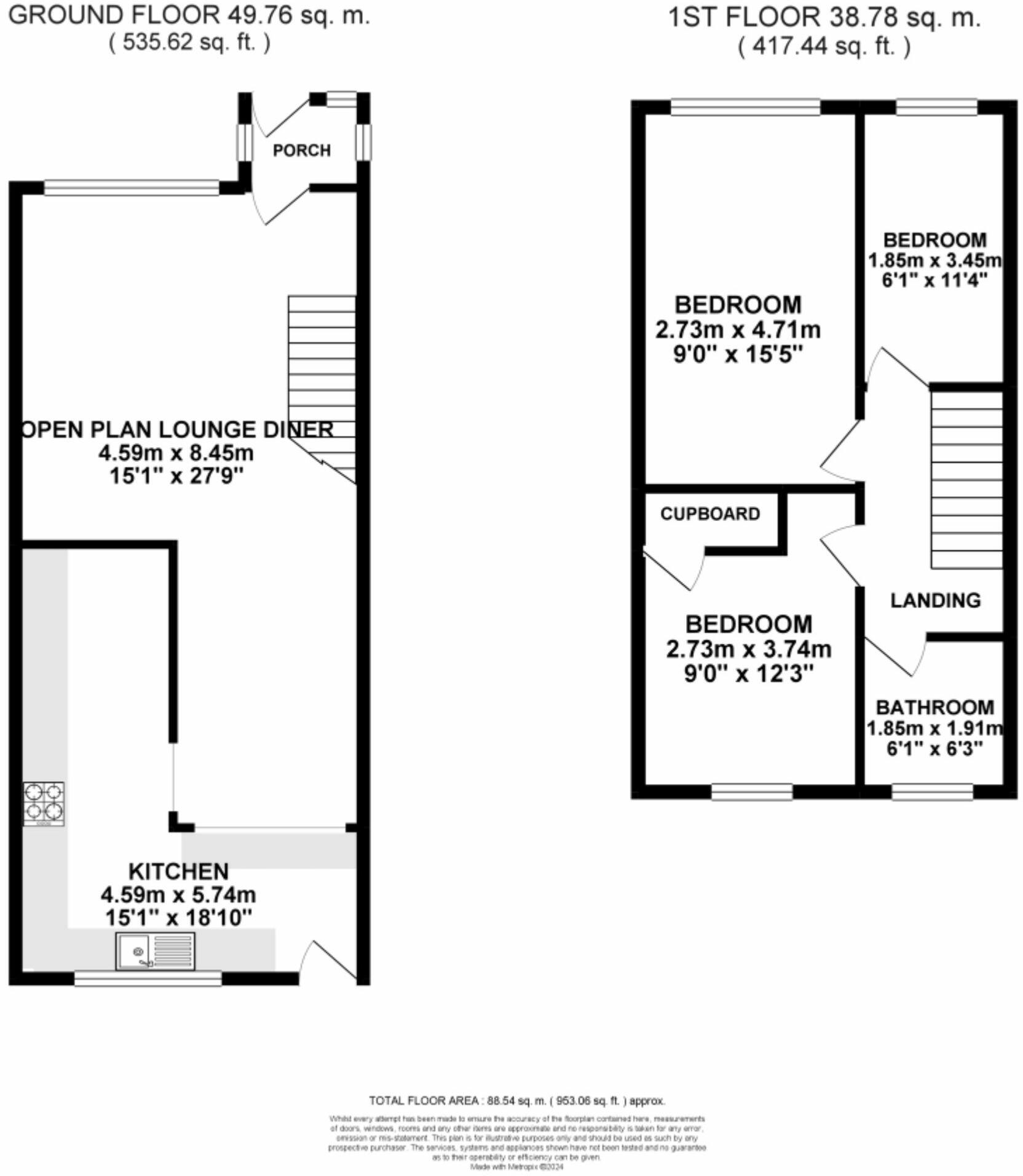
This 3-bedroom terraced house located on Waddicar Lane in Melling offers a modern and well-maintained interior. The kitchen and bathroom appear to be recently updated, contributing to the property’s overall appeal. The property benefits from good access to local schools, with Melling Primary School only 0.36km away. Public transport links are also good, with several Merseyrail stations within a short distance. While specific square footage for comparable properties is unavailable making a precise price comparison difficult, it appears reasonably priced within the context of similar properties in the area.
The property includes a relatively small but functional rear garden. Further information regarding plot size would be helpful to provide a comprehensive evaluation.
Overall, this property represents a solid option for families or individuals seeking a comfortable and conveniently located home in Melling, though the small garden area could be a potential drawback for some buyers. The lack of precise details on plot sizes and comparative properties for a square-foot analysis limits the depth of the assessment. Additional information on the property’s age, energy efficiency rating, and any potential structural issues would also contribute to a more complete analysis.
Therefore, we give this property 6 / 10. *Disclaimer: This is our option and does constitute a recommendation or financial advice. Do your own research. *
- Price
- 7
- Condition
- 8
- Location
- 7
- Land
- 4
- Bedrooms
- 3
- Bathrooms
- 1
- Sqft (est)
- 953.04
The heatmap indicates the level of crime in the area. The color of the heatmap indicates the crime severity and recency.
Metrics Year-on-Year
- Average area value
- 225,800.00 £Decreased by 11.13 %
- Est sale value
- 366,920.40 £Increased by 76.61 %
- Average area rental value
- 900.00 £/moDecreased by 18.70 %
- Est letting value
- 953.04 £/mo
- Est rental Yield
- 4.78 %Decreased by 8.60 %
- Crime Rate
- 5.00 %Unchanged by 0.00 %
Agent Activity
North Wall created the listing.
Nearby Schools
| Name | Type | Ofsted | Distance |
|---|---|---|---|
| Melling Primary School | Community School | Good | 0.36 KM |
| Westvale Primary School | Community School | Good | 1.09 KM |
| Eden Sscc | Children's Centre | 1.09 KM | |
| St Michael And All Angels Catholic Primary School | Voluntary Aided School | Outstanding | 1.59 KM |
| Millbrook Community Primary School | Community School | Good | 1.98 KM |
Images
Nearby Streets
| Name | Average Price | Average Sqft | Distance |
|---|---|---|---|
| Mount Road | £ 144,995 | 0 | 0.00 KM |
| M57 | £ 0 | 0 | 0.00 KM |
| Lognor Road | £ 140,000 | 0 | 0.00 KM |
| Beech Close | £ 215,000 | 0 | 0.00 KM |
| Chiltern Drive | £ 0 | 0 | 0.00 KM |
Nearby Transport
| Name | NLC | TLC | Distance |
|---|---|---|---|
| Kirkby (Merseyside) | 2124 | KIR | 1.17 KM |
| Maghull | 2155 | MAG | 2.70 KM |
| Maghull North | 6576 | MNS | 3.06 KM |
| Fazakerley | 2126 | FAZ | 3.59 KM |
| Old Roan | 2258 | ORN | 4.29 KM |
Nearby Listings
| Address | Price | Type | Score | Distance |
|---|---|---|---|---|
| Waddicar Lane, Melling, L31 | £ 200,000 | BUY | 6 / 10 | 0.00 KM |
| Debra Close, Melling | £ 165,000 | BUY | 6 / 10 | 0.07 KM |
| Chapel Lane, Melling, L31 1ED | £ 224,995 | BUY | 7 / 10 | 0.13 KM |
| Chapel Lane, Melling, L31 1ED | £ 379,995 | BUY | 7 / 10 | 0.13 KM |
| Chapel Lane, Melling, L31 1ED | £ 364,995 | BUY | 6 / 10 | 0.13 KM |
Nearby Properties
| Address | Price | Distance |
|---|---|---|
| 144 Waddicar Lane | £ 275,995 | 0.05 KM |
| 128 Waddicar Lane | £ 182,500 | 0.05 KM |
| 148 Waddicar Lane | £ 485,000 | 0.05 KM |
| 110 Waddicar Lane | £ 135,000 | 0.05 KM |
| 108 Waddicar Lane | £ 211,000 | 0.05 KM |