Sandpiper Way, The Willows, Torquay, Devon
By Bradleys
£ 470,000
Reviews
3 out of 5 stars
Bradleys says ..
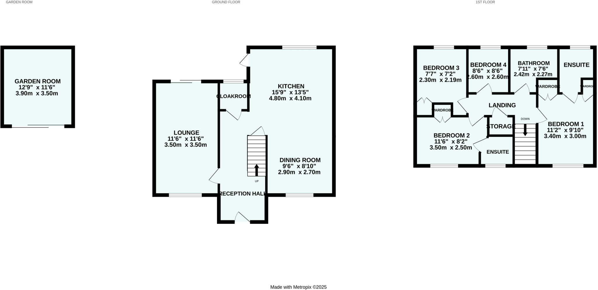
A FOUR BEDROOM DETACHED PROPERTY SET IN A LARGER THAN AVERAGE PLOT An exceptional four-bedroom detached executive home, situated in a desirable cul-de-sac location. This stunning property features two en suite bedrooms and a well-appointed family bathroom. The heart of the home is the h...
Property Oracle says ..
The property is a 4-bedroom, 3-bathroom detached house located in Sandpiper Way, Torquay, Devon. The house is presented in good condition throughout and benefits from a modern fitted kitchen and bathrooms. The property also has a good-sized garden with patio areas and is situated within a short distance of local schools and transport links. The average price for properties in the area is £284,653, with an average price per square foot of £283. This property is listed at £470,000 and has 1,281.12 sqft. Considering the property’s modern condition, the relatively large plot size compared to other properties in the area, and its proximity to amenities, the asking price appears reasonable, though perhaps slightly higher than the average. However, the lack of sqft data for comparable properties makes a precise price comparison difficult.
Therefore, we give this property 7 / 10. *Disclaimer: This is our option and does constitute a recommendation or financial advice. Do your own research. *
- Price
- 7
- Condition
- 9
- Location
- 8
- Land
- 7
- Bedrooms
- 4
- Bathrooms
- 3
- Sqft (est)
- 1,281.12
The heatmap indicates the level of crime in the area. The color of the heatmap indicates the crime severity and recency.
Metrics Year-on-Year
- Average area value
- 271,992.00 £Decreased by 13.54 %
- Est sale value
- 361,275.84 £Decreased by 3.42 %
- Average area rental value
- 992.00 £/moDecreased by 5.88 %
- Est letting value
- 1,281.12 £/mo
- Est rental Yield
- 4.38 %Increased by 8.96 %
- Crime Rate
- 9.00 %Unchanged by 0.00 %
Agent Activity
Bradleys created the listing.
Nearby Schools
| Name | Type | Ofsted | Distance |
|---|---|---|---|
| Shiphay Learning Academy | Academy Converter | 1.18 KM | |
| Torquay Boys' Grammar School | Academy Converter | Good | 1.69 KM |
| Sherwell Valley Primary School | Community School | Good | 1.71 KM |
| Torquay Girls Grammar School | Academy Converter | Outstanding | 1.75 KM |
| Kingskerswell Church Of England Primary School | Voluntary Controlled School | Good | 1.91 KM |
Images
Nearby Streets
| Name | Average Price | Average Sqft | Distance |
|---|---|---|---|
| Water Lane | £ 0 | 0 | 0.00 KM |
| Caroline Close | £ 550,000 | 0 | 0.00 KM |
| South Devon Highway | £ 400,000 | 0 | 0.00 KM |
| South Devon Highway | £ 472,500 | 0 | 0.00 KM |
| Saturday's Lane | £ 0 | 0 | 0.00 KM |
Nearby Transport
| Name | NLC | TLC | Distance |
|---|---|---|---|
| Torre | 3432 | TRR | 2.56 KM |
| Torquay | 3434 | TQY | 3.85 KM |
| Newton Abbot | 3426 | NTA | 6.00 KM |
| Paignton | 3427 | PGN | 6.22 KM |
| Teignmouth | 3430 | TGM | 9.77 KM |
Nearby Listings
| Address | Price | Type | Score | Distance |
|---|---|---|---|---|
| Sandpiper Way, The Willows, Torquay, Devon | £ 470,000 | BUY | 7 / 10 | 0.00 KM |
| Rooftops, Sandpiper Way | £ 525,000 | BUY | 7 / 10 | 0.00 KM |
| Sandpiper Way, The Willows, Torquay, Devon | £ 315,000 | BUY | 8 / 10 | 0.01 KM |
| Eaglewood Close, Torquay, Devon, TQ2 | £ 230,000 | BUY | 6 / 10 | 0.10 KM |
| Plantation Way, Torquay | £ 320,000 | BUY | 7 / 10 | 0.16 KM |
Nearby Properties
| Address | Price | Distance |
|---|---|---|
| 2 Sandpiper Way | £ 399,000 | 0.01 KM |
| 9 Sandpiper Way | £ 260,000 | 0.01 KM |
| 27 Sandpiper Way | £ 225,000 | 0.01 KM |
| 29 Sandpiper Way | £ 245,000 | 0.01 KM |
| 25 Sandpiper Way | £ 247,500 | 0.01 KM |