Nested says ..
Introducing this exceptional end of terrace house, prominently situated on a huge corner plot in a sought-after location. This home is a rare find and needs to be viewed to be fully appreciated.
Property Oracle says ..
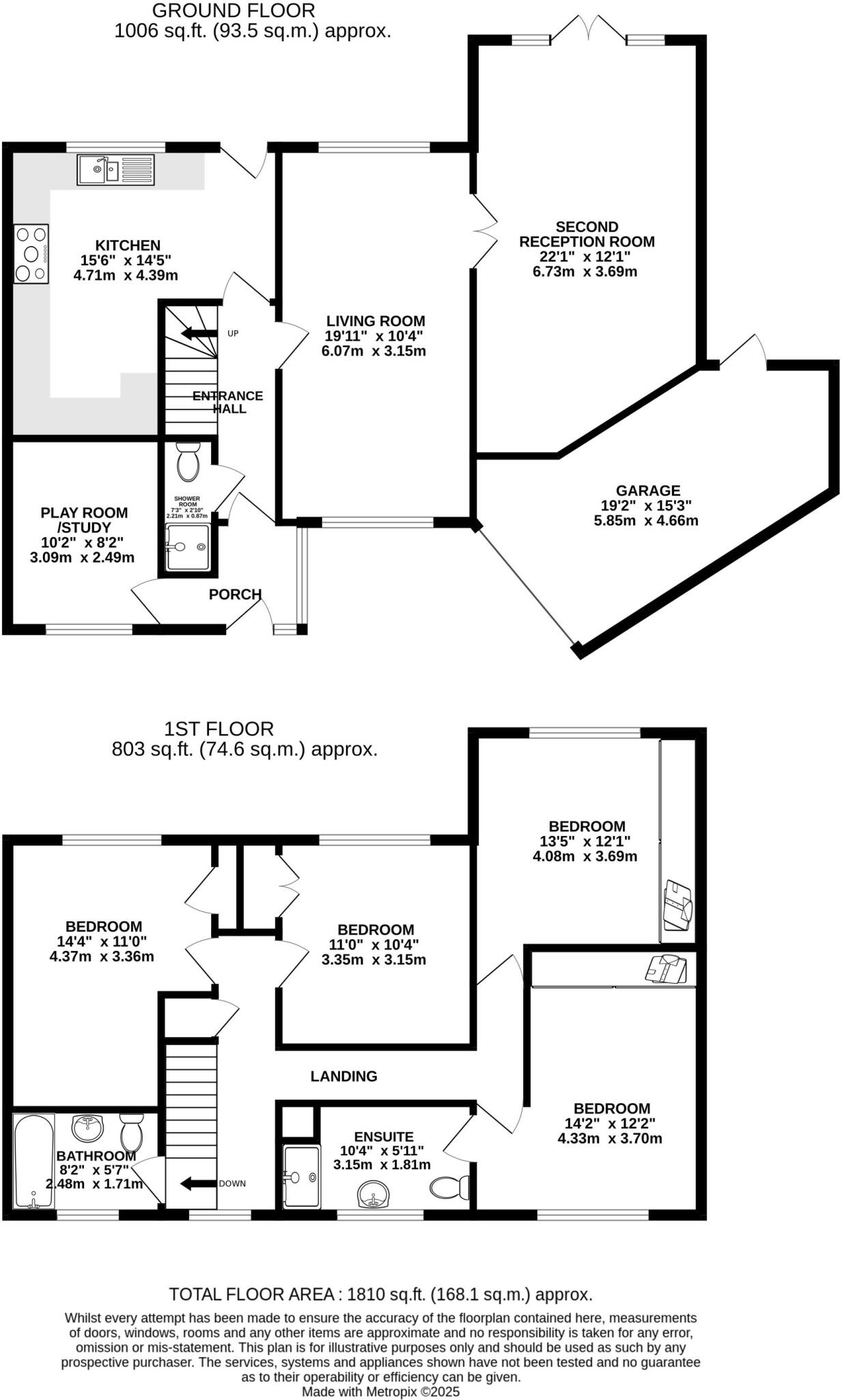
This property is a 4-bedroom, 3-bathroom end of terrace house located in Roydon, Essex. The property benefits from a good-sized garden, and appears to have undergone recent modernisation, giving it a modern feel while maintaining some traditional character. The location is convenient, with a primary school within walking distance and a train station less than a kilometre away. However, the list price of £650,000 is significantly higher than the average price for the area (£968,192) and also higher than nearby comparable properties. While the property itself is well-presented and modern, the price seems high relative to the average price per square foot in the area.
Therefore, we give this property 7 / 10. *Disclaimer: This is our option and does constitute a recommendation or financial advice. Do your own research. *
- Price
- 4
- Condition
- 9
- Location
- 8
- Land
- 7
- Bedrooms
- 4
- Bathrooms
- 3
- Sqft (est)
- 1,810.00
The heatmap indicates the level of crime in the area. The color of the heatmap indicates the crime severity and recency.
Metrics Year-on-Year
- Average area value
- 645,985.00 £Increased by 1.79 %
- Est sale value
- 828,980.00 £Decreased by 30.40 %
- Average area rental value
- 1,899.00 £/moIncreased by 11.44 %
- Est letting value
- 1,810.00 £/moUnchanged by 0.00 %
- Est rental Yield
- 3.53 %Increased by 9.63 %
- Crime Rate
- 128.00 %Unchanged by 0.00 %
Agent Activity
Nested created the listing.
Nearby Schools
| Name | Type | Ofsted | Distance |
|---|---|---|---|
| Roydon Primary Academy | Academy Sponsor Led | Good | 0.13 KM |
| Katherines Primary Academy And Nursery | Academy Sponsor Led | 3.85 KM | |
| St Andrew'S Church Of England Voluntary Controlled Primary School | Voluntary Controlled School | Good | 3.88 KM |
| Water Lane Primary Academy | Academy Sponsor Led | Good | 4.29 KM |
| Rye Park Nursery School | Local Authority Nursery School | Outstanding | 4.48 KM |
Images
Nearby Transport
| Name | NLC | TLC | Distance |
|---|---|---|---|
| Roydon | 6829 | RYN | 0.65 KM |
| Rye House | 6820 | RYH | 3.75 KM |
| St Margarets (Herts) | 6821 | SMT | 4.64 KM |
| Broxbourne | 6812 | BXB | 6.18 KM |
| Harlow Town | 6827 | HWN | 6.26 KM |
Nearby Listings
| Address | Price | Type | Score | Distance |
|---|---|---|---|---|
| Temple Mead, Roydon, CM19 | £ 650,000 | BUY | 7 / 10 | 0.00 KM |
| Temple Mead, Roydon | £ 575,000 | BUY | 7 / 10 | 0.04 KM |
| Temple Mead, Roydon, Harlow, Essex, CM19 | £ 550,000 | BUY | 7 / 10 | 0.09 KM |
| Temple Mead, Roydon, Harlow | £ 550,000 | BUY | 7 / 10 | 0.09 KM |
| High Street, Roydon | £ 355,000 | BUY | 6 / 10 | 0.13 KM |
Nearby Properties
| Address | Price | Distance |
|---|---|---|
| 83 Temple Mead | £ 395,000 | 0.01 KM |
| 79 Temple Mead | £ 292,000 | 0.01 KM |
| 85 Temple Mead | £ 159,995 | 0.01 KM |
| 77 Temple Mead | £ 491,000 | 0.01 KM |
| 73 Temple Mead | £ 218,000 | 0.01 KM |