Smart Homes Ltd says ..
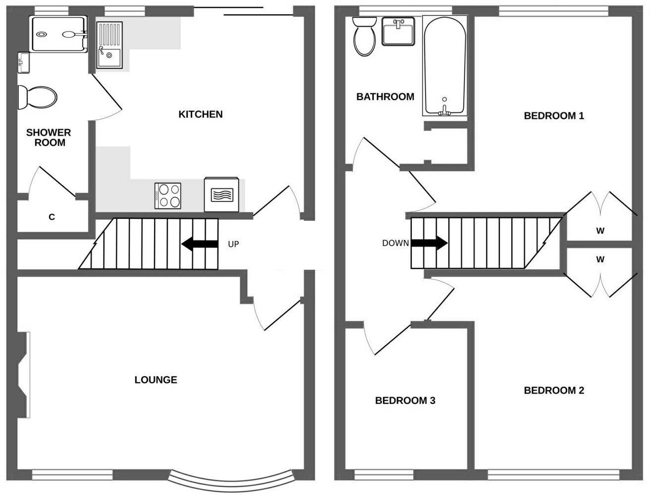
A spacious and very well presented detached family home offering accommodation comprising a spacious lounge, re-fitted kitchen/diner, ground floor shower room/utility, three bedrooms, family bathroom, West facing rear garden, garage and generous driveway
Property Oracle says ..
This is a detached property in Shirley West, Solihull. The house has 3 bedrooms and 2 bathrooms. The property appears to be in generally good condition, with a modern kitchen and bathroom. It also benefits from a garden. However, the price seems a little high compared to similar properties in the area, considering its square footage.
Therefore, we give this property 7 / 10. *Disclaimer: This is our option and does constitute a recommendation or financial advice. Do your own research. *
- Price
- 6
- Condition
- 8
- Location
- 7
- Land
- 7
- Bedrooms
- 3
- Bathrooms
- 2
- Sqft (est)
- 677.88
The heatmap indicates the level of crime in the area. The color of the heatmap indicates the crime severity and recency.
Metrics Year-on-Year
- Average area value
- 326,418.00 £Decreased by 0.78 %
- Est sale value
- 226,411.92 £Increased by 1.52 %
- Average area rental value
- 1,459.00 £/moIncreased by 29.46 %
- Est letting value
- 677.88 £/moUnchanged by 0.00 %
- Est rental Yield
- 5.36 %Increased by 30.41 %
- Crime Rate
- 2.00 %Unchanged by 0.00 %
Agent Activity
Smart Homes Ltd created the listing.
Nearby Schools
| Name | Type | Ofsted | Distance |
|---|---|---|---|
| Peterbrook Primary School | Community School | Requires improvement | 0.21 KM |
| Mill Lodge Primary School | Community School | Good | 0.71 KM |
| Mill Lodge Children'S Centre (Shirley West) | Children's Centre | 0.80 KM | |
| Christ Church, Church Of England Secondary Academy | Free Schools | 1.22 KM | |
| Yardley Wood Community Primary School | Community School | Good | 1.37 KM |
Images
Nearby Streets
| Name | Average Price | Average Sqft | Distance |
|---|---|---|---|
| Peartree Close | £ 0 | 0 | 0.00 KM |
| Ox Hill Road | £ 228,317 | 0 | 0.00 KM |
| Kingfield Road | £ 332,500 | 0 | 0.00 KM |
| Eversleigh Court | £ 165,000 | 0 | 0.00 KM |
| Greenslade Road | £ 125,000 | 0 | 0.00 KM |
Nearby Transport
| Name | NLC | TLC | Distance |
|---|---|---|---|
| Shirley | 4526 | SRL | 1.49 KM |
| Whitlocks End | 4539 | WTE | 1.53 KM |
| Yardley Wood | 4537 | YRD | 2.04 KM |
| Wythall | 4532 | WYT | 2.75 KM |
| Hall Green | 4521 | HLG | 3.97 KM |
Nearby Listings
| Address | Price | Type | Score | Distance |
|---|---|---|---|---|
| Mountford Road, Shirley | £ 385,000 | BUY | 7 / 10 | 0.00 KM |
| Mountford Road, Shirley, Solihull, West Midlands, B90 | £ 400,000 | BUY | 6 / 10 | 0.01 KM |
| Mountford Road, Shirley | £ 350,000 | BUY | 7 / 10 | 0.03 KM |
| Mountford Road, Shirley, Solihull | £ 335,000 | BUY | 7 / 10 | 0.06 KM |
| Mountford Road, Shirley, Solihull, West Midlands, B90 | £ 335,000 | BUY | 7 / 10 | 0.06 KM |
Nearby Properties
| Address | Price | Distance |
|---|---|---|
| 12 Mountford Road | £ 198,000 | 0.06 KM |
| 14 Mountford Road | £ 301,750 | 0.06 KM |
| 5 Mountford Road | £ 194,000 | 0.06 KM |
| 11 Mountford Road | £ 215,000 | 0.06 KM |
| 17 Mountford Road | £ 176,500 | 0.06 KM |