Creswell Corner, Anchor Hill, Knaphill, GU21
By Curchods Estate Agents
£ 255,000
Reviews
3 out of 5 stars
Curchods Estate Agents says ..
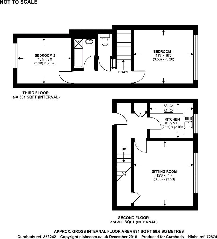
A substantial, duplex apartment sitting in a hugely convenient position in the very heart of Knaphill village. Open views and with a garage at the back.
Property Oracle says ..
This is a two-bedroom flat located in Staines South. The property benefits from its proximity to local schools, transportation links, and amenities. While the exterior of the building appears somewhat dated, the interior is modern and well-maintained. The flat offers a practical living space suitable for a small family or professionals. The price is slightly above the average per square foot for the area but is justifiable given the condition and location of the property. The lack of private outdoor space is a drawback, but communal areas are available.
Therefore, we give this property 6 / 10. *Disclaimer: This is our option and does constitute a recommendation or financial advice. Do your own research. *
- Price
- 8
- Condition
- 7
- Location
- 7
- Land
- 3
- Bedrooms
- 2
- Bathrooms
- 1
- Sqft (est)
- 421.98
The heatmap indicates the level of crime in the area. The color of the heatmap indicates the crime severity and recency.
Metrics Year-on-Year
- Average area value
- 675,000.00 £Increased by 43.07 %
- Est sale value
- 172,167.84 £Decreased by 18.24 %
- Average area rental value
- 2,200.00 £/moIncreased by 22.22 %
- Est letting value
- 421.98 £/moUnchanged by 0.00 %
- Est rental Yield
- 3.91 %Decreased by 14.63 %
- Crime Rate
- 4.00 %Unchanged by 0.00 %
Agent Activity
Curchods Estate Agents created the listing.
Nearby Schools
| Name | Type | Ofsted | Distance |
|---|---|---|---|
| Riverbridge Primary School | Academy Converter | Good | 0.81 KM |
| Our Lady Of The Rosary Rc Primary School | Voluntary Aided School | Good | 0.90 KM |
| Staines Preparatory School | Other Independent School | 0.92 KM | |
| The Matthew Arnold School | Academy Converter | Good | 0.99 KM |
| Buckland Primary School | Community School | Good | 1.15 KM |
Images
Nearby Streets
| Name | Average Price | Average Sqft | Distance |
|---|---|---|---|
| Parkside Place | £ 0 | 0 | 0.00 KM |
| Pinewood Drive | £ 215,000 | 0 | 0.00 KM |
| Park Avenue | £ 0 | 0 | 0.00 KM |
| The Sidings | £ 0 | 0 | 0.00 KM |
| Warwick Avenue | £ 0 | 0 | 0.00 KM |
Nearby Transport
| Name | NLC | TLC | Distance |
|---|---|---|---|
| Staines | 5670 | SNS | 1.18 KM |
| Ashford (Surrey) | 5667 | AFS | 3.41 KM |
| Chertsey | 5553 | CHY | 4.38 KM |
| Heathrow Terminal 5 | 9846 | HWV | 5.13 KM |
| Egham | 5669 | EGH | 5.57 KM |
Nearby Listings
| Address | Price | Type | Score | Distance |
|---|---|---|---|---|
| Creswell Corner, Anchor Hill, Knaphill, GU21 | £ 255,000 | BUY | 6 / 10 | 0.00 KM |
| Nursery Gardens, Staines-upon-Thames, Surrey, TW18 | £ 550,000 | BUY | 7 / 10 | 0.09 KM |
| Nursery Gardens, Staines-upon-Thames, TW18 | £ 465,000 | BUY | 7 / 10 | 0.09 KM |
| Nursery Gardens, Staines, Surrey, TW18 | £ 525,000 | BUY | 7 / 10 | 0.10 KM |
| Nursery Gardens, Staines-upon-Thames, TW18 | £ 485,000 | BUY | 7 / 10 | 0.10 KM |
Nearby Properties
| Address | Price | Distance |
|---|---|---|
| 18 The Glade | £ 299,950 | 0.05 KM |
| 6 The Glade | £ 245,000 | 0.05 KM |
| 20 The Glade | £ 355,000 | 0.05 KM |
| 24 The Glade | £ 280,000 | 0.05 KM |
| 12 The Glade | £ 225,000 | 0.05 KM |