Upper Brentwood Road, Romford, RM2
By Keller Williams
£ 540,000
Reviews
3 out of 5 stars
Keller Williams says ..
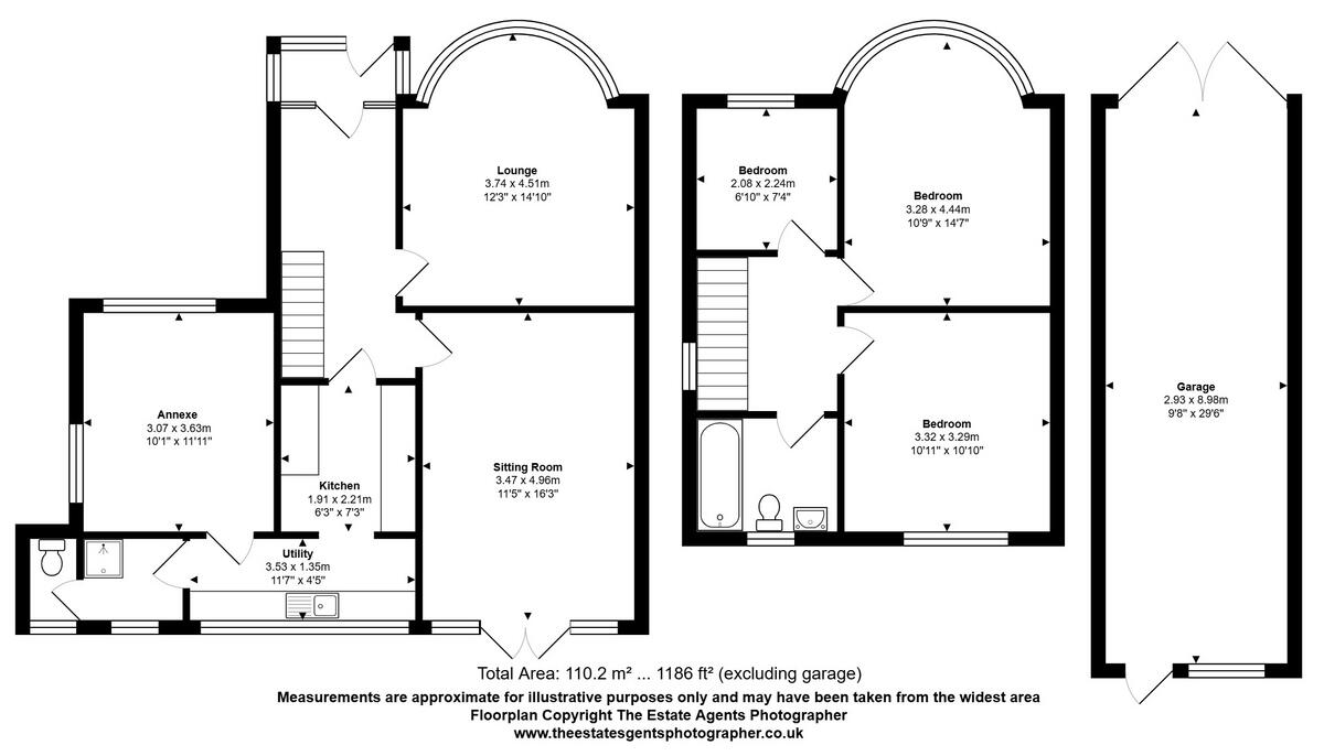
3 BEDROOMS, 2 BATHROOMS, 2 RECEPTION ROOMS, ANNEX ROOM, GARAGE & PARKING, PLANNING PERMISSION TO GRANTED TO EXTEND, LARGE FRONT AND REAR GARDEN. THIS PROPERTY NEEDS TO BE SEEN!!!!
Property Oracle says ..
This is a three-bedroom semi-detached house located on Upper Brentwood Road, Romford. The property offers two bathrooms and is listed for £540,000. While the house benefits from a good location with nearby schools and transport links, it requires significant renovation to modernise the interior. The property features a large garden, adding to its appeal. The price is reasonable but reflects the need for modernisation.
Therefore, we give this property 6 / 10. *Disclaimer: This is our option and does constitute a recommendation or financial advice. Do your own research. *
- Price
- 6
- Condition
- 4
- Location
- 7
- Land
- 7
- Bedrooms
- 3
- Bathrooms
- 2
The heatmap indicates the level of crime in the area. The color of the heatmap indicates the crime severity and recency.
Metrics Year-on-Year
- Average area value
- 492,944.00 £Decreased by 7.55 %
- Average area rental value
- 1,472.00 £/moDecreased by 26.10 %
- Est rental Yield
- 3.58 %Decreased by 20.09 %
- Crime Rate
- 6.00 %Unchanged by 0.00 %
Agent Activity
Keller Williams created the listing.
Nearby Schools
| Name | Type | Ofsted | Distance |
|---|---|---|---|
| St Mary'S Hare Park School | Other Independent School | 0.36 KM | |
| The Royal Liberty School | Academy Converter | Good | 0.40 KM |
| Squirrels Heath Infant School | Community School | Good | 0.69 KM |
| Squirrels Heath Junior School | Community School | Good | 0.69 KM |
| Gidea Park Preparatory School And College | Other Independent School | 1.11 KM |
Images
Nearby Streets
| Name | Average Price | Average Sqft | Distance |
|---|---|---|---|
| Slewins Lane | £ 620,000 | 0 | 0.00 KM |
| Severn Avenue | £ 0 | 0 | 0.00 KM |
| Evelyn Sharp Close | £ 0 | 0 | 0.00 KM |
| Lawrence Road | £ 0 | 0 | 0.00 KM |
| Tudor Gardens | £ 825,000 | 0 | 0.00 KM |
Nearby Transport
| Name | NLC | TLC | Distance |
|---|---|---|---|
| Gidea Park | 6877 | GDP | 0.32 KM |
| Emerson Park | 7473 | EMP | 1.96 KM |
| Harold Wood | 6879 | HRO | 2.93 KM |
| Romford | 6886 | RMF | 2.95 KM |
| Upminster | 7464 | UPM | 5.31 KM |
Nearby Listings
| Address | Price | Type | Score | Distance |
|---|---|---|---|---|
| Upper Brentwood Road, Romford, RM2 | £ 540,000 | BUY | 6 / 10 | 0.00 KM |
| Upper Brentwood Road, Gidea Park, RM2 | £ 325,000 | BUY | Unknown | 0.03 KM |
| Squirrels Heath Lane, Gidea Park, Romford, RM2 | £ 290,000 | BUY | Unknown | 0.04 KM |
| Upper Brentwood Road, Romford | £ 1,250,000 | BUY | 7 / 10 | 0.05 KM |
| Squirrels Court, Gidea Park | £ 325,000 | BUY | Unknown | 0.07 KM |
Nearby Properties
| Address | Price | Distance |
|---|---|---|
| 459 Upper Brentwood Road | £ 262,500 | 0.05 KM |
| 428a Upper Brentwood Road | £ 290,000 | 0.05 KM |
| 432 Upper Brentwood Road | £ 121,300 | 0.05 KM |
| 473 Upper Brentwood Road | £ 520,000 | 0.05 KM |
| 426a Upper Brentwood Road | £ 241,000 | 0.05 KM |