Averys Oak, Laughton, Lewes BN8
By London World Class, Powered by Keller Williams
£ 1,750,000
Reviews
3 out of 5 stars
London World Class, Powered by Keller Williams says ..
A world of 16th century historical wonder, a series of inspiring discoveries and delights, meticulously preserved, restored, cherished a n d loved by a truly remarkable family for 47 years! The energy here is special, it's not just a property it is so much more.
Property Oracle says ..
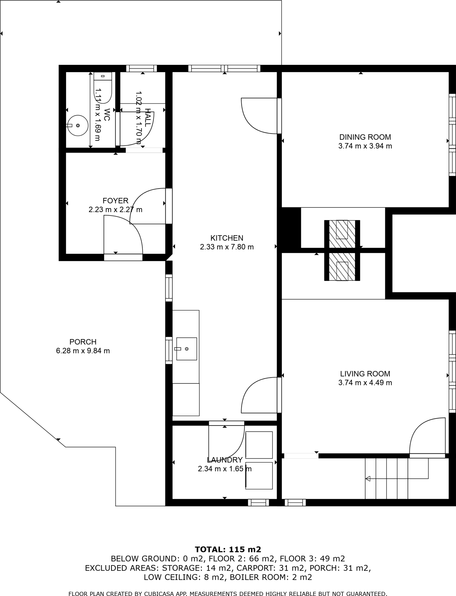
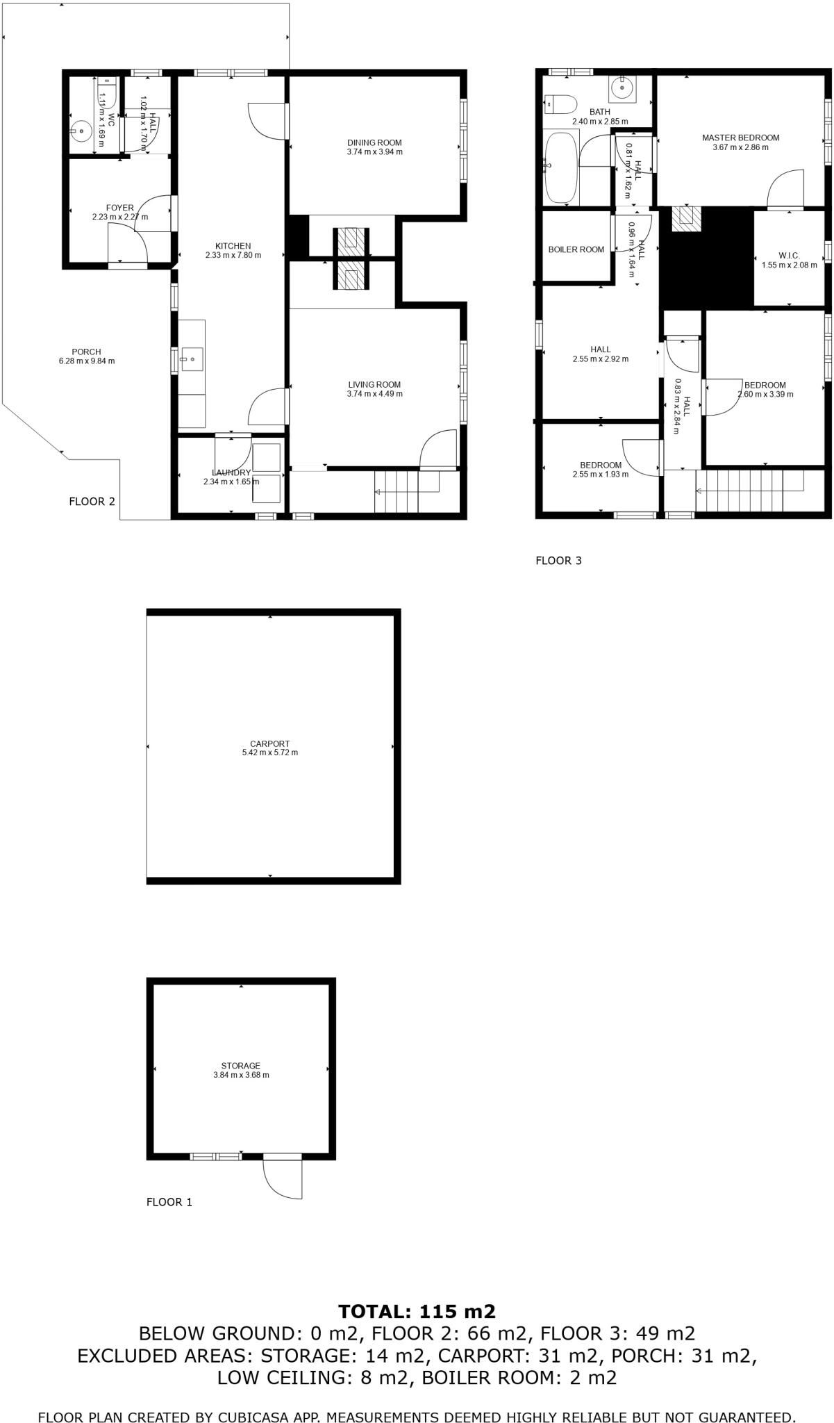
Averys Oak is a charming period property situated in the village of Laughton, East Sussex. The property boasts a wealth of character, showcasing exposed beams and traditional features. The interior is presented in a well-maintained yet somewhat traditional style, suggesting a property that has been well-loved over the years. The exterior is equally picturesque, with attractive brickwork and a sizeable garden. The garden is a particular highlight, with several outbuildings (sheds, greenhouse) and a generous amount of lawn and landscaping. The presence of a pond adds to the property’s unique appeal.
The location is a balance between tranquility and accessibility. Laughton itself is a small village, but Lewes and other nearby towns offer more amenities and transport links. The proximity of a well-regarded primary school adds to the family appeal. While the property’s description highlights its historical significance and meticulous preservation, potential buyers should be aware that maintaining such a character property requires ongoing care and investment. Some updates or renovations may be advisable to modernise certain elements while preserving the original features.
In conclusion, Averys Oak offers a unique opportunity to own a period property in a desirable East Sussex village. It is well-maintained and offers plenty of character and a substantial garden. However, prospective buyers should factor in potential maintenance costs and the need for potential modernisation to meet their needs.
Therefore, we give this property 6 / 10. *Disclaimer: This is our option and does constitute a recommendation or financial advice. Do your own research. *
- Price
- 7
- Condition
- 7
- Location
- 7
- Land
- 6
- Bedrooms
- 4
- Bathrooms
- 1
- Sqft (est)
- 1,237.85
The heatmap indicates the level of crime in the area. The color of the heatmap indicates the crime severity and recency.
Metrics Year-on-Year
- Average area value
- 706,875.00 £Increased by 0.49 %
- Est sale value
- 613,973.60 £Increased by 20.10 %
- Average area rental value
- 1,350.00 £/moDecreased by 14.29 %
- Est letting value
- 0.00 £/mo
- Est rental Yield
- 2.29 %Decreased by 14.87 %
- Crime Rate
- 40.00 %Unchanged by 0.00 %
Agent Activity
London World Class, Powered by Keller Williams created the listing.
Nearby Schools
| Name | Type | Ofsted | Distance |
|---|---|---|---|
| Laughton Community Primary School | Community School | Good | 1.66 KM |
| Annan School | Other Independent School | 4.71 KM | |
| East Hoathly Cofe Primary School | Voluntary Controlled School | Good | 4.98 KM |
| Little Horsted Church Of England Primary School | Voluntary Aided School | Good | 5.57 KM |
| King'S Academy Ringmer | Academy Converter | Good | 6.08 KM |
Images
Nearby Transport
| Name | NLC | TLC | Distance |
|---|---|---|---|
| Glynde | 5338 | GLY | 7.52 KM |
| Uckfield | 5334 | UCK | 7.80 KM |
| Berwick (Sussex) | 5323 | BRK | 8.55 KM |
| Buxted | 5324 | BXD | 9.71 KM |
Nearby Listings
| Address | Price | Type | Score | Distance |
|---|---|---|---|---|
| Averys Oak, Laughton, Lewes BN8 | £ 1,750,000 | BUY | 6 / 10 | 0.00 KM |
| Laughton Lodge, Laughton, Lewes BN8 6BY | £ 935,000 | BUY | 7 / 10 | 0.15 KM |
| Laughton, Lewes, East Sussex | £ 1,150,000 | BUY | 7 / 10 | 0.16 KM |
| Lewes Road, Laughton, Lewes, East Sussex, BN8 | £ 425,000 | BUY | 6 / 10 | 0.54 KM |
| Common, Laughton, Lewes, BN8 | £ 995,000 | BUY | 7 / 10 | 0.64 KM |
Nearby Properties
| Address | Price | Distance |
|---|---|---|
| Bay House | £ 580,000 | 0.51 KM |
| Five Oaks | £ 265,000 | 0.51 KM |
| Greenstead House | £ 700,000 | 0.86 KM |
| Greenstead | £ 445,000 | 0.86 KM |
| Sunnyside | £ 480,000 | 0.86 KM |