Fore Street, Culmstock
By Wilkie May & Tuckwood
£ 575,000
Reviews
3 out of 5 stars
Wilkie May & Tuckwood says ..
Wilkie May & Tuckwood are delighted to be able to offer The Ilminster Stage to the market, formerly an old Coaching Inn dating back to 1700 and now converted into a spacious four double bedroom family home offering a mixture of contemporary interior alongside character and charm in the heart of t...
Property Oracle says ..
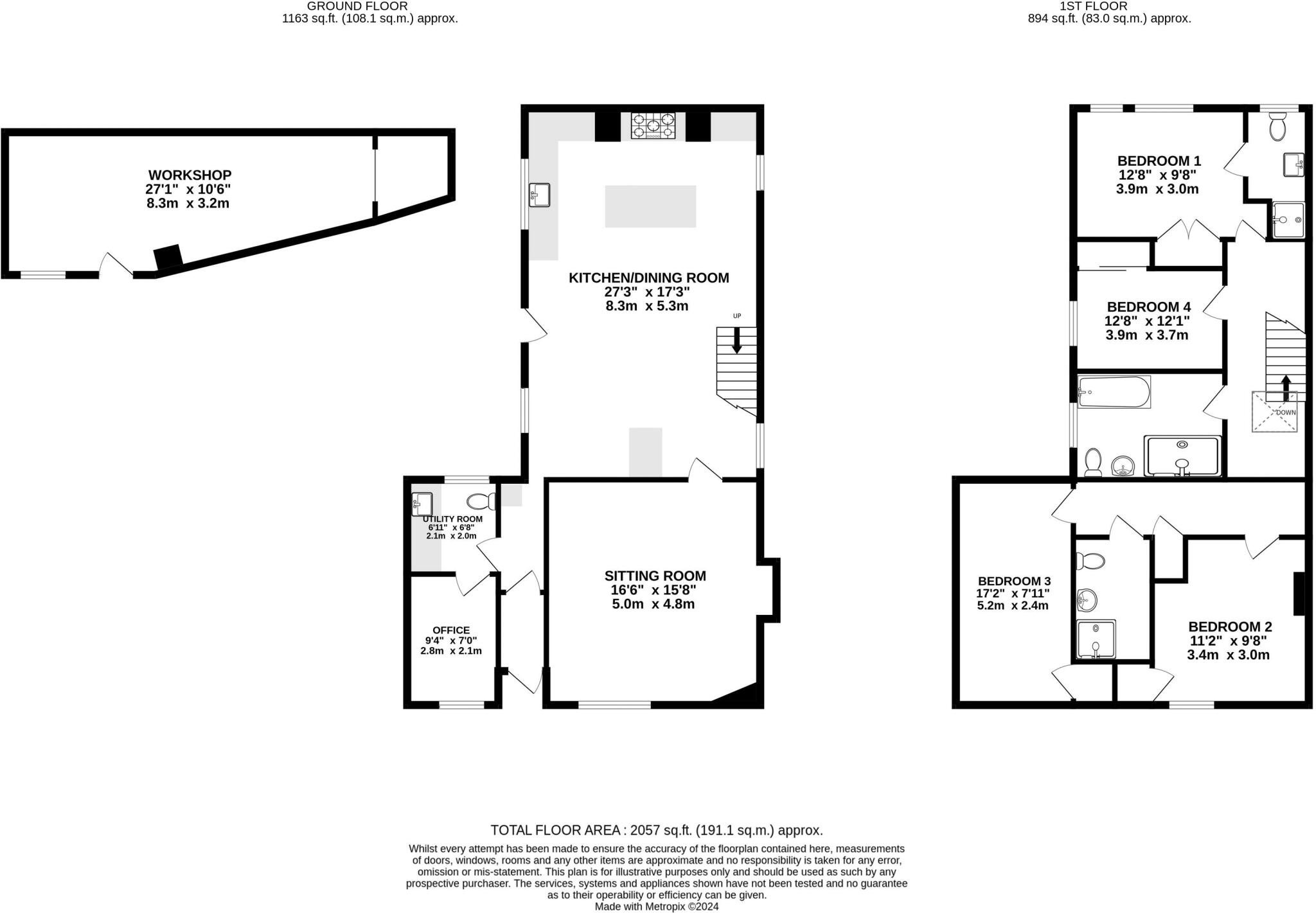
This property is a converted coaching inn located in the village of Culmstock, Mid Devon. The conversion appears to have created a spacious family home, with four double bedrooms and three bathrooms. The interior style is contemporary, blending modern features with elements of the building’s original character. Images show a modern kitchen, multiple living areas, and bedrooms finished to a good standard. The property benefits from a garden, though its exact dimensions are not provided, along with convenient access to Culmstock Primary School which has a good Ofsted rating. A nearby railway station (Tiverton Parkway) offers good transport links to further afield. However, the data provided doesn’t offer detailed information on the plot size and precise square footage. In addition, information on the extent of local amenities within Culmstock itself is limited. Overall, the property appears to be a well-presented and potentially attractive option for families seeking a village lifestyle with relatively easy access to transport networks. The absence of some key data details prevents a more definitive evaluation.
Therefore, we give this property 6 / 10. *Disclaimer: This is our option and does constitute a recommendation or financial advice. Do your own research. *
- Price
- 7
- Condition
- 8
- Location
- 7
- Land
- 4
- Bedrooms
- 4
- Bathrooms
- 3
- Sqft (est)
- 2,057.00
The heatmap indicates the level of crime in the area. The color of the heatmap indicates the crime severity and recency.
Metrics Year-on-Year
- Average area value
- 1,100,000.00 £Increased by 105.11 %
- Est sale value
- 991,474.00 £Decreased by 0.41 %
- Average area rental value
- 1,100.00 £/moDecreased by 29.03 %
- Est letting value
- 0.00 £/moDecreased by 100.00 %
- Est rental Yield
- 1.20 %Decreased by 65.42 %
- Crime Rate
- 70.00 %Unchanged by 0.00 %
Agent Activity
Wilkie May & Tuckwood created the listing.
Nearby Schools
| Name | Type | Ofsted | Distance |
|---|---|---|---|
| Culmstock Primary School | Community School | Good | 0.54 KM |
| Hemyock Primary School | Academy Converter | Good | 5.07 KM |
| Uffculme Primary School | Academy Converter | Good | 5.20 KM |
| Sampford Arundel Community Primary School | Community School | Good | 5.47 KM |
| Uffculme School | Academy Converter | Outstanding | 5.98 KM |
Images
Nearby Streets
| Name | Average Price | Average Sqft | Distance |
|---|---|---|---|
| Harts Row | £ 0 | 0 | 0.00 KM |
Nearby Transport
| Name | NLC | TLC | Distance |
|---|---|---|---|
| Tiverton Parkway | 3474 | TVP | 8.94 KM |
Nearby Listings
| Address | Price | Type | Score | Distance |
|---|---|---|---|---|
| Fore Street, Culmstock | £ 575,000 | BUY | 6 / 10 | 0.00 KM |
| Threadneedle Street, Culmstock | £ 300,000 | BUY | 7 / 10 | 0.14 KM |
| The Cleeve, Culmstock | £ 650,000 | BUY | Unknown | 0.20 KM |
| Pearly Cross, Culmstock, Cullompton | £ 495,000 | BUY | 7 / 10 | 0.24 KM |
| Culmstock, Cullompton | £ 365,000 | BUY | 7 / 10 | 0.25 KM |
Nearby Properties
| Address | Price | Distance |
|---|---|---|
| Cadbury Cottage | £ 220,000 | 0.01 KM |
| Ilminster Stage | £ 300,000 | 0.01 KM |
| Church Corner Cottage | £ 300,000 | 0.20 KM |
| Tullimaar | £ 250,000 | 0.20 KM |
| Dove Cottage | £ 330,000 | 0.20 KM |