Cumberworth Lane, Denby Dale, HD8
By Earnshaw Estates
£ 400,000
Reviews
3 out of 5 stars
Earnshaw Estates says ..
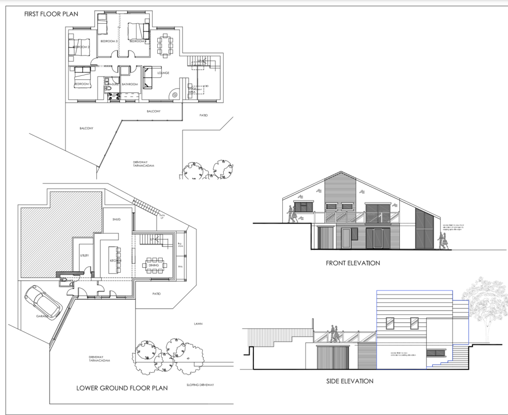
AN OUTSTANDING FURTHER DEVELOPMENT OPPORTUNITY IN DENBY DALE! CHECK OUT THIS MODERN AND SPACIOUS 4 BEDROOM DETACHED PROPERTY SITUATED ON A HUGE PLOT WITH APPROVED PLANNING PERMISSION! THIS IS AN UNBELIEVABLE OPPORTUNITY TO PURCHASE YOUR DREAM HOME WHILST ADDING YOUR OWN PERSONAL OWN TO...
Property Oracle says ..
This four-bedroom property in Denby Dale, West Yorkshire, presents a compelling but complex picture. Situated in a semi-rural setting, the location offers a balance between tranquility and accessibility. The nearby Denby Dale train station provides a link to regional transport networks, and several schools are within a reasonable distance, including the highly rated Shelley College.
The property itself is a fascinating blend of styles and finishes. The interior photographs reveal a mix of modern updates and ongoing renovations. While some rooms, particularly the bedrooms, appear well-finished and aesthetically pleasing, other areas, such as the kitchen and extensions, are unfinished and require work to reach completion. The kitchen presents a functional space, but the exposed brickwork and unfinished aspects suggests ongoing improvement is needed. The large windows in some areas of the house provide an abundance of natural light, which is a positive aspect of the home. The property benefits from a small garden space, with a patio area and a shed. The garden appears to require some landscaping work.
In terms of value, the asking price of £400,000 warrants further analysis. Without comparative data from recent sales in the immediate vicinity, a definitive statement on its market value is challenging. However, considering the property’s size, location, and need for further work, the listed price appears competitive, though not outstandingly good value. Prospective buyers should carefully weigh the potential costs of completing renovations against the home’s overall benefits.
Therefore, we give this property 6 / 10. *Disclaimer: This is our option and does constitute a recommendation or financial advice. Do your own research. *
- Price
- 7
- Condition
- 6
- Location
- 7
- Land
- 4
- Bedrooms
- 4
- Bathrooms
- 1
- Sqft (est)
- 1,009.01
The heatmap indicates the level of crime in the area. The color of the heatmap indicates the crime severity and recency.
Metrics Year-on-Year
- Average area value
- 319,163.00 £Decreased by 2.78 %
- Est sale value
- 299,675.97 £Increased by 37.50 %
- Average area rental value
- 1,450.00 £/moIncreased by 78.79 %
- Est letting value
- 1,009.01 £/mo
- Est rental Yield
- 5.45 %Increased by 84.12 %
- Crime Rate
- 46.00 %Unchanged by 0.00 %
Agent Activity
Earnshaw Estates created the listing.
Nearby Schools
| Name | Type | Ofsted | Distance |
|---|---|---|---|
| Denby Dale & Skelmanthorpe Children'S Centre | Children's Centre | 0.38 KM | |
| Denby Dale First And Nursery School | Community School | Requires improvement | 0.86 KM |
| Denby Church Of England Voluntary Aided First School | Voluntary Aided School | Good | 1.54 KM |
| St Aidan'S Church Of England Academy | Academy Converter | Good | 1.81 KM |
| Shelley College, A Share Academy | Academy Converter | Outstanding | 2.29 KM |
Images
Nearby Streets
| Name | Average Price | Average Sqft | Distance |
|---|---|---|---|
| Old School Court | £ 0 | 0 | 0.00 KM |
| Ash Well Grove | £ 479,286 | 0 | 0.00 KM |
| Gunthwaite Lane | £ 0 | 0 | 0.00 KM |
| Lidgett Rise | £ 0 | 0 | 0.00 KM |
| Stubbin Lane | £ 0 | 0 | 0.00 KM |
Nearby Transport
| Name | NLC | TLC | Distance |
|---|---|---|---|
| Denby Dale | 8432 | DBD | 0.74 KM |
| Shepley | 8448 | SPY | 5.62 KM |
| Penistone | 6634 | PNS | 6.50 KM |
| Stocksmoor | 8451 | SSM | 7.73 KM |
Nearby Listings
| Address | Price | Type | Score | Distance |
|---|---|---|---|---|
| Cumberworth Lane, Denby Dale, HD8 | £ 400,000 | BUY | 6 / 10 | 0.00 KM |
| Oak House, Denby Dale, HD8 | £ 650,000 | BUY | 7 / 10 | 0.04 KM |
| Wakefield Road, Denby Dale, Huddersfield, West Yorkshire, HD8 | £ 130,000 | BUY | 6 / 10 | 0.12 KM |
| Morley Fold, Denby Dale, HD8 | £ 239,950 | BUY | Unknown | 0.17 KM |
| Wakefield Road, Denby Dale, Huddersfield | £ 45,000 | BUY | 4 / 10 | 0.18 KM |
Nearby Properties
| Address | Price | Distance |
|---|---|---|
| 289 Cumberworth Lane | £ 96,000 | 0.01 KM |
| 281 Cumberworth Lane | £ 170,000 | 0.01 KM |
| 287 Cumberworth Lane | £ 120,000 | 0.01 KM |
| 291 Cumberworth Lane | £ 35,000 | 0.01 KM |
| 2 Sunnybank | £ 90,000 | 0.12 KM |