Calow Evans says ..
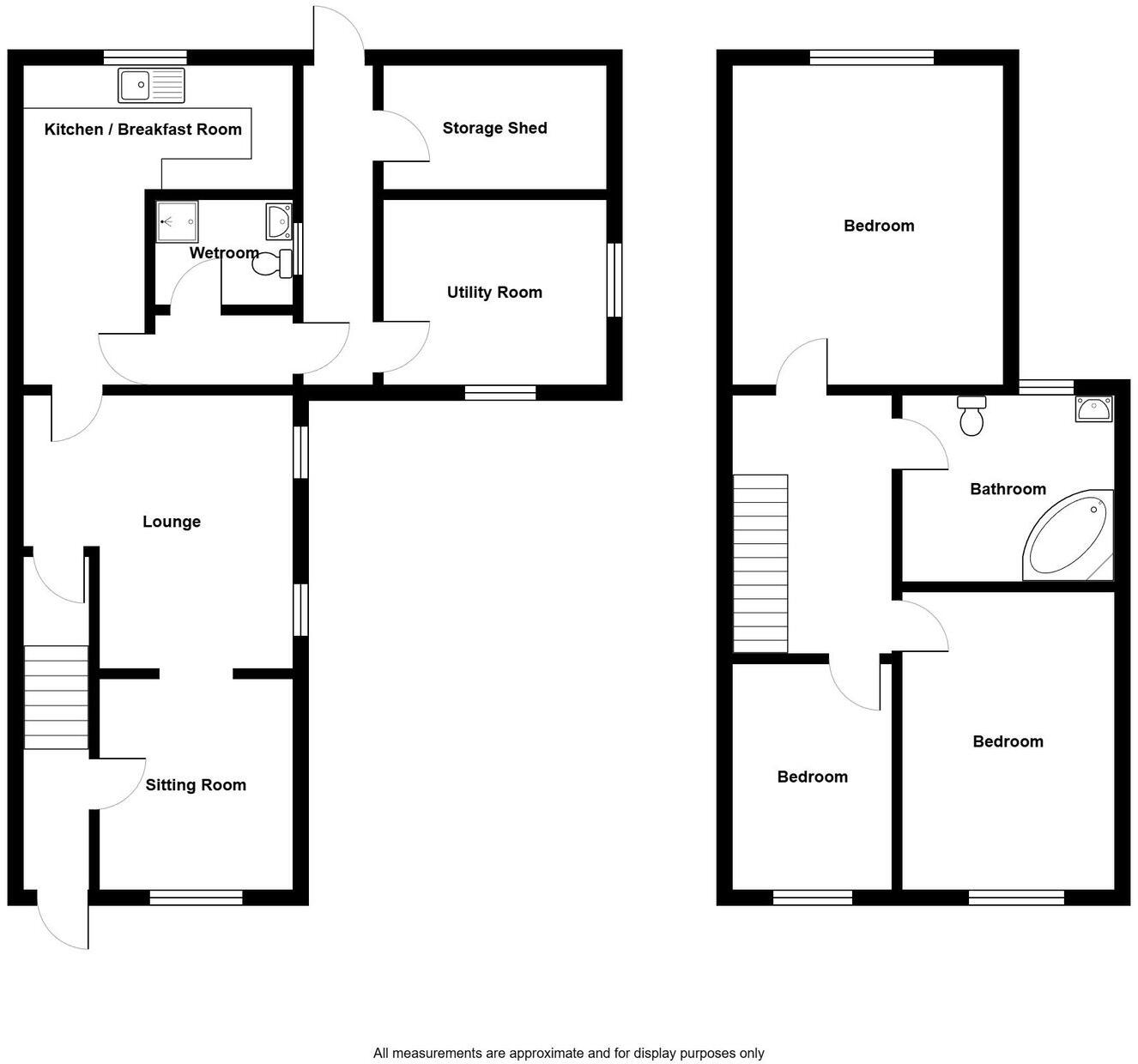
This larger-than-average semi-detached property offers excellent potential and is ideally suited for family living. Located in the sought-after village of Saron, the home provides generous accommodation and the opportunity for further development. The property features a ground floor wet...
Property Oracle says ..
The property is a semi-detached house located in Saron, Carmarthenshire. It has 3 bedrooms and 2 bathrooms and is 1,089 sqft. The property is in need of renovation, particularly the kitchen and bathroom. The property has a good sized garden. The property is located 0.25 KM from Ysgol Gynradd Saron. The property is listed for £199,950, which is below the average price for properties on Saron Road (£203,973) and the average price in the area (£310,998).
Therefore, we give this property 6 / 10. *Disclaimer: This is our option and does constitute a recommendation or financial advice. Do your own research. *
- Price
- 7
- Condition
- 4
- Location
- 6
- Land
- 7
- Bedrooms
- 3
- Bathrooms
- 2
- Sqft (est)
- 1,089.00
The heatmap indicates the level of crime in the area. The color of the heatmap indicates the crime severity and recency.
Metrics Year-on-Year
- Average area value
- 310,998.00 £Decreased by 1.08 %
- Est sale value
- 363,726.00 £Increased by 16.78 %
- Average area rental value
- 1,363.00 £/moIncreased by 13.58 %
- Est letting value
- 1,089.00 £/moUnchanged by 0.00 %
- Est rental Yield
- 5.26 %Increased by 14.85 %
- Crime Rate
- 31.00 %Unchanged by 0.00 %
Agent Activity
Calow Evans created the listing.
Nearby Schools
| Name | Type | Ofsted | Distance |
|---|---|---|---|
| Ysgol Gynradd Saron | Welsh Establishment | 0.25 KM | |
| Ysgol Gynradd Tycroes | Welsh Establishment | 1.94 KM | |
| Penygroes C.P. School | Welsh Establishment | 2.13 KM | |
| Ysgol Gynradd Blaenau | Welsh Establishment | 2.25 KM | |
| Ysgol Gynradd Parcyrhun | Welsh Establishment | 4.32 KM |
Images
Nearby Streets
| Name | Average Price | Average Sqft | Distance |
|---|---|---|---|
| Nant-y-ci Road | £ 203,973 | 0 | 0.00 KM |
| Clos-yr-Hendre | £ 0 | 0 | 0.00 KM |
| Tanyfan | £ 399,995 | 0 | 0.00 KM |
| Llwyn Celyn | £ 0 | 0 | 0.00 KM |
| Waterloo Road | £ 184,988 | 0 | 0.00 KM |
Nearby Transport
| Name | NLC | TLC | Distance |
|---|---|---|---|
| Ammanford | 4236 | AMF | 4.23 KM |
| Pantyffynnon | 4250 | PTF | 4.24 KM |
| Llandybie | 4247 | LLI | 4.92 KM |
| Pontarddulais | 4251 | PTD | 8.03 KM |
Nearby Listings
| Address | Price | Type | Score | Distance |
|---|---|---|---|---|
| Saron Road, Saron, SA18 3LH | £ 199,950 | BUY | 6 / 10 | 0.00 KM |
| Saron Road, Saron, Ammanford, Carmarthenshire, SA18 | £ 235,000 | BUY | 7 / 10 | 0.01 KM |
| 108 Saron Road, Saron, Ammanford, Carmarthenshire. | £ 270,000 | BUY | 6 / 10 | 0.01 KM |
| Saron Road, Saron, Ammanford, Carmarthenshire. | £ 145,000 | BUY | Unknown | 0.01 KM |
| Saron Road, Saron, Ammanford | £ 169,950 | BUY | Unknown | 0.30 KM |
Nearby Properties
| Address | Price | Distance |
|---|---|---|
| 79 Saron Road | £ 208,000 | 0.00 KM |
| 97 Saron Road | £ 235,000 | 0.00 KM |
| 100 Saron Road | £ 167,000 | 0.00 KM |
| 77 Saron Road | £ 75,000 | 0.00 KM |
| 90 Saron Road | £ 118,000 | 0.00 KM |