Landcross House 1a, Landcross Road, Fallowfield
By Gascoigne Halman
£ 150,000
Reviews
2 out of 5 stars
Gascoigne Halman says ..
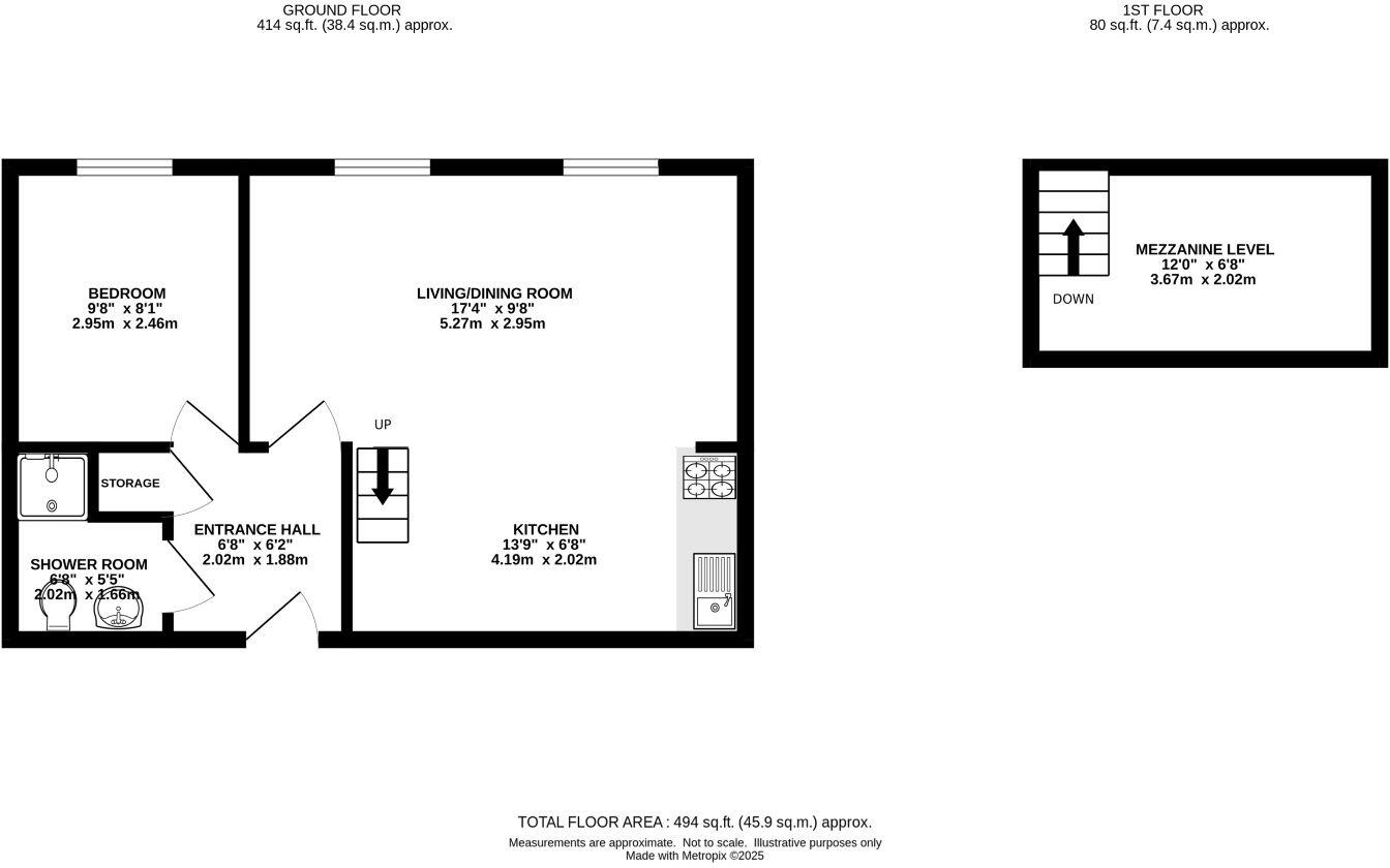
A well presented and light and airy ground floor apartment located only a stone's throw away from excellent transport links, bars, restaurants and local amenities. Offered to the market with No Vendor Chain, this property is ideal for first time buyers and investors alike. Boasting a number o...
Property Oracle says ..
This is a one-bedroom apartment in Fallowfield, Manchester. The property is approximately 494 square feet and is listed for £150,000. Fallowfield is a vibrant area, popular with students and young professionals, offering a range of amenities and transport links. The apartment itself features a modern bathroom and kitchen, but the decor could benefit from some updating. The property’s price per square foot is significantly below the Fallowfield average, suggesting it may be a good investment opportunity.
Therefore, we give this property 5 / 10. *Disclaimer: This is our option and does constitute a recommendation or financial advice. Do your own research. *
- Price
- 8
- Condition
- 6
- Location
- 7
- Land
- 1
- Bedrooms
- 1
- Bathrooms
- 1
- Sqft (est)
- 494.00
The heatmap indicates the level of crime in the area. The color of the heatmap indicates the crime severity and recency.
Metrics Year-on-Year
- Average area value
- 480,222.00 £Decreased by 47.72 %
- Est sale value
- 280,592.00 £Decreased by 10.13 %
- Average area rental value
- 1,868.00 £/moIncreased by 9.11 %
- Est letting value
- 988.00 £/moIncreased by 100.00 %
- Est rental Yield
- 4.67 %Increased by 108.48 %
- Crime Rate
- 0.00 %
Agent Activity
Gascoigne Halman created the listing.
Nearby Schools
| Name | Type | Ofsted | Distance |
|---|---|---|---|
| Manchester High School For Girls | Other Independent School | 0.58 KM | |
| St James' Cofe Primary School, Birch-In-Rusholme | Voluntary Aided School | Good | 0.66 KM |
| Withington Girls' School | Other Independent School | 0.86 KM | |
| The Manchester Grammar School | Other Independent School | 1.20 KM | |
| Xaverian College | Further Education | Outstanding | 1.41 KM |
Images
Nearby Streets
| Name | Average Price | Average Sqft | Distance |
|---|---|---|---|
| Fallowfield Loop | £ 0 | 0 | 0.00 KM |
| Old Hall Lane | £ 0 | 0 | 0.00 KM |
| Fallowfield Loop | £ 0 | 0 | 0.00 KM |
| Lyth Street | £ 0 | 0 | 0.00 KM |
| Stone Place | £ 0 | 0 | 0.00 KM |
Nearby Transport
| Name | NLC | TLC | Distance |
|---|---|---|---|
| Mauldeth Road | 2867 | MAU | 1.58 KM |
| Burnage | 2945 | BNA | 2.48 KM |
| Levenshulme | 2862 | LVM | 2.95 KM |
| Ardwick | 2960 | ADK | 3.19 KM |
| East Didsbury | 2949 | EDY | 3.77 KM |
Nearby Listings
| Address | Price | Type | Score | Distance |
|---|---|---|---|---|
| Landcross House 1a, Landcross Road, Fallowfield | £ 150,000 | BUY | 5 / 10 | 0.00 KM |
| Wilbraham Road, Chorlton | £ 140,000 | BUY | Unknown | 0.06 KM |
| Wilbraham Road, Chorlton | £ 250,000 | BUY | 8 / 10 | 0.06 KM |
| Cawdor Road, Manchester, Greater Manchester, M14 | £ 460,000 | BUY | 5 / 10 | 0.10 KM |
| Cawdor Road, Manchester, M14 | £ 489,950 | BUY | 5 / 10 | 0.10 KM |
Nearby Properties
| Address | Price | Distance |
|---|---|---|
| 16 Landcross Road | £ 52,000 | 0.04 KM |
| 8 Landcross Road | £ 76,000 | 0.04 KM |
| 2 Landcross Road | £ 125,000 | 0.04 KM |
| 10 Landcross Road | £ 420,000 | 0.04 KM |
| 20 Landcross Road | £ 176,750 | 0.06 KM |