Lawrence Rand says ..
A three bedroom semi-detached property situated in a popular road within a short walk of a number of well-regarded schools and stations. The property has off street parking and potential to extend.
Property Oracle says ..
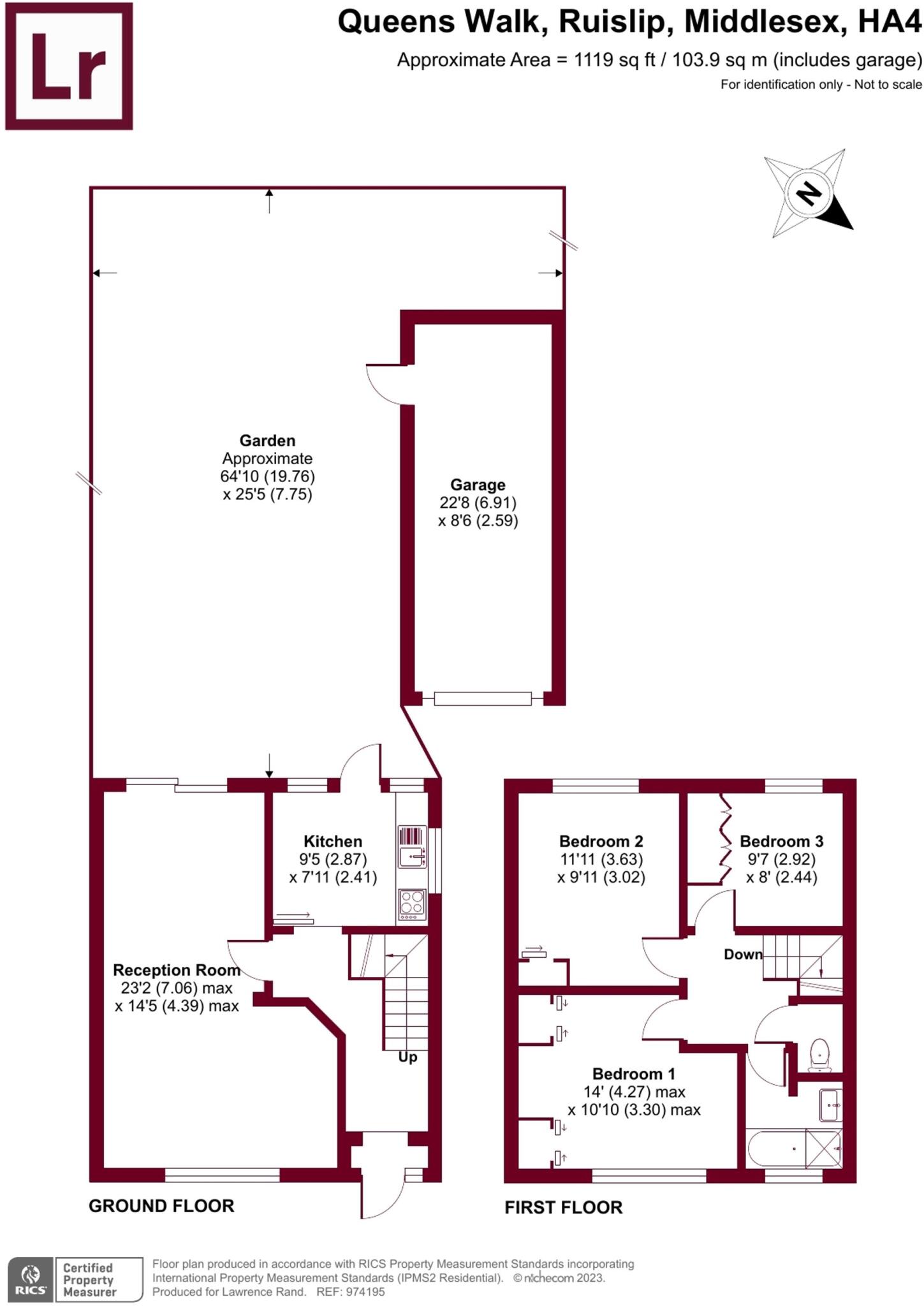
This property is a three-bedroom semi-detached house located in Ruislip, on Queens Walk. The property benefits from being close to local amenities, including schools and transport links. South Ruislip underground station is less than a kilometer away, providing convenient access to central London. The property itself is in need of modernisation and updating. The kitchen and bathrooms appear dated, and the interior decor is tired. However, the property does have a good-sized garden, which is a desirable feature. The list price of £575,000 is slightly above the average price for the area, but given the size of the property (2,465 sqft) and the land size, it could be considered reasonable depending on the buyer’s priorities and willingness to undertake renovations.
Therefore, we give this property 6 / 10. *Disclaimer: This is our option and does constitute a recommendation or financial advice. Do your own research. *
- Price
- 6
- Condition
- 4
- Location
- 8
- Land
- 7
- Bedrooms
- 3
- Bathrooms
- 1
- Sqft (est)
- 2,465.25
- Lot (est)
- 1,119.00
The heatmap indicates the level of crime in the area. The color of the heatmap indicates the crime severity and recency.
Metrics Year-on-Year
- Average area value
- 530,000.00 £Increased by 14.03 %
- Est sale value
- 1,365,748.50 £Increased by 16.14 %
- Average area rental value
- 1,816.00 £/moDecreased by 11.93 %
- Est letting value
- 2,465.25 £/moDecreased by 50.00 %
- Est rental Yield
- 4.11 %Decreased by 22.74 %
- Crime Rate
- 4.00 %Unchanged by 0.00 %
Agent Activity
Lawrence Rand created the listing.
Nearby Schools
| Name | Type | Ofsted | Distance |
|---|---|---|---|
| St Swithun Wells Catholic Primary School | Voluntary Aided School | Outstanding | 0.30 KM |
| Deanesfield Primary School | Community School | Good | 0.71 KM |
| South Ruislip Children'S Centre | Children's Centre | 0.71 KM | |
| Field End Infant School | Community School | Outstanding | 0.75 KM |
| Field End Junior School | Academy Converter | 0.75 KM |
Images
Nearby Streets
| Name | Average Price | Average Sqft | Distance |
|---|---|---|---|
| Broadhurst Gardens | £ 0 | 0 | 0.00 KM |
| Whitby Service Road | £ 535,000 | 0 | 0.00 KM |
| Cat Alley | £ 0 | 0 | 0.00 KM |
| West Mead | £ 320,000 | 0 | 0.00 KM |
| The Fairway | £ 708,333 | 0 | 0.00 KM |
Nearby Transport
| Name | NLC | TLC | Distance |
|---|---|---|---|
| South Ruislip | 3057 | SRU | 0.98 KM |
| Northolt Park | 1478 | NLT | 3.98 KM |
| West Ruislip | 3059 | WRU | 4.79 KM |
| Hatch End | 1398 | HTE | 5.78 KM |
| Headstone Lane | 1434 | HDL | 5.94 KM |
Nearby Listings
| Address | Price | Type | Score | Distance |
|---|---|---|---|---|
| Queens Walk, Ruislip, HA4 | £ 575,000 | BUY | 6 / 10 | 0.00 KM |
| Queens Walk, Ruislip, HA4 | £ 675,000 | BUY | Unknown | 0.06 KM |
| Queens Walk, Ruislip, Middlesex | £ 700,000 | BUY | 7 / 10 | 0.09 KM |
| Crest Gardens, Ruislip | £ 650,000 | BUY | 6 / 10 | 0.12 KM |
| Exmouth Road, Ruislip, HA4 | £ 625,000 | BUY | Unknown | 0.16 KM |
Nearby Properties
| Address | Price | Distance |
|---|---|---|
| 120 Queens Walk | £ 530,000 | 0.07 KM |
| 128 Queens Walk | £ 280,000 | 0.07 KM |
| 104 Queens Walk | £ 200,000 | 0.07 KM |
| 100 Queens Walk | £ 280,000 | 0.07 KM |
| 154 Queens Walk | £ 378,000 | 0.07 KM |