Archbold & Edwards says ..
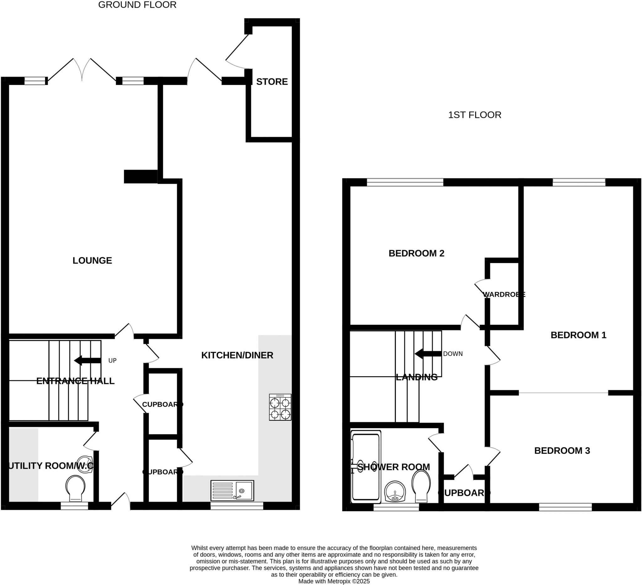
EXTENDED END TERRACE HOME IN PURBROOK OFFERED WITH NO CHAIN AHEAD. A three bedroom end of terrace house located in Purbrook, near Waterlooville and Widley within walking distance of local schools. This property benefits from double glazing, gas central heating system, rear garden, cloakroom/utili...
Property Oracle says ..
Therefore, we give this property 6 / 10. *Disclaimer: This is our option and does constitute a recommendation or financial advice. Do your own research. *
- Price
- 7
- Condition
- 5
- Location
- 7
- Land
- 6
- Bedrooms
- 3
- Bathrooms
- 1
- Sqft (est)
- 827.00
The heatmap indicates the level of crime in the area. The color of the heatmap indicates the crime severity and recency.
Metrics Year-on-Year
- Average area value
- 349,374.00 £Increased by 1.66 %
- Est sale value
- 290,277.00 £Increased by 5.72 %
- Average area rental value
- 1,348.00 £/moDecreased by 29.68 %
- Est letting value
- 827.00 £/moUnchanged by 0.00 %
- Est rental Yield
- 4.63 %Decreased by 30.79 %
- Crime Rate
- 14.00 %Unchanged by 0.00 %
from 343,669.00 £
from 274,564.00 £
from 1,917.00 £/mo
from 827.00 £/mo
from 6.69 %
from 14.00 %
Agent Activity
Archbold & Edwards created the listing.
Nearby Schools
| Name | Type | Ofsted | Distance |
|---|---|---|---|
| Crookhorn College | Foundation School | Good | 0.63 KM |
| Mill Hill, Small Steps And Crookhorn Lane Children'S Centre | Children's Centre | 0.77 KM | |
| Mill Hill Primary School | Community School | Good | 0.77 KM |
| Riverside Community Special School | Community Special School | Outstanding | 0.79 KM |
| St Peter'S Catholic Primary School, Waterlooville | Voluntary Aided School | Good | 0.79 KM |
Images
Nearby Streets
| Name | Average Price | Average Sqft | Distance |
|---|---|---|---|
| Millennium Court | £ 0 | 0 | 0.00 KM |
| Cedar Close | £ 0 | 0 | 0.00 KM |
| Woodlands Grove | £ 0 | 0 | 0.00 KM |
| Timber Lane | £ 0 | 0 | 0.00 KM |
| Rockville Drive | £ 425,000 | 0 | 0.00 KM |
Nearby Transport
| Name | NLC | TLC | Distance |
|---|---|---|---|
| Bedhampton | 5538 | BDH | 4.12 KM |
| Cosham | 5896 | CSA | 5.08 KM |
| Hilsea | 5539 | HLS | 5.50 KM |
| Havant | 5532 | HAV | 5.59 KM |
| Warblington | 5264 | WBL | 7.16 KM |
Nearby Listings
| Address | Price | Type | Score | Distance |
|---|---|---|---|---|
| Sullivan Way, Purbrook | £ 289,995 | BUY | 6 / 10 | 0.00 KM |
| Sullivan Way, Purbrook | £ 325,000 | BUY | 7 / 10 | 0.00 KM |
| Sullivan Way, Purbrook | £ 325,000 | BUY | 7 / 10 | 0.01 KM |
| Sullivan Way, Waterlooville | £ 275,000 | BUY | 6 / 10 | 0.09 KM |
| Sullivan Way, Waterlooville | £ 300,000 | BUY | 7 / 10 | 0.10 KM |
Nearby Properties
| Address | Price | Distance |
|---|---|---|
| 24 Sullivan Way | £ 162,500 | 0.01 KM |
| 12 Sullivan Way | £ 137,500 | 0.01 KM |
| 20 Sullivan Way | £ 174,995 | 0.01 KM |
| 30 Sullivan Way | £ 290,000 | 0.01 KM |
| 14 Sullivan Way | £ 175,000 | 0.01 KM |