Curtisden Green, Goudhurst, Kent, TN17 1LA
By Harpers and Hurlingham
£ 1,495,000
Reviews
3 out of 5 stars
Harpers and Hurlingham says ..
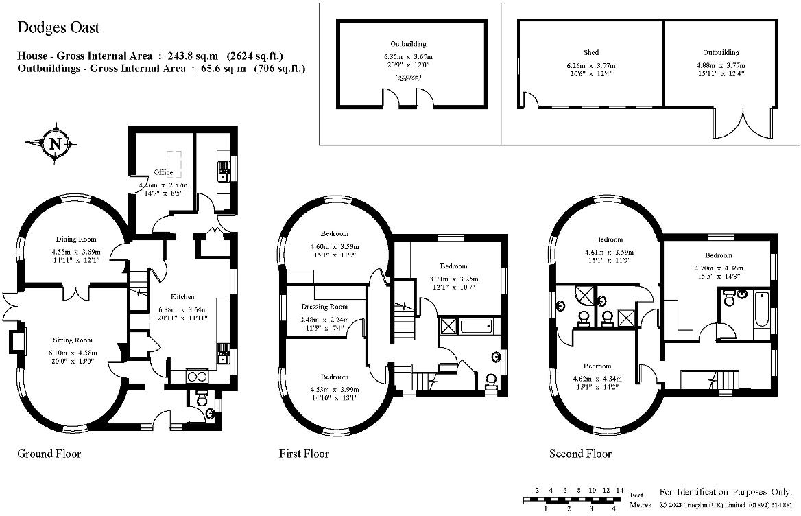
CURTISDEN GREEN - CRANBROOK SCHOOL CATCHMENT Sitting in approximately 2 acres of garden and grounds on the outskirts of Goudhurst and enjoying far reaching views across the Garden of Engla...
Property Oracle says ..
The property is a charming detached house located in Goudhurst, Kent. It is a unique property with a blend of traditional and modern features. The house is in good condition and well-maintained, with a spacious layout and ample natural light. The property benefits from a large plot size of 2,624 sqft, providing ample outdoor space. The location is desirable, with good access to local amenities, schools, and transportation links. The list price of £1,495,000 is relatively high compared to the average price in the area, but considering the property’s unique features, size, and location, it may be justified. Overall, the property presents a great opportunity for a family seeking a spacious and well-located home in a desirable area.
Therefore, we give this property 7 / 10. *Disclaimer: This is our option and does constitute a recommendation or financial advice. Do your own research. *
- Price
- 6
- Condition
- 8
- Location
- 7
- Land
- 9
- Bedrooms
- 6
- Bathrooms
- 6
- Lot (est)
- 2,624.00
The heatmap indicates the level of crime in the area. The color of the heatmap indicates the crime severity and recency.
Metrics Year-on-Year
- Average area value
- 616,250.00 £Increased by 2.51 %
- Average area rental value
- 1,717.00 £/moIncreased by 16.56 %
- Est rental Yield
- 3.34 %Increased by 13.61 %
- Crime Rate
- 0.00 %
Agent Activity
Harpers and Hurlingham created the listing.
Nearby Schools
| Name | Type | Ofsted | Distance |
|---|---|---|---|
| Bethany School | Other Independent School | 0.32 KM | |
| Goudhurst And Kilndown Church Of England Primary School | Voluntary Controlled School | Outstanding | 3.38 KM |
| Colliers Green Church Of England Primary School | Voluntary Aided School | Good | 3.64 KM |
| Marden Primary Academy | Academy Converter | 3.83 KM | |
| Horsmonden Primary Academy | Academy Converter | 5.75 KM |
Images
Nearby Streets
| Name | Average Price | Average Sqft | Distance |
|---|---|---|---|
| Marlpits | £ 0 | 0 | 0.00 KM |
| Ivy Cottages | £ 800,000 | 0 | 0.00 KM |
| Sherenden Lane | £ 0 | 0 | 0.00 KM |
Nearby Transport
| Name | NLC | TLC | Distance |
|---|---|---|---|
| Marden (Kent) | 5223 | MRN | 4.14 KM |
| Staplehurst | 5228 | SPU | 8.16 KM |
Nearby Listings
| Address | Price | Type | Score | Distance |
|---|---|---|---|---|
| Curtisden Green, Goudhurst, Kent, TN17 1LA | £ 1,495,000 | BUY | 7 / 10 | 0.00 KM |
| Within Walking Distance of Bethany School in Curtisden Green | £ 700,000 | BUY | Unknown | 0.28 KM |
| Curtisden Green, Goudhurst, Kent, TN17 1LN | £ 425,000 | BUY | Unknown | 0.66 KM |
| Ashtree Cottages, Goudhurst Road, Marden, Kent, TN12 9NF | £ 575,000 | BUY | 6 / 10 | 0.71 KM |
| Rural Marden, Kent TN12 | £ 595,000 | BUY | Unknown | 0.71 KM |
Nearby Properties
| Address | Price | Distance |
|---|---|---|
| Byways | £ 650,000 | 0.28 KM |
| Anderida | £ 833,000 | 0.28 KM |
| Woolpack Cottage | £ 520,000 | 0.33 KM |
| Curfew Cottage | £ 780,000 | 0.42 KM |
| West Winchet | £ 850,000 | 0.46 KM |