Brookland Avenue, Wistaston, CW2
By James Du Pavey
£ 380,000
Reviews
3 out of 5 stars
James Du Pavey says ..
Charming 3-bed detached home with original features & spacious living areas. Beautiful garden, garage, and sought-after location in Wistaston village near Nantwich."
Property Oracle says ..
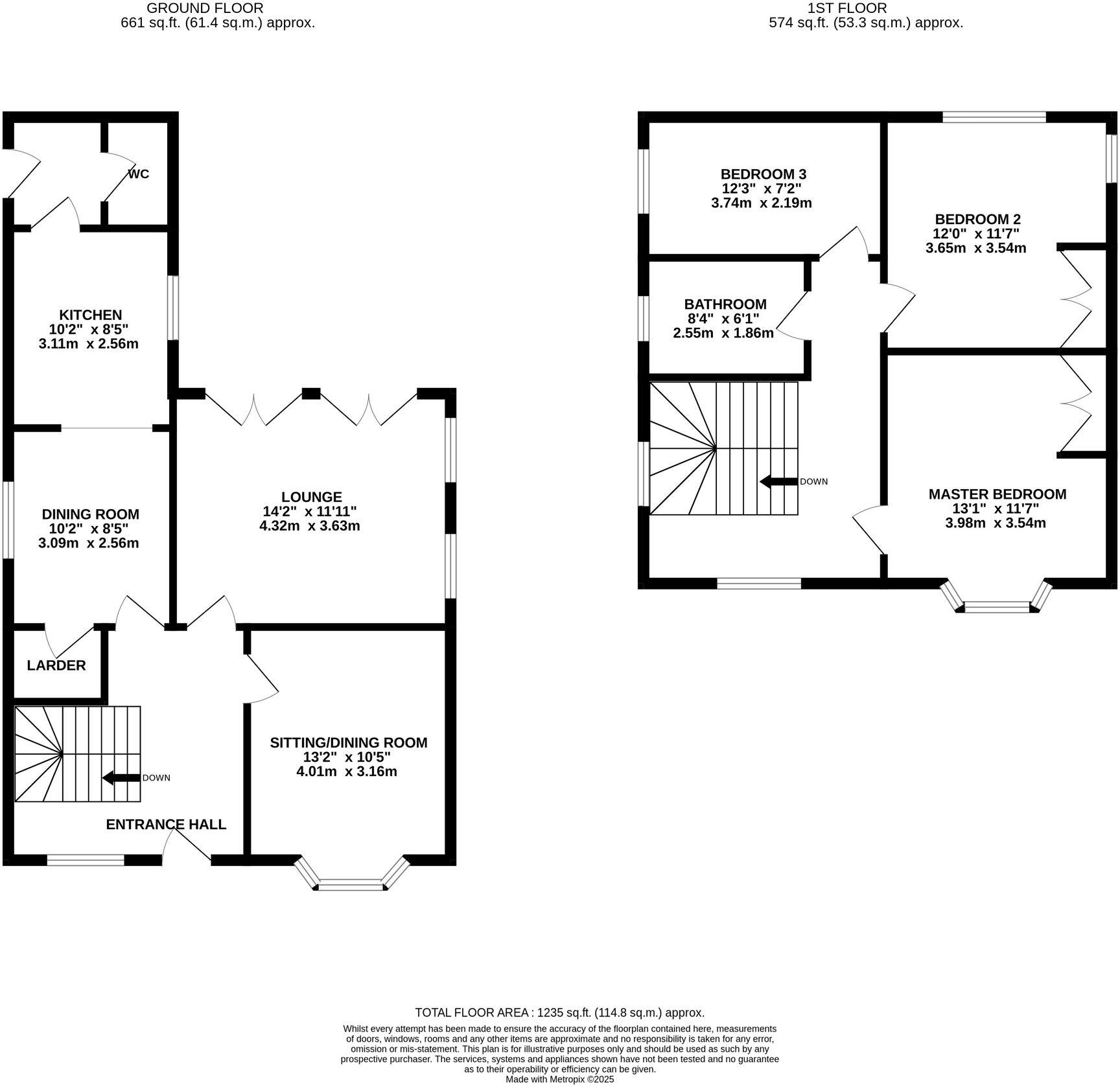
This property is located on Brookland Avenue in Wistaston, Cheshire. The area benefits from good schools such as Wistaston Church Lane Academy (rated Good by Ofsted) and St Mary’s Catholic Primary School (also rated Good), both within a short distance. Transport links are also convenient, with Crewe train station approximately 3.97km away. The property itself is a 3-bedroom house with 1 bathroom, spanning 872.56 sqft on a plot of 1235 sqft. Based on the photos, the property appears to be in reasonably good condition, although some modernisation may be desirable. The kitchen and bathrooms look functional but could benefit from updating. The property has a garden, which is a desirable feature. The list price of £380,000 is higher than the average price for the area (£245,705), but this is likely due to the larger plot size and the property’s location on Brookland Avenue, where comparable properties have sold for prices ranging from £290,000 to £400,000. Considering the condition, location and land size, the price seems reasonable within the context of the local market.
Therefore, we give this property 7 / 10. *Disclaimer: This is our option and does constitute a recommendation or financial advice. Do your own research. *
- Price
- 6
- Condition
- 7
- Location
- 8
- Land
- 7
- Bedrooms
- 3
- Bathrooms
- 1
- Sqft (est)
- 872.56
- Lot (est)
- 1,235.00
The heatmap indicates the level of crime in the area. The color of the heatmap indicates the crime severity and recency.
Metrics Year-on-Year
- Average area value
- 268,792.00 £Decreased by 11.42 %
- Est sale value
- 252,169.84 £Increased by 36.32 %
- Average area rental value
- 1,600.00 £/moIncreased by 36.17 %
- Est letting value
- 872.56 £/mo
- Est rental Yield
- 7.14 %Increased by 53.55 %
- Crime Rate
- 0.00 %
Agent Activity
James Du Pavey marked this listing as sold.
James Du Pavey created the listing.
Nearby Schools
| Name | Type | Ofsted | Distance |
|---|---|---|---|
| Wistaston Church Lane Academy | Academy Converter | Good | 1.03 KM |
| St Mary'S Catholic Primary School, Crewe | Voluntary Aided School | Good | 1.10 KM |
| St Thomas More Catholic High School | Academy Converter | Good | 1.19 KM |
| Wistaston Academy | Academy Converter | 1.31 KM | |
| Vine Tree Primary School | Community School | Good | 1.32 KM |
Images
Nearby Streets
| Name | Average Price | Average Sqft | Distance |
|---|---|---|---|
| Hardy Close | £ 0 | 0 | 0.00 KM |
| Princess Close | £ 365,000 | 0 | 0.00 KM |
| Marlowe Close | £ 0 | 0 | 0.00 KM |
| Spencer Close | £ 245,000 | 0 | 0.00 KM |
| Carisbrooke Close | £ 0 | 0 | 0.00 KM |
Nearby Transport
| Name | NLC | TLC | Distance |
|---|---|---|---|
| Crewe | 1243 | CRE | 3.97 KM |
| Nantwich | 1247 | NAN | 5.97 KM |
Nearby Listings
| Address | Price | Type | Score | Distance |
|---|---|---|---|---|
| Brookland Avenue, Wistaston, CW2 | £ 380,000 | BUY | 7 / 10 | 0.00 KM |
| Wellsgreen Place, Wistaston, Crewe, Cheshire, CW2 | £ 525,000 | BUY | 7 / 10 | 0.12 KM |
| Brookland Avenue, Wistaston, CW2 | £ 325,000 | BUY | 7 / 10 | 0.12 KM |
| Brookland Avenue, Wistaston, Crewe, Cheshire, CW2 | £ 350,000 | BUY | 7 / 10 | 0.15 KM |
| Crewe Road, Wistaston, Crewe | £ 380,000 | BUY | 6 / 10 | 0.16 KM |
Nearby Properties
| Address | Price | Distance |
|---|---|---|
| 16 Brookland Avenue | £ 179,000 | 0.06 KM |
| 21 Brookland Avenue | £ 70,000 | 0.06 KM |
| 14a Brookland Avenue | £ 300,000 | 0.06 KM |
| 17 Brookland Avenue | £ 216,000 | 0.06 KM |
| 9 Brookland Avenue | £ 170,000 | 0.06 KM |