Coopers says ..
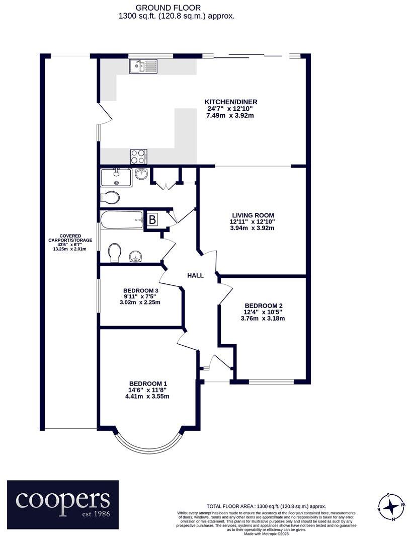
This well-maintained bungalow features a spacious living room, an open-plan kitchen/diner with garden access, and three versatile bedrooms, including a bay-fronted main bedroom. Two family bathrooms and a covered carport/storage area complete the layout, offering practical single-level living in ...
Property Oracle says ..
The property is located in a desirable area close to highly-rated schools and transport links. It is in excellent condition, having been recently renovated, and benefits from a large garden. While the list price is higher than the average for the area, the superior condition, large plot size, and prime location may justify the cost. Further analysis of comparable properties with similar features would provide a more precise valuation.
Therefore, we give this property 8 / 10. *Disclaimer: This is our option and does constitute a recommendation or financial advice. Do your own research. *
- Price
- 7
- Condition
- 10
- Location
- 9
- Land
- 9
- Bedrooms
- 3
- Bathrooms
- 2
- Sqft (est)
- 1,038.25
- Lot (est)
- 1,300.00
The heatmap indicates the level of crime in the area. The color of the heatmap indicates the crime severity and recency.
Metrics Year-on-Year
- Average area value
- 387,843.00 £Increased by 1.47 %
- Est sale value
- 401,802.75 £Increased by 24.84 %
- Average area rental value
- 1,806.00 £/moIncreased by 16.22 %
- Est letting value
- 1,038.25 £/moUnchanged by 0.00 %
- Est rental Yield
- 5.59 %Increased by 14.55 %
- Crime Rate
- 3.00 %Unchanged by 0.00 %
Agent Activity
Coopers created the listing.
Nearby Schools
| Name | Type | Ofsted | Distance |
|---|---|---|---|
| Sacred Heart Catholic Primary School | Voluntary Aided School | Outstanding | 0.10 KM |
| Ruislip Gardens Primary School | Community School | Good | 0.72 KM |
| Warrender Primary School | Community School | Good | 1.56 KM |
| Bishop Winnington-Ingram Cofe Primary School | Voluntary Aided School | Good | 1.67 KM |
| Glebe Primary School | Community School | Good | 1.67 KM |
Images
Nearby Streets
| Name | Average Price | Average Sqft | Distance |
|---|---|---|---|
| Pond Green | £ 614,990 | 981 | 0.00 KM |
| Pembroke Road | £ 314,000 | 0 | 0.00 KM |
| Berkeley Close | £ 316,000 | 0 | 0.00 KM |
| Glenalla Road | £ 800,000 | 0 | 0.00 KM |
| Windmill Hill | £ 0 | 0 | 0.00 KM |
Nearby Transport
| Name | NLC | TLC | Distance |
|---|---|---|---|
| West Ruislip | 3059 | WRU | 1.55 KM |
| South Ruislip | 3057 | SRU | 2.96 KM |
| Hayes And Harlington | 3186 | HAY | 7.13 KM |
| Northolt Park | 1478 | NLT | 7.22 KM |
| Hatch End | 1398 | HTE | 7.74 KM |
Nearby Listings
| Address | Price | Type | Score | Distance |
|---|---|---|---|---|
| Herlwyn Avenue, Ruislip | £ 800,000 | BUY | 8 / 10 | 0.00 KM |
| Herlwyn Avenue, Ruislip, Middlesex | £ 1,000,000 | BUY | 9 / 10 | 0.01 KM |
| Herlwyn Avenue, Ruislip | £ 690,000 | BUY | 5 / 10 | 0.04 KM |
| Herlwyn Avenue, Ruislip | £ 750,000 | BUY | Unknown | 0.05 KM |
| Herlwyn Avenue, Ruislip, London, Middlesex, HA4 6HE | £ 410,000 | BUY | Unknown | 0.05 KM |
Nearby Properties
| Address | Price | Distance |
|---|---|---|
| 41 Herlwyn Avenue | £ 355,500 | 0.01 KM |
| 75 Herlwyn Avenue | £ 890,000 | 0.01 KM |
| 27a Herlwyn Avenue | £ 229,950 | 0.01 KM |
| 29 Herlwyn Avenue | £ 300,000 | 0.01 KM |
| 7 Herlwyn Avenue | £ 850,000 | 0.01 KM |