Arbour Crescent, Tytherington
By Gascoigne Halman
£ 425,000
Reviews
3 out of 5 stars
Gascoigne Halman says ..
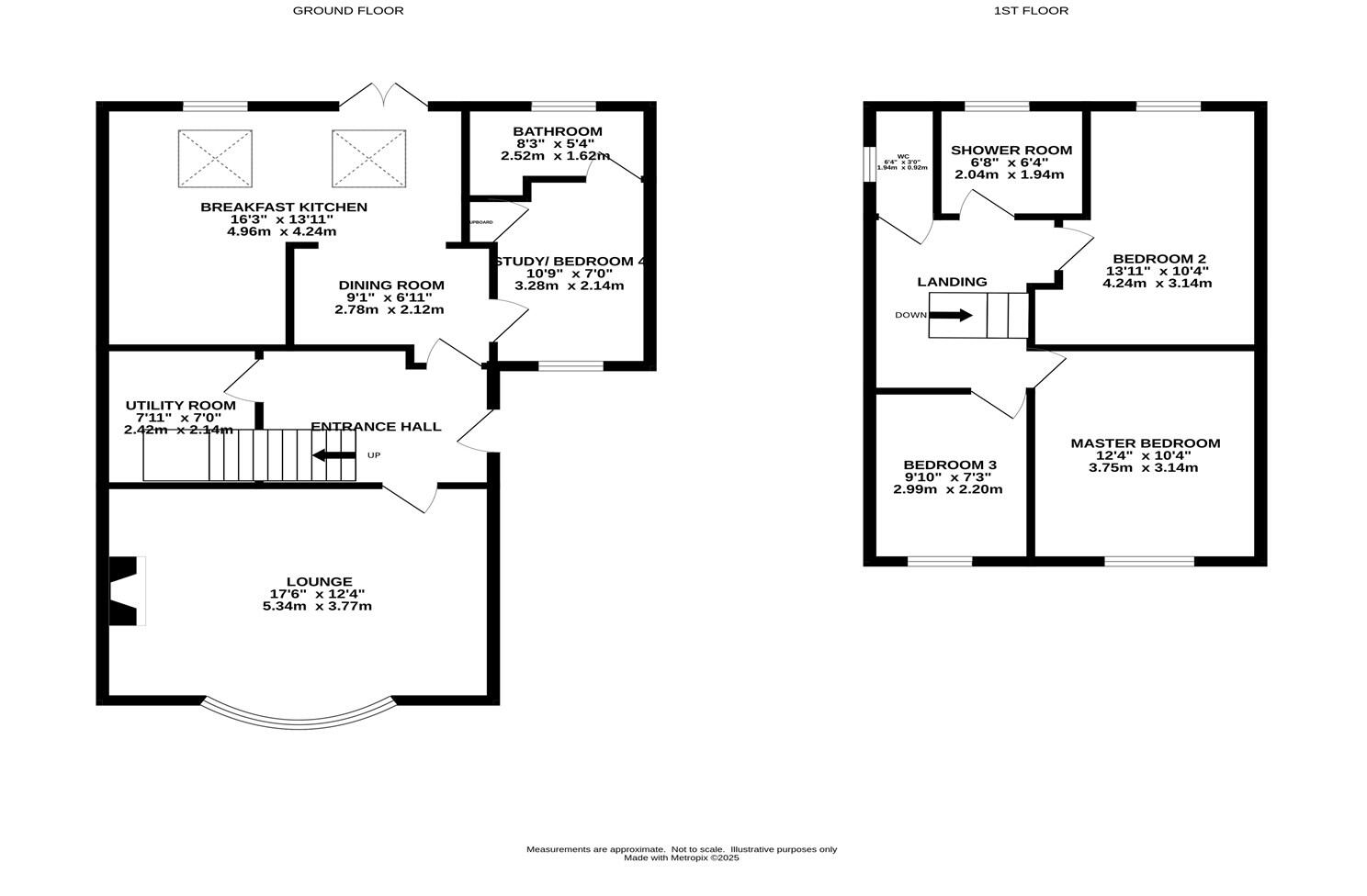
An extended and well presented three/four bedroom detached home enjoying a lovely private position in this sought after cul de sac in Tytherington. Three bedrooms and a bathroom on the first floor and a bedroom/study and a bathroom on the ground floor. Great size open plan dining kitchen.
Property Oracle says ..
This property is a 3-bedroom, 1-bathroom detached house located in Arbour Crescent, Tytherington, Macclesfield. The location benefits from being close to several schools, including Marlborough Primary School (0.40km) and Tytherington School (0.53km), both rated as ‘Good’ by Ofsted. Transport links are also relatively convenient, with Macclesfield train station approximately 1.72km away. The property itself appears to be in good condition, with a recently updated kitchen and bathroom. The images show a well-maintained garden. The list price of £425,000 is slightly above the average price for the area (£404,194), but given the property’s condition, location, and garden, it seems reasonably priced. The average price per sqft in the area is £132, while this property is listed at approximately £414 per sqft. This is higher than the average, but comparable to other similar properties in the area.
Therefore, we give this property 7 / 10. *Disclaimer: This is our option and does constitute a recommendation or financial advice. Do your own research. *
- Price
- 7
- Condition
- 8
- Location
- 9
- Land
- 7
- Bedrooms
- 3
- Bathrooms
- 1
- Sqft (est)
- 1,025.43
The heatmap indicates the level of crime in the area. The color of the heatmap indicates the crime severity and recency.
Metrics Year-on-Year
- Average area value
- 439,983.00 £Increased by 15.50 %
- Est sale value
- 533,223.60 £Increased by 73.91 %
- Average area rental value
- 1,823.00 £/moIncreased by 46.54 %
- Est letting value
- 2,050.86 £/mo
- Est rental Yield
- 4.97 %Increased by 26.79 %
- Crime Rate
- 2.00 %Unchanged by 0.00 %
Agent Activity
Gascoigne Halman created the listing.
Nearby Schools
| Name | Type | Ofsted | Distance |
|---|---|---|---|
| Marlborough Primary School | Academy Converter | Good | 0.40 KM |
| Tytherington School | Academy Converter | Good | 0.53 KM |
| Beech Hall School | Other Independent School | 0.70 KM | |
| Bollinbrook Cofe (A) Primary School | Voluntary Aided School | Requires improvement | 1.29 KM |
| Hurdsfield Children'S Centre | Children's Centre | 1.79 KM |
Images
Nearby Streets
| Name | Average Price | Average Sqft | Distance |
|---|---|---|---|
| Hall Close | £ 425,000 | 0 | 0.00 KM |
| Ripon Close | £ 0 | 0 | 0.00 KM |
| Marlborough Close | £ 0 | 0 | 0.00 KM |
| Larkwood Way | £ 0 | 0 | 0.00 KM |
| Beech Bank | £ 795,000 | 0 | 0.00 KM |
Nearby Transport
| Name | NLC | TLC | Distance |
|---|---|---|---|
| Macclesfield | 2871 | MAC | 1.72 KM |
| Prestbury | 2875 | PRB | 3.01 KM |
| Adlington (Cheshire) | 2939 | ADC | 5.11 KM |
| Poynton | 2874 | PYT | 8.52 KM |
Nearby Listings
| Address | Price | Type | Score | Distance |
|---|---|---|---|---|
| Arbour Crescent, Tytherington | £ 425,000 | BUY | 7 / 10 | 0.00 KM |
| Brocklehurst Way, Macclesfield | £ 129,950 | BUY | 7 / 10 | 0.09 KM |
| Fitz Crescent, Macclesfield, Cheshire, SK10 | £ 350,000 | BUY | 7 / 10 | 0.12 KM |
| Fitz Crescent, Tytherington, Macclesfield, Cheshire, SK10 | £ 335,000 | BUY | 7 / 10 | 0.13 KM |
| Tytherington Drive, Tytherington, Cheshire, SK10 | £ 385,000 | BUY | 8 / 10 | 0.14 KM |
Nearby Properties
| Address | Price | Distance |
|---|---|---|
| 3 Brocklehurst Mews | £ 34,950 | 0.05 KM |
| 10 Brocklehurst Mews | £ 74,000 | 0.05 KM |
| 4 Arbour Crescent | £ 410,000 | 0.09 KM |
| 5 Arbour Crescent | £ 324,000 | 0.09 KM |
| 1 Arbour Crescent | £ 329,950 | 0.09 KM |