Henley Charles says ..
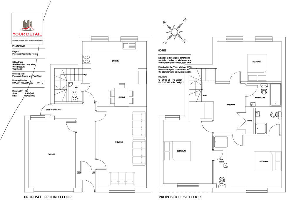
Freehold Land Available for Development, With Potential To Build A Detached Three Bed Residence.
Property Oracle says ..
This is a plot of land in Darlaston South, Wednesbury, offered at £75,000. The location offers proximity to schools, but is a distance from train stations. The land requires significant work to clear and prepare it for building. Considering the average property prices in the area, the asking price appears reasonable for a plot of land in this condition. This property is being sold by Henley Charles.
Therefore, we give this property 5 / 10. *Disclaimer: This is our option and does constitute a recommendation or financial advice. Do your own research. *
- Price
- 8
- Condition
- 1
- Location
- 5
- Land
- 6
- Bedrooms
- 0
- Bathrooms
- 0
The heatmap indicates the level of crime in the area. The color of the heatmap indicates the crime severity and recency.
Metrics Year-on-Year
- Average area value
- 202,143.00 £Increased by 9.20 %
- Average area rental value
- 1,011.00 £/moIncreased by 9.30 %
- Est rental Yield
- 6.00 %Unchanged by 0.00 %
- Crime Rate
- 4.00 %Unchanged by 0.00 %
Agent Activity
Henley Charles created the listing.
Nearby Schools
| Name | Type | Ofsted | Distance |
|---|---|---|---|
| Grace Academy Darlaston | Academy Sponsor Led | Good | 0.31 KM |
| Pinfold Street Primary School | Community School | Good | 0.67 KM |
| Old Church Church Of England C Primary School | Voluntary Controlled School | Good | 0.85 KM |
| Woods Bank Academy | Academy Converter | Good | 0.89 KM |
| Rowley View Nursery School | Local Authority Nursery School | Outstanding | 0.94 KM |
Images
Nearby Streets
| Name | Average Price | Average Sqft | Distance |
|---|---|---|---|
| Hewitt Street | £ 0 | 0 | 0.00 KM |
| Quill Close | £ 0 | 0 | 0.00 KM |
| Hall Street | £ 98,500 | 0 | 0.00 KM |
| Festival Avenue | £ 0 | 0 | 0.00 KM |
| Marston Avenue | £ 159,950 | 0 | 0.00 KM |
Nearby Transport
| Name | NLC | TLC | Distance |
|---|---|---|---|
| Tipton | 1159 | TIP | 4.48 KM |
| Dudley Port | 1212 | DDP | 4.65 KM |
| Coseley | 1143 | CSY | 4.86 KM |
| Bescot Stadium | 1003 | BSC | 6.24 KM |
| Bloxwich | 1141 | BLX | 7.00 KM |
Nearby Listings
| Address | Price | Type | Score | Distance |
|---|---|---|---|---|
| Heathfield Road, Wednesbury | £ 75,000 | BUY | 5 / 10 | 0.00 KM |
| Heathfield Lane West, Darlaston, Wednesbury, WS10 | £ 210,000 | BUY | 6 / 10 | 0.03 KM |
| Heathfield Lane West, WEDNESBURY | £ 260,000 | BUY | 6 / 10 | 0.03 KM |
| 36 Berry Avenue, Wednesbury, WS10 8QE | £ 130,000 | BUY | 5 / 10 | 0.09 KM |
| Heathfield Lane West, Wednesbury | £ 230,000 | BUY | 7 / 10 | 0.13 KM |
Nearby Properties
| Address | Price | Distance |
|---|---|---|
| 71 Heathfield Lane West | £ 91,500 | 0.00 KM |
| 67 Heathfield Lane West | £ 135,000 | 0.00 KM |
| 59 Heathfield Lane West | £ 80,000 | 0.02 KM |
| 56 Heathfield Lane West | £ 81,000 | 0.02 KM |
| 50 Heathfield Lane West | £ 118,000 | 0.02 KM |