Hunter French says ..
An outstanding Grade II listed Cotswold townhouse in the heart of this historic and sought after market town. Finished to an exemplary specification throughout, this property seamlessly blends historic features with a contemporary finish. Offered to the market with no onward chain....
Property Oracle says ..
This property is a charming terraced house located on Silver Street in Tetbury, Gloucestershire. Tetbury is a popular market town in the Cotswolds, known for its attractive architecture and independent shops. The property itself appears to be a period property, well-maintained and renovated to a high standard. The images show exposed beams, stone walls, and a mix of modern and traditional features. The kitchen is particularly striking, with a mix of modern appliances and rustic charm. There is a small courtyard garden, which is a desirable feature in a town centre location. While the square footage is not provided, the list price of £935,000 seems high compared to the average price in the area (£243,233), but comparable to other high-end properties on Silver Street and in the immediate vicinity. The proximity to good schools such as St Mary’s Church of England VA Primary School and Sir William Romney’s School, both rated “Good” by Ofsted, is a significant positive. However, information regarding the property size is needed for a thorough price analysis.
Therefore, we give this property 6 / 10. *Disclaimer: This is our option and does constitute a recommendation or financial advice. Do your own research. *
- Price
- 6
- Condition
- 9
- Location
- 9
- Land
- 3
- Bedrooms
- 4
- Bathrooms
- 3
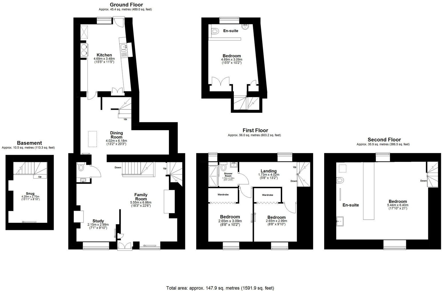
- Sqft (est)
- 1,591.98
The heatmap indicates the level of crime in the area. The color of the heatmap indicates the crime severity and recency.
Metrics Year-on-Year
- Average area value
- 616,357.00 £Decreased by 5.19 %
- Est sale value
- 670,223.58 £Decreased by 29.83 %
- Average area rental value
- 1,925.00 £/moDecreased by 49.74 %
- Est letting value
- 1,591.98 £/moDecreased by 66.67 %
- Est rental Yield
- 3.75 %Decreased by 46.96 %
- Crime Rate
- 35.00 %Unchanged by 0.00 %
Agent Activity
Hunter French created the listing.
Nearby Schools
| Name | Type | Ofsted | Distance |
|---|---|---|---|
| Springboard Children'S Centre (Tetbury) | Children's Centre | 0.44 KM | |
| St Mary'S Church Of England Va Primary School | Voluntary Aided School | Good | 0.72 KM |
| Sir William Romney'S School | Academy Converter | Good | 1.17 KM |
| Avening Primary School | Community School | Good | 5.31 KM |
| Westonbirt School | Other Independent School | 5.63 KM |
Images
Nearby Streets
| Name | Average Price | Average Sqft | Distance |
|---|---|---|---|
| Market Place | £ 387,500 | 0 | 0.00 KM |
| Silver Street | £ 400,000 | 0 | 0.00 KM |
| The Green | £ 873,333 | 0 | 0.00 KM |
| Chipping Steps | £ 420,000 | 0 | 0.00 KM |
| Fox Hill | £ 925,000 | 0 | 0.00 KM |
Nearby Listings
| Address | Price | Type | Score | Distance |
|---|---|---|---|---|
| Silver Street, Tetbury | £ 935,000 | BUY | 6 / 10 | 0.00 KM |
| Silver Street, Tetbury | £ 875,000 | BUY | 7 / 10 | 0.00 KM |
| Silver Street, Tetbury, Gloucestershire | £ 935,000 | BUY | 7 / 10 | 0.01 KM |
| Silver Street, Tetbury | £ 1,495,000 | BUY | 7 / 10 | 0.01 KM |
| Silver Street, Tetbury, Gloucestershire, GL8 | £ 125,000 | BUY | 5 / 10 | 0.02 KM |
Nearby Properties
| Address | Price | Distance |
|---|---|---|
| 5 Silver Street | £ 299,950 | 0.01 KM |
| 6b Silver Street | £ 102,000 | 0.01 KM |
| 9 Silver Street | £ 285,000 | 0.01 KM |
| 8 Silver Street | £ 845,000 | 0.01 KM |
| 1 Silver Street | £ 200,000 | 0.01 KM |