Downshaw Road, Ashton-under-Lyne, Greater Manchester, OL7
By Reeds Rains
£ 255,000
Reviews
3 out of 5 stars
Reeds Rains says ..
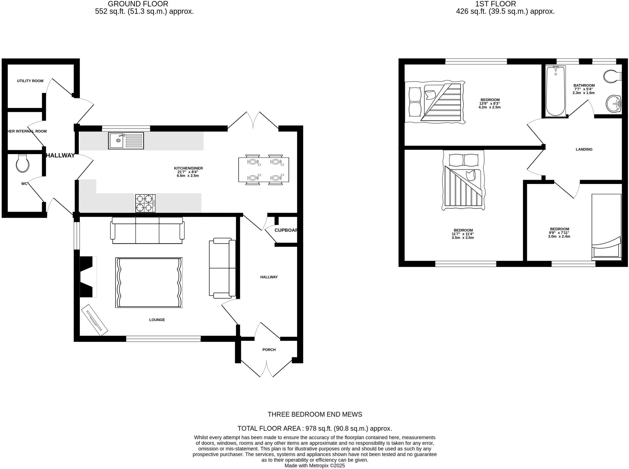
Well presented three bedroom end mews enjoying a large corner plot and situated in a popular residential area close to Daisy Nook Country Park and Park Bridge Heritage Centre. Huge driveway and multiple utility rooms to the side which lend themselves to easy conversion to living accommodation. Cl...
Property Oracle says ..
Therefore, we give this property 7 / 10. *Disclaimer: This is our option and does constitute a recommendation or financial advice. Do your own research. *
- Price
- 8
- Condition
- 6
- Location
- 7
- Land
- 7
- Bedrooms
- 3
- Bathrooms
- 1
The heatmap indicates the level of crime in the area. The color of the heatmap indicates the crime severity and recency.
Metrics Year-on-Year
- Average area value
- 273,300.00 £Increased by 9.04 %
- Average area rental value
- 1,067.00 £/moDecreased by 26.36 %
- Est rental Yield
- 4.68 %Decreased by 32.56 %
- Crime Rate
- 0.00 %
from 250,650.00 £
from 1,449.00 £/mo
from 6.94 %
from 0.00 %
Agent Activity
Reeds Rains created the listing.
Nearby Schools
| Name | Type | Ofsted | Distance |
|---|---|---|---|
| Waterloo Children'S Centre | Children's Centre Linked Site | 0.36 KM | |
| Canon Burrows Cofe Primary School | Voluntary Aided School | Outstanding | 0.54 KM |
| Waterloo Primary School | Academy Converter | 0.66 KM | |
| Canon Johnson Cofe Primary School | Academy Converter | 0.98 KM | |
| Oasis Academy Broadoak | Academy Converter | Good | 1.25 KM |
Images
Nearby Streets
| Name | Average Price | Average Sqft | Distance |
|---|---|---|---|
| Gatekeeper Fold | £ 0 | 0 | 0.00 KM |
| The Heath | £ 345,000 | 0 | 0.00 KM |
| Colwyn Street | £ 120,000 | 0 | 0.00 KM |
| Dunkerley Street | £ 0 | 0 | 0.00 KM |
| Greenways | £ 0 | 0 | 0.00 KM |
Nearby Transport
| Name | NLC | TLC | Distance |
|---|---|---|---|
| Ashton-Under-Lyne | 2790 | AHN | 1.45 KM |
| Guide Bridge | 2955 | GUI | 3.46 KM |
| Hyde North | 2959 | HYT | 4.54 KM |
| Stalybridge | 2983 | SYB | 4.64 KM |
| Flowery Field | 2786 | FLF | 5.03 KM |
Nearby Listings
| Address | Price | Type | Score | Distance |
|---|---|---|---|---|
| Downshaw Road, Ashton-under-Lyne, Greater Manchester, OL7 | £ 255,000 | BUY | 7 / 10 | 0.00 KM |
| Downshaw Road, Ashton-under-Lyne, Greater Manchester, OL7 | £ 170,000 | BUY | 6 / 10 | 0.01 KM |
| Wilshaw Grove, Ashton-Under-Lyne, OL7 | £ 280,000 | BUY | 6 / 10 | 0.15 KM |
| Downshaw Road, Ashton-under-Lyne, OL7 | £ 260,000 | BUY | 6 / 10 | 0.16 KM |
| Downshaw Road, Ashton-under-Lyne, Greater Manchester, OL7 | £ 325,000 | BUY | 7 / 10 | 0.19 KM |
Nearby Properties
| Address | Price | Distance |
|---|---|---|
| 105 Downshaw Road | £ 194,000 | 0.08 KM |
| 60 Downshaw Road | £ 225,000 | 0.08 KM |
| 89 Downshaw Road | £ 117,500 | 0.10 KM |
| 93 Downshaw Road | £ 97,000 | 0.10 KM |
| 70 Downshaw Road | £ 120,000 | 0.10 KM |