EX
Palmeira Ave, Hove, BN3
By eXp UK
£ 650,000
eXp UK says ..
Offering you a large private walled garden & garage, this lower ground floor flat was professionally refurbished to an exquisite standard, located in the perfect position; Palmeira Avenue in central Hove. Offered with no chain, ready to move in when you are! REF: SC0340 EPC: D61
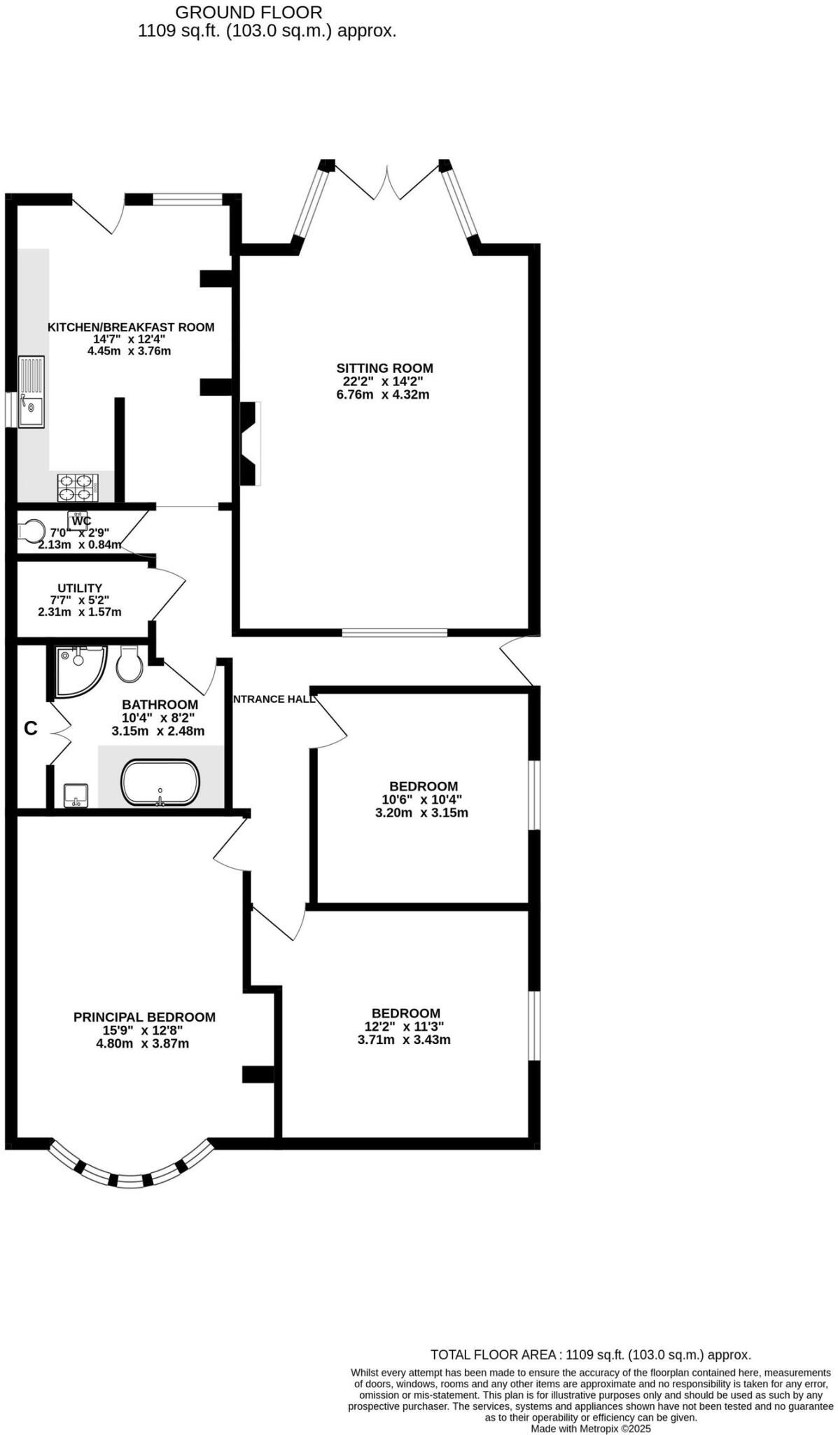
- Bedrooms
- 3
- Bathrooms
- 1
The heatmap indicates the level of crime in the area. The color of the heatmap indicates the crime severity and recency.
Metrics Year-on-Year
- Average area value
- 684,528.00 £Increased by 37.85 %
- Average area rental value
- 1,631.00 £/moDecreased by 11.84 %
- Est rental Yield
- 2.86 %Decreased by 36.02 %
- Crime Rate
- 1.00 %Unchanged by 0.00 %
from 496,585.00 £
from 1,850.00 £/mo
from 4.47 %
from 1.00 %
Agent Activity
eXp UK created the listing.
Nearby Schools
| Name | Type | Ofsted | Distance |
|---|---|---|---|
| Brunswick Primary School | Community School | Good | 0.30 KM |
| The Montessori Place | Other Independent School | Outstanding | 0.32 KM |
| Cottesmore St Mary'S Catholic Primary School | Voluntary Aided School | Good | 0.75 KM |
| Cardinal Newman Catholic School | Voluntary Aided School | Good | 0.83 KM |
| Drive Preparatory School | Other Independent School | Good | 0.86 KM |
Images
Nearby Streets
| Name | Average Price | Average Sqft | Distance |
|---|---|---|---|
| Burton Walk | £ 0 | 0 | 0.00 KM |
| Cambridge Road | £ 481,238 | 0 | 0.00 KM |
| Dudley Mews | £ 617,500 | 0 | 0.00 KM |
| Saint John's Road | £ 0 | 0 | 0.00 KM |
| St. Johns Road | £ 0 | 0 | 0.00 KM |
Nearby Transport
| Name | NLC | TLC | Distance |
|---|---|---|---|
| Hove | 5273 | HOV | 1.14 KM |
| Preston Park | 5285 | PRP | 1.86 KM |
| Brighton | 5268 | BTN | 2.25 KM |
| Aldrington | 5280 | AGT | 2.55 KM |
| London Road (Brighton) | 5281 | LRB | 2.85 KM |
Nearby Listings
| Address | Price | Type | Score | Distance |
|---|---|---|---|---|
| Palmeira Ave, Hove, BN3 | £ 650,000 | BUY | Unknown | 0.00 KM |
| Palmeira Avenue, Hove | £ 325,000 | BUY | Unknown | 0.00 KM |
| Palmeira Avenue, Hove, East Sussex, BN3 | £ 525,000 | BUY | 6 / 10 | 0.04 KM |
| Kinsale Court, 50 Palmeira Avenue, Hove | £ 325,000 | BUY | Unknown | 0.04 KM |
| Palmeira Avenue, Hove | £ 575,000 | BUY | 5 / 10 | 0.05 KM |
Nearby Properties
| Address | Price | Distance |
|---|---|---|
| 130 Holland Road | £ 220,000 | 0.16 KM |
| 114 Holland Road | £ 540,000 | 0.16 KM |
| 126 Holland Road | £ 340,000 | 0.16 KM |
| 120 Holland Road | £ 451,500 | 0.16 KM |
| 129 Holland Road | £ 235,000 | 0.17 KM |