Vansittart Drive, Exmouth
By Links Estate Agents
£ 270,000
Reviews
3 out of 5 stars
Links Estate Agents says ..
Benefiting from a good size corner plot and located within a popular residential area, is this well presented two double bedroom end terrace house that is within walking distance to a doctors surgery, chemist, school and shops
Property Oracle says ..
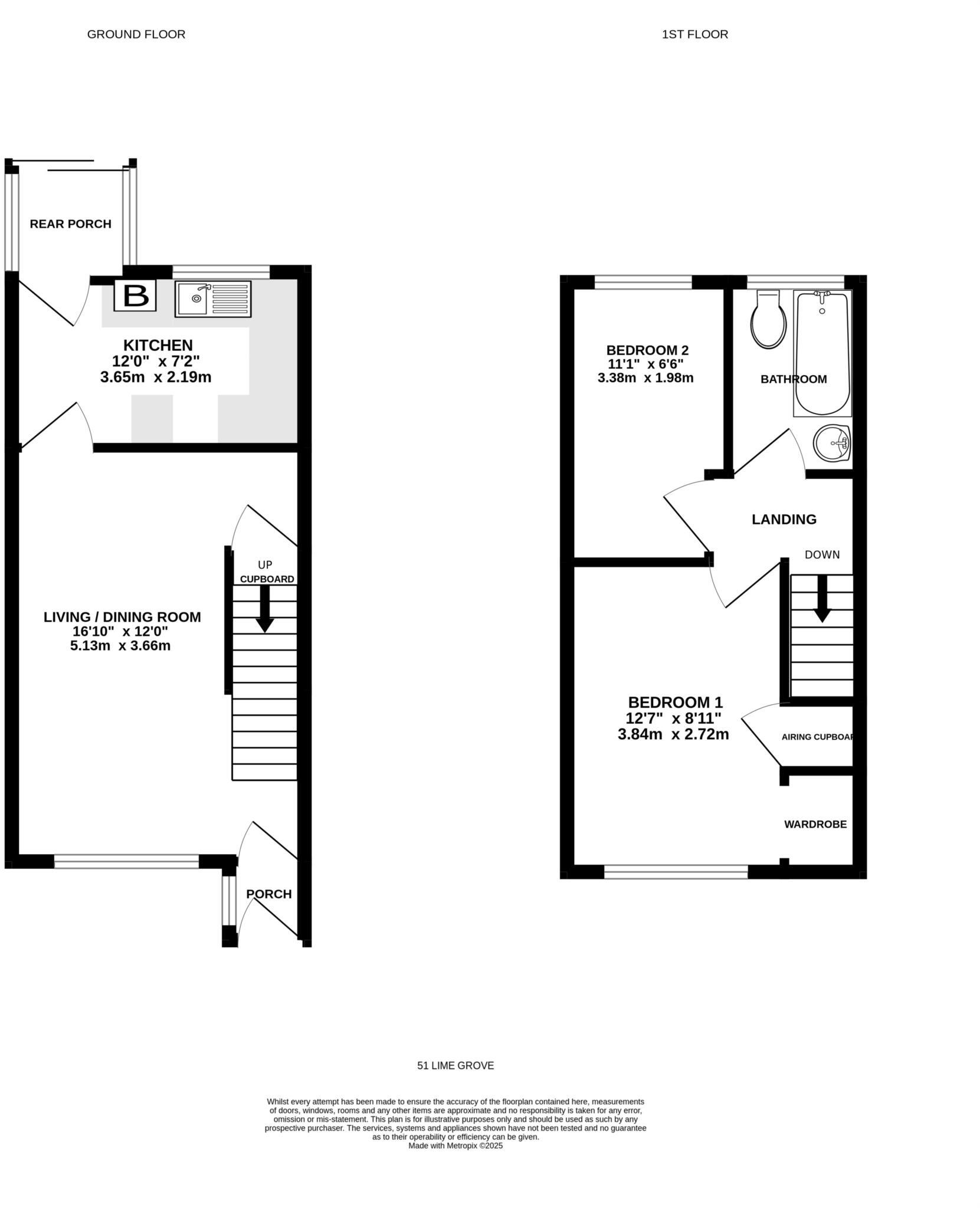
This two-bedroom semi-detached house in Exmouth, Devon, offers a comfortable living space with a modern kitchen and updated bathrooms. The property benefits from a relatively convenient location, with proximity to a primary school and Exmouth train station. The garden is a welcome addition, although its size is not specified, and appears to be relatively small. The interior is presented in good condition, with modern flooring and what appears to be recently renovated kitchen and bathroom. The property’s listing price of £270,000 appears to be competitive within the local market, considering similar properties listed in the area. Potential buyers should verify the exact plot size and conduct a thorough survey to assess the property’s condition further. The lack of detailed information on the property’s square footage and the absence of data for average price per square foot in nearby streets makes a comprehensive valuation difficult, but the price seems generally appropriate for the location and apparent condition.
Therefore, we give this property 6 / 10. *Disclaimer: This is our option and does constitute a recommendation or financial advice. Do your own research. *
- Price
- 7
- Condition
- 7
- Location
- 7
- Land
- 4
- Bedrooms
- 2
- Bathrooms
- 1
- Sqft (est)
- 857.56
The heatmap indicates the level of crime in the area. The color of the heatmap indicates the crime severity and recency.
Metrics Year-on-Year
- Average area value
- 391,731.00 £Decreased by 6.30 %
- Est sale value
- 282,994.80 £Decreased by 27.79 %
- Average area rental value
- 1,432.00 £/moIncreased by 19.33 %
- Est letting value
- 857.56 £/moUnchanged by 0.00 %
- Est rental Yield
- 4.39 %Increased by 27.62 %
- Crime Rate
- 4.00 %Unchanged by 0.00 %
Agent Activity
Links Estate Agents created the listing.
Nearby Schools
| Name | Type | Ofsted | Distance |
|---|---|---|---|
| Brixington Primary Academy | Academy Sponsor Led | Requires improvement | 0.47 KM |
| Withycombe Raleigh Church Of England Primary School | Voluntary Controlled School | Good | 1.06 KM |
| Marpool Primary School | Foundation School | Good | 1.28 KM |
| Exmouth & District Children'S Centre | Children's Centre | 1.30 KM | |
| Bassetts Farm Primary School | Foundation School | Good | 1.54 KM |
Images
Nearby Streets
| Name | Average Price | Average Sqft | Distance |
|---|---|---|---|
| Kipling Close | £ 450,000 | 0 | 0.00 KM |
| Chestnut Close | £ 385,000 | 0 | 0.00 KM |
| Shackleton Close | £ 0 | 0 | 0.00 KM |
| Skylark Way | £ 0 | 0 | 0.00 KM |
| Goldcrest Road | £ 400,000 | 0 | 0.00 KM |
Nearby Transport
| Name | NLC | TLC | Distance |
|---|---|---|---|
| Exmouth | 5756 | EXM | 2.72 KM |
| Lympstone Village | 5761 | LYM | 3.75 KM |
| Lympstone Commando | 5762 | LYC | 5.35 KM |
| Starcross | 3413 | SCS | 5.63 KM |
| Exton | 5760 | EXN | 6.00 KM |
Nearby Listings
| Address | Price | Type | Score | Distance |
|---|---|---|---|---|
| Vansittart Drive, Exmouth | £ 270,000 | BUY | 6 / 10 | 0.00 KM |
| Willoughby Close, Exmouth, EX8 | £ 160,000 | BUY | 5 / 10 | 0.10 KM |
| Willoughby Close, Exmouth | £ 176,500 | BUY | 7 / 10 | 0.12 KM |
| Priddis Close, Exmouth, EX8 5PG | £ 179,950 | BUY | 6 / 10 | 0.13 KM |
| Priddis Close, Exmouth, EX8 5PG | £ 249,950 | BUY | 5 / 10 | 0.13 KM |
Nearby Properties
| Address | Price | Distance |
|---|---|---|
| 20 Spiders Lane | £ 245,000 | 0.08 KM |
| 16 Spiders Lane | £ 209,000 | 0.08 KM |
| 4 Jubilee Drive | £ 146,500 | 0.09 KM |
| 2a Jubilee Drive | £ 182,000 | 0.09 KM |
| 12 Jubilee Drive | £ 137,500 | 0.09 KM |