BR
St. Andrews Road, Prenton
By Brennan Ayre O'Neill
£ 450,000
Reviews
3 out of 5 stars
Brennan Ayre O'Neill says ..
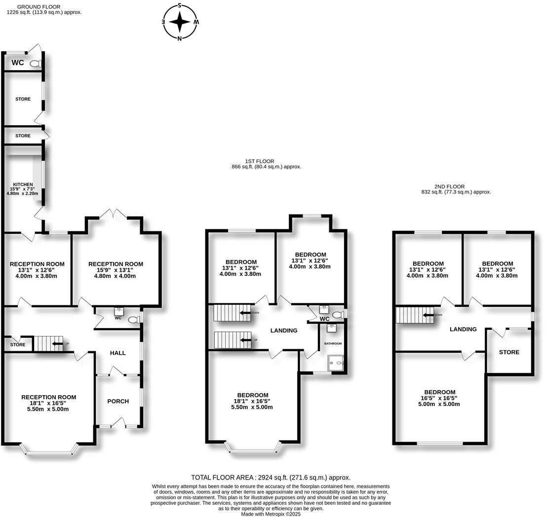
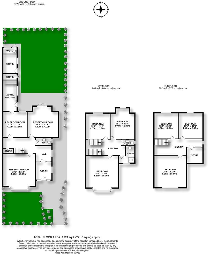
This is a hugely attractive Victorian semi detached property offered for sale as a 'blank canvas' as it were; with an opportunity to retain much of the detailed coving, cornice and woodwork with your refurbishment of what is a considerably substantial home. The accommodation offers thre...
Property Oracle says ..
Therefore, we give this property 6 / 10. *Disclaimer: This is our option and does constitute a recommendation or financial advice. Do your own research. *
- Price
- 6
- Condition
- 5
- Location
- 7
- Land
- 7
- Bedrooms
- 6
- Bathrooms
- 1
- Sqft (est)
- 1,971.95
The heatmap indicates the level of crime in the area. The color of the heatmap indicates the crime severity and recency.
Metrics Year-on-Year
- Average area value
- 326,923.00 £Increased by 8.27 %
- Est sale value
- 656,659.35 £Increased by 23.79 %
- Average area rental value
- 756.00 £/moIncreased by 3.42 %
- Est letting value
- 0.00 £/mo
- Est rental Yield
- 2.77 %Decreased by 4.81 %
- Crime Rate
- 4.00 %Unchanged by 0.00 %
from 301,961.00 £
from 530,454.55 £
from 731.00 £/mo
from 0.00 £/mo
from 2.91 %
from 4.00 %
Agent Activity
Brennan Ayre O'Neill created the listing.
Nearby Schools
| Name | Type | Ofsted | Distance |
|---|---|---|---|
| Birkenhead Park School | Academy Sponsor Led | Requires improvement | 0.18 KM |
| St Anselm'S College | Academy Converter | Good | 0.68 KM |
| Birkenhead High School Academy | Academy Sponsor Led | Outstanding | 0.83 KM |
| Birkenhead Christ Church Cofe Primary School | Voluntary Aided School | Good | 1.12 KM |
| Prenton Preparatory School | Other Independent School | 1.14 KM |
Images
Nearby Streets
| Name | Average Price | Average Sqft | Distance |
|---|---|---|---|
| Devonshire Close | £ 0 | 0 | 0.00 KM |
| Grosvenor Road | £ 290,500 | 0 | 0.00 KM |
| Devonshire Road | £ 150,000 | 0 | 0.00 KM |
| Irvine Way | £ 0 | 0 | 0.00 KM |
| Beresford Close | £ 0 | 0 | 0.00 KM |
Nearby Transport
| Name | NLC | TLC | Distance |
|---|---|---|---|
| Birkenhead Park | 2220 | BKP | 1.02 KM |
| Conway Park | 3624 | CNP | 2.28 KM |
| Birkenhead North | 2145 | BKN | 2.36 KM |
| Birkenhead Central | 2217 | BKC | 2.44 KM |
| Green Lane | 2218 | GNL | 2.99 KM |
Nearby Listings
| Address | Price | Type | Score | Distance |
|---|---|---|---|---|
| St. Andrews Road, Prenton | £ 450,000 | BUY | 6 / 10 | 0.00 KM |
| Grosvenor Road, Prenton | £ 400,000 | BUY | 6 / 10 | 0.10 KM |
| Grosvenor Road, Oxton, CH43 | £ 575,000 | BUY | Unknown | 0.11 KM |
| St. Andrews Road, Prenton, Wirral | £ 595,000 | BUY | 8 / 10 | 0.14 KM |
| Park Road South, Prenton, Wirral | £ 125,000 | BUY | 7 / 10 | 0.14 KM |
Nearby Properties
| Address | Price | Distance |
|---|---|---|
| 9 Slatey Road | £ 482,000 | 0.07 KM |
| 11 Slatey Road | £ 21,167 | 0.07 KM |
| 2 Slatey Road | £ 235,000 | 0.07 KM |
| 29 St Andrews Road | £ 325,000 | 0.14 KM |
| 15a St Andrews Road | £ 294,500 | 0.14 KM |