North Albert Street, Fleetwood, FY7
By Unique Estate Agency Ltd
£ 245,000
Reviews
2 out of 5 stars
Unique Estate Agency Ltd says ..
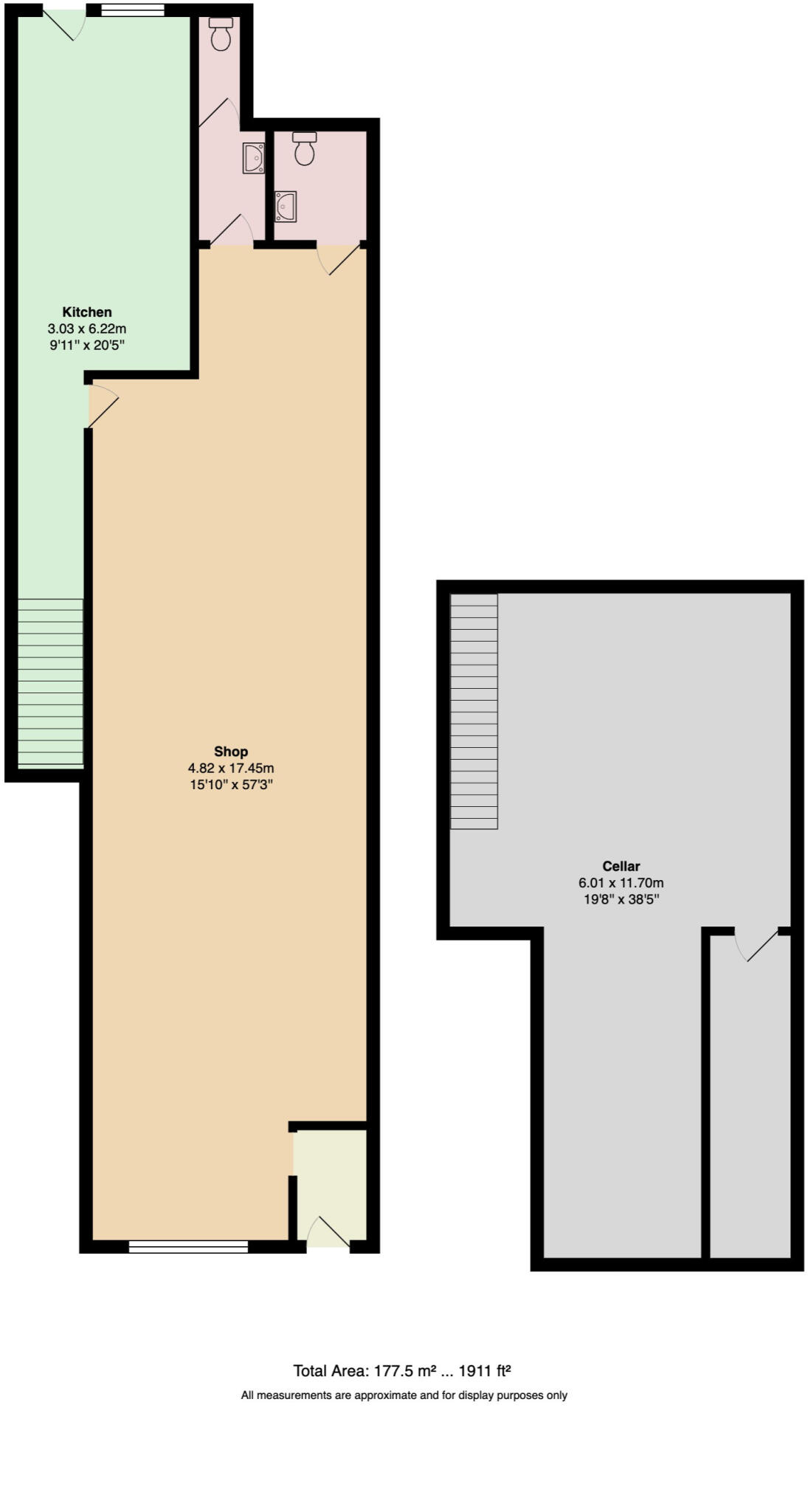
Being sold via Secure Sale online bidding. Terms & Conditions apply. Starting Bid £245000 Mixed-use freehold property in Fleetwood with vacant ground floor shop (with cellar), plus two spacious three-bedroom flats above—one with a balcony. Fantastic investment opportunity with grea...
Property Oracle says ..
Fleetwood is a seaside town in Lancashire, with mixed reviews regarding its desirability. The property, a terraced house, is located near schools with varying Ofsted ratings and has convenient access to transportation. The property itself shows signs of renovation in areas like the kitchen and bathrooms, but other parts appear unfinished. The inclusion of a roof terrace is a positive feature, although a traditional garden is absent. The list price is significantly above the average for the area, which requires further investigation into comparable properties to determine its reasonableness.
Therefore, we give this property 5 / 10. *Disclaimer: This is our option and does constitute a recommendation or financial advice. Do your own research. *
- Price
- 5
- Condition
- 6
- Location
- 6
- Land
- 3
- Bedrooms
- 5
- Bathrooms
- 2
- Sqft (est)
- 310.00
- Lot (est)
- 1,906.00
The heatmap indicates the level of crime in the area. The color of the heatmap indicates the crime severity and recency.
Metrics Year-on-Year
- Average area value
- 149,279.00 £Increased by 11.60 %
- Est sale value
- 46,190.00 £Decreased by 28.37 %
- Average area rental value
- 713.00 £/moIncreased by 19.23 %
- Est letting value
- 0.00 £/mo
- Est rental Yield
- 5.73 %Increased by 6.90 %
- Crime Rate
- 34.00 %Unchanged by 0.00 %
Agent Activity
Unique Estate Agency Ltd created the listing.
Nearby Schools
| Name | Type | Ofsted | Distance |
|---|---|---|---|
| Sure Start Fleetwood Children'S Centre | Children's Centre | 0.35 KM | |
| St Mary'S Catholic Primary School, Fleetwood | Voluntary Aided School | Good | 0.59 KM |
| Fleetwood Chaucer Community Primary School | Community School | Requires improvement | 1.17 KM |
| Shakespeare Primary School | Community School | Outstanding | 2.39 KM |
| St Wulstan'S And St Edmund'S Catholic Primary School And Nursery | Voluntary Aided School | Requires improvement | 2.77 KM |
Images
Nearby Streets
| Name | Average Price | Average Sqft | Distance |
|---|---|---|---|
| Albert Street | £ 0 | 0 | 0.00 KM |
| Queen Street | £ 0 | 0 | 0.00 KM |
| A585 | £ 0 | 0 | 0.00 KM |
| Deepdale Road | £ 84,950 | 0 | 0.00 KM |
| Wayside | £ 0 | 0 | 0.00 KM |
Nearby Transport
| Name | NLC | TLC | Distance |
|---|---|---|---|
| Poulton-Le-Fylde | 2671 | PFY | 8.76 KM |
Nearby Listings
| Address | Price | Type | Score | Distance |
|---|---|---|---|---|
| North Albert Street, Fleetwood, FY7 | £ 245,000 | BUY | 5 / 10 | 0.00 KM |
| North Albert Street, Fleetwood, Lancashire, FY7 | £ 195,000 | BUY | Unknown | 0.01 KM |
| 15 Cross Street, Fleetwood FY7 6AU | £ 15,000 | BUY | Unknown | 0.07 KM |
| 15 Cross Street, Fleetwood FY7 6AU | £ 25,000 | BUY | 4 / 10 | 0.07 KM |
| Kent Street, Fleetwood, FY7 | £ 125,000 | BUY | Unknown | 0.07 KM |
Nearby Properties
| Address | Price | Distance |
|---|---|---|
| 26 Cross Street | £ 65,000 | 0.04 KM |
| 19 Cross Street | £ 70,000 | 0.04 KM |
| 7 Cross Street | £ 65,000 | 0.04 KM |
| 28 Cross Street | £ 66,000 | 0.04 KM |
| 9 Cross Street | £ 48,000 | 0.04 KM |