Springfield Road, London, N15
HE

Springfield Road, London, N15

By Hemmingfords

£ 400,000

Reviews

3 out of 5 stars

Hemmingfords says ..

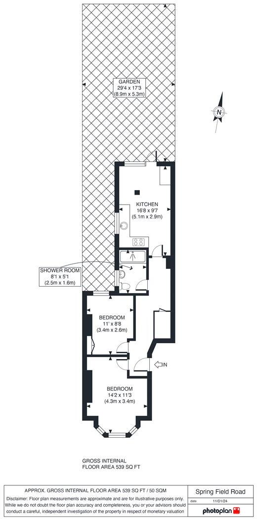
Hemmingfords are delighted to present this beautifully refurbished two-bedroom ground floor garden flat, ideal for both first-time buyers and investors. The apartment offers a spacious open-plan kitchen and living room, two generously sized double bedrooms, and a modern, stylish bathroom. The pri...

Property Oracle says ..

This property is a two-bedroom apartment located in Tottenham Green, Haringey. The apartment is newly renovated and presented in excellent condition, with modern fixtures and fittings. It benefits from a private rear garden. The location is convenient, with good access to public transport links and local amenities. However, the average house price in the area is significantly higher than the list price of this property, suggesting that it may be undervalued. Further investigation into the specific reasons for this price difference would be beneficial.

Therefore, we give this property 7 / 10. *Disclaimer: This is our option and does constitute a recommendation or financial advice. Do your own research. *

Price
8
Condition
10
Location
7
Land
6
Bedrooms
2
Bathrooms
1
Sqft (est)
539.00
Lot (est)
160.00

The heatmap indicates the level of crime in the area. The color of the heatmap indicates the crime severity and recency.

Metrics Year-on-Year

Average area value
789,000.00 £
Increased by 13.27 %
from 696,574.00 £
Est sale value
626,318.00 £
Increased by 105.66 %
from 304,535.00 £
Average area rental value
2,233.00 £/mo
Increased by 4.05 %
from 2,146.00 £/mo
Est letting value
1,617.00 £/mo
Increased by 200.00 %
from 539.00 £/mo
Est rental Yield
3.40 %
Decreased by 8.11 %
from 3.70 %
Crime Rate
9.00 %
Unchanged by 0.00 %
from 9.00 %

Agent Activity

  • Hemmingfords created the listing.

Nearby Schools

NameTypeOfstedDistance
Welbourne Children'S CentreChildren's Centre0.18 KM
Welbourne Primary SchoolCommunity SchoolGood0.21 KM
Ada National College For Digital SkillsFurther EducationGood0.29 KM
Holy Trinity Cofe Primary SchoolAcademy Sponsor LedGood0.46 KM
Earlsmead Children'S CentreChildren's Centre0.48 KM

Images

14-fbc4DSC_1430-medium.jpg 01-ca71DSC_1366-medium.jpg 02-ed99DSC_1371-medium.jpg 12-9823DSC_1421-medium.jpg 08-81cdDSC_1400-medium.jpg 07-5000DSC_1396-medium.jpg 05-1c97DSC_1385-medium.jpg 09-52f0DSC_1406-medium.jpg 10-5655DSC_1410-medium.jpg 15-18e2DSC_1435-medium.jpg 13-7abfDSC_1425-medium.jpg 04-ba98DSC_1380-medium.jpg 03-c268DSC_1376-medium.jpg 11-8f78DSC_1415-medium.jpg 06-5cb5DSC_1390-medium.jpg

Nearby Streets

NameAverage PriceAverage SqftDistance
Bramble Close £ 000.00 KM
Greenway Close £ 000.00 KM
Tamar Way £ 000.00 KM
Monument Way £ 000.00 KM
A10 £ 000.00 KM

Nearby Transport

NameNLCTLCDistance
Tottenham Hale6951TOM0.65 KM
Bruce Grove6958BCV0.89 KM
South Tottenham7404STO1.03 KM
Seven Sisters6931SVS1.19 KM
Stamford Hill6968SMH1.86 KM

Nearby Listings

AddressPriceTypeScoreDistance
Springfield Road, London, N15 £ 400,000BUY7 / 100.00 KM
Springfield Road, Tottenham Hale, London £ 469,000BUY5 / 100.03 KM
Springfield Road, London, N15 £ 495,000BUY7 / 100.03 KM
Antill Road, London, N15 £ 415,000BUY6 / 100.04 KM
Springfield Road, London, N15 £ 450,000BUY6 / 100.04 KM

Nearby Properties

AddressPriceDistance
46 Springfield Road £ 300,0000.01 KM
30a Springfield Road £ 280,0000.01 KM
40a Springfield Road £ 370,0000.01 KM
62 Springfield Road £ 452,0000.01 KM
14 Springfield Road £ 185,0000.01 KM