Stamford Road, Longsight, Manchester, M13
By Peter Anthony
£ 300,000
Reviews
3 out of 5 stars
Peter Anthony says ..
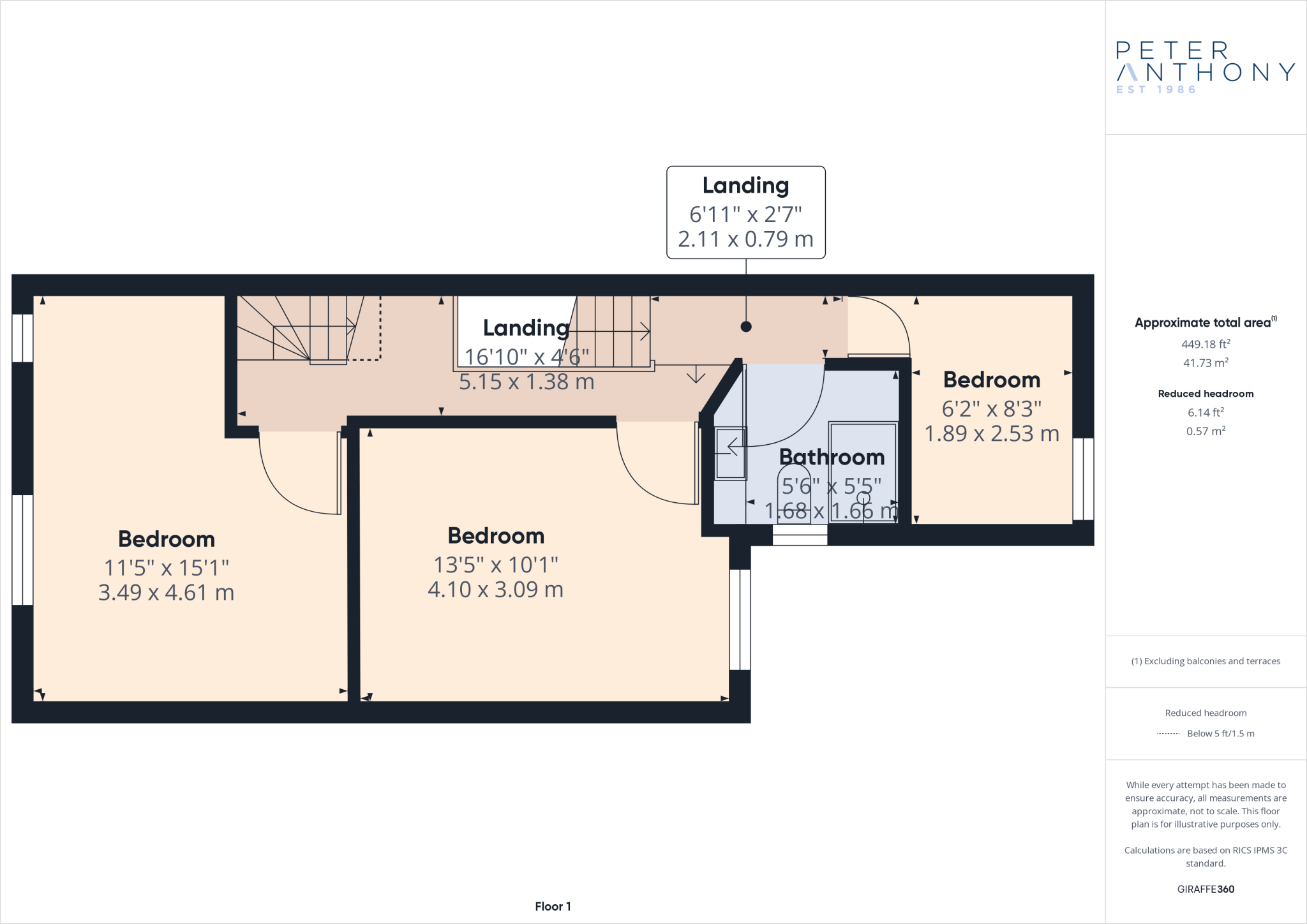
Discover the epitome of modern living in this luxurious and well-maintained terraced house, boasting 4 bedrooms, 2 reception rooms, and 2 bathrooms spread across 1,119 sq ft of living space. Situated in a sought-after location, this property is both accessible and convenient, offering easy access...
Property Oracle says ..
This four-bedroom, two-bathroom terraced house located on Stamford Road, Longsight, Manchester, is presented as a recently renovated property. The photos highlight a modern interior with new kitchen and bathroom fixtures, new flooring, and a generally well-maintained condition. The property’s close proximity to several primary schools, including St Agnes C of E Primary School and Longsight Community Primary School (rated ‘Requires improvement’ and ‘Good’ by Ofsted respectively), is a significant advantage for families. The relatively close proximity to Levenshulme train station enhances its appeal, offering convenient access to wider Manchester. However, the property’s listed square footage and plot size are missing, making a comprehensive evaluation of value difficult. Furthermore, while the images show some landscaping, the backyard space appears quite small and requires further upkeep. The overall property presents itself as a reasonably updated home in a location with family-friendly amenities, but a deeper understanding of the exact dimensions is needed for an accurate assessment of value for money.
Therefore, we give this property 6 / 10. *Disclaimer: This is our option and does constitute a recommendation or financial advice. Do your own research. *
- Price
- 7
- Condition
- 8
- Location
- 6
- Land
- 3
- Bedrooms
- 4
- Bathrooms
- 2
The heatmap indicates the level of crime in the area. The color of the heatmap indicates the crime severity and recency.
Metrics Year-on-Year
- Average area value
- 480,222.00 £Decreased by 47.72 %
- Average area rental value
- 1,868.00 £/moIncreased by 9.11 %
- Est rental Yield
- 4.67 %Increased by 108.48 %
- Crime Rate
- 0.00 %
Agent Activity
Peter Anthony created the listing.
Nearby Schools
| Name | Type | Ofsted | Distance |
|---|---|---|---|
| St Agnes C Of E Primary School | Voluntary Controlled School | Requires improvement | 0.11 KM |
| Longsight Community Primary | Free Schools | Good | 0.33 KM |
| Longsight Sure Start Children'S Centre | Children's Centre | 0.33 KM | |
| Stanley Grove Primary Academy | Academy Sponsor Led | Good | 0.39 KM |
| Rodney House School | Community Special School | Outstanding | 0.61 KM |
Images
Nearby Streets
| Name | Average Price | Average Sqft | Distance |
|---|---|---|---|
| Farrer Road | £ 0 | 0 | 0.00 KM |
| Lincoln Street | £ 0 | 0 | 0.00 KM |
| Swayfield Avenue | £ 0 | 0 | 0.00 KM |
| Montgomery Road | £ 0 | 0 | 0.00 KM |
| Sunnybank Road | £ 0 | 0 | 0.00 KM |
Nearby Transport
| Name | NLC | TLC | Distance |
|---|---|---|---|
| Levenshulme | 2862 | LVM | 1.45 KM |
| Ashburys | 2941 | ABY | 1.98 KM |
| Belle Vue | 2785 | BLV | 2.34 KM |
| Ardwick | 2960 | ADK | 2.38 KM |
| Mauldeth Road | 2867 | MAU | 2.62 KM |
Nearby Listings
| Address | Price | Type | Score | Distance |
|---|---|---|---|---|
| Stamford Road, Longsight, Manchester, M13 | £ 300,000 | BUY | 6 / 10 | 0.00 KM |
| 31 Portland Road, Longsight, Manchester, Greater Manchester, M13 0SA | £ 150,000 | BUY | Unknown | 0.10 KM |
| Slade Grove, Manchester, Greater Manchester | £ 185,000 | BUY | 4 / 10 | 0.12 KM |
| Hamilton Road, Manchester, Greater Manchester | £ 410,000 | BUY | 5 / 10 | 0.14 KM |
| Clitheroe Road, Manchester, M13 | £ 359,950 | BUY | 5 / 10 | 0.19 KM |
Nearby Properties
| Address | Price | Distance |
|---|---|---|
| 43 Stamford Road | £ 160,000 | 0.05 KM |
| 1 Stamford Road | £ 125,000 | 0.05 KM |
| 5 Stamford Road | £ 143,000 | 0.05 KM |
| 11 Stamford Road | £ 230,000 | 0.07 KM |
| 41 Stamford Road | £ 150,000 | 0.07 KM |