Thomas Samuel says ..
Step inside this lovely 3-bedroom terraced home, perfectly situated for those seeking the perfect blend of convenience and comfort. Just a stone's throw away from Ormskirk Town Centre, and within walking distance to Ormskirk Train Station, this property is a commuter's dream.
Property Oracle says ..
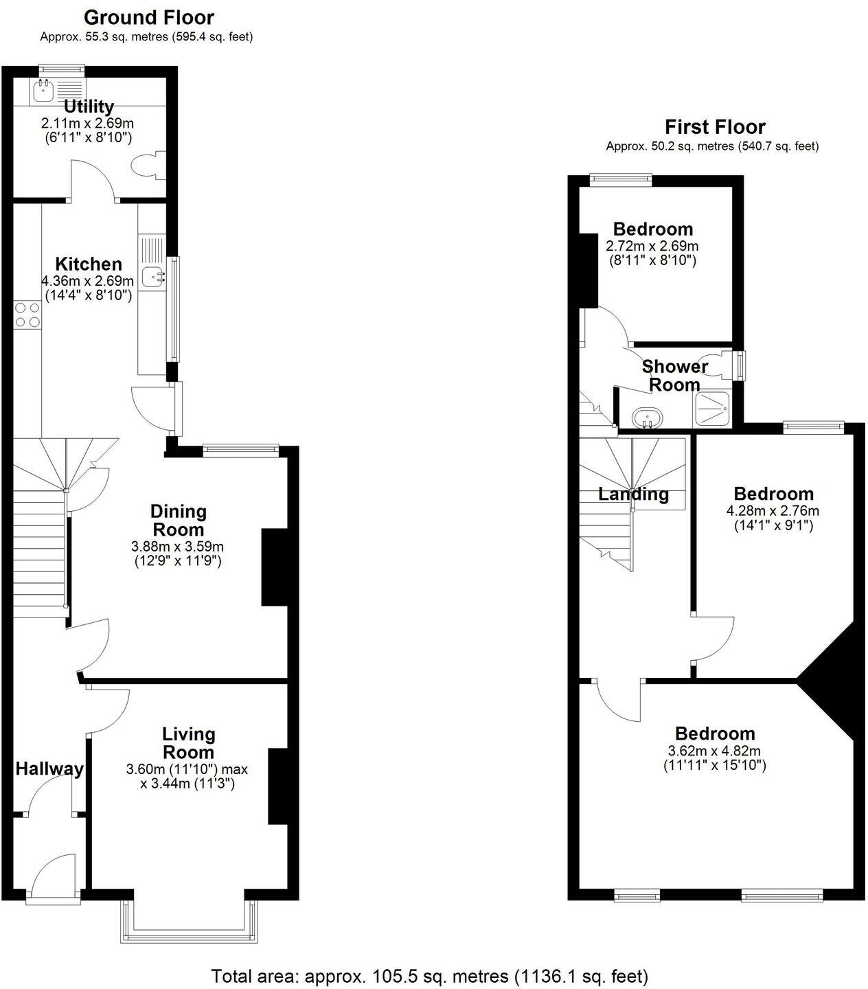
The property is a 3-bedroom, 1-bathroom terraced house located on Derby Street in Ormskirk, Lancashire. It has a plot size of 1,135.59 sqft and is listed at £220,000.
The property appears to be in good condition, having undergone some modernisation, while retaining some traditional character. The kitchen and bathrooms have been recently updated. The property benefits from a small paved rear yard.
The location is good, with nearby schools receiving good Ofsted ratings and several train stations within a reasonable distance. The average house price in the area is £219,135, with an average price per sqft of £203. Considering the property’s size (871.45 sqft), updated condition, and desirable location, the asking price of £220,000 appears to be in line with the market average. However, the lack of information on comparable properties with similar sqft makes a definitive statement on price difficult.
Therefore, we give this property 6 / 10. *Disclaimer: This is our option and does constitute a recommendation or financial advice. Do your own research. *
- Price
- 7
- Condition
- 8
- Location
- 7
- Land
- 3
- Bedrooms
- 3
- Bathrooms
- 1
- Sqft (est)
- 871.45
- Lot (est)
- 1,135.59
The heatmap indicates the level of crime in the area. The color of the heatmap indicates the crime severity and recency.
Metrics Year-on-Year
- Average area value
- 172,617.00 £Decreased by 13.74 %
- Est sale value
- 129,846.05 £Decreased by 18.58 %
- Average area rental value
- 835.00 £/moIncreased by 18.61 %
- Est letting value
- 0.00 £/mo
- Est rental Yield
- 5.80 %Increased by 37.44 %
- Crime Rate
- 9.00 %Unchanged by 0.00 %
Agent Activity
Thomas Samuel created the listing.
Nearby Schools
| Name | Type | Ofsted | Distance |
|---|---|---|---|
| Ormskirk Church Of England Primary School | Voluntary Controlled School | Good | 0.45 KM |
| The Acorns School | Pupil Referral Unit | Good | 0.53 KM |
| Turning Point Academy | Other Independent School | Good | 0.75 KM |
| Moorgate Nursery School & Children'S Centre | Children's Centre | 0.98 KM | |
| Moorgate Nursery School | Local Authority Nursery School | Outstanding | 0.98 KM |
Images
Nearby Streets
| Name | Average Price | Average Sqft | Distance |
|---|---|---|---|
| Abbotsford | £ 125,000 | 0 | 0.00 KM |
| Oak Green | £ 0 | 0 | 0.00 KM |
| Atkinson Road | £ 0 | 0 | 0.00 KM |
| Leyland Way | £ 0 | 0 | 0.00 KM |
| Chapel Mews | £ 66,500 | 0 | 0.00 KM |
Nearby Transport
| Name | NLC | TLC | Distance |
|---|---|---|---|
| Ormskirk | 2281 | OMS | 0.30 KM |
| Aughton Park | 2215 | AUG | 2.36 KM |
| Town Green | 2283 | TWN | 3.97 KM |
| New Lane | 2358 | NLN | 5.02 KM |
| Burscough Junction | 2280 | BCJ | 5.37 KM |
Nearby Listings
| Address | Price | Type | Score | Distance |
|---|---|---|---|---|
| Derby Street, Ormskirk, L39 | £ 220,000 | BUY | 6 / 10 | 0.00 KM |
| Derby Street, Ormskirk, L39 2DE | £ 370,000 | BUY | 5 / 10 | 0.00 KM |
| Walmsley Drive, Ormskirk | £ 375,000 | BUY | Unknown | 0.06 KM |
| Walmsley Drive, Ormskirk, L39 | £ 375,000 | BUY | Unknown | 0.07 KM |
| Walmsley Drive, Ormskirk, Lancashire, L39 | £ 295,000 | BUY | Unknown | 0.08 KM |
Nearby Properties
| Address | Price | Distance |
|---|---|---|
| 94 Derby Street | £ 160,000 | 0.01 KM |
| 46 Derby Street | £ 154,500 | 0.01 KM |
| 50 Derby Street | £ 76,000 | 0.01 KM |
| 86 Derby Street | £ 115,000 | 0.01 KM |
| 68 Derby Street | £ 178,500 | 0.01 KM |