Hoopers says ..
We are delighted to be able to bring to the market this ground floor garden flat which is situated towards the Willesden Green end of Chapter Road on the non-railway side of the street and therefore within a quarter mile approximately of Willesden Green multiple restaurants and bus services to...
Property Oracle says ..
Therefore, we give this property 8 / 10. *Disclaimer: This is our option and does constitute a recommendation or financial advice. Do your own research. *
- Price
- 9
- Condition
- 8
- Location
- 8
- Land
- 7
- Bedrooms
- 2
- Bathrooms
- 1
- Sqft (est)
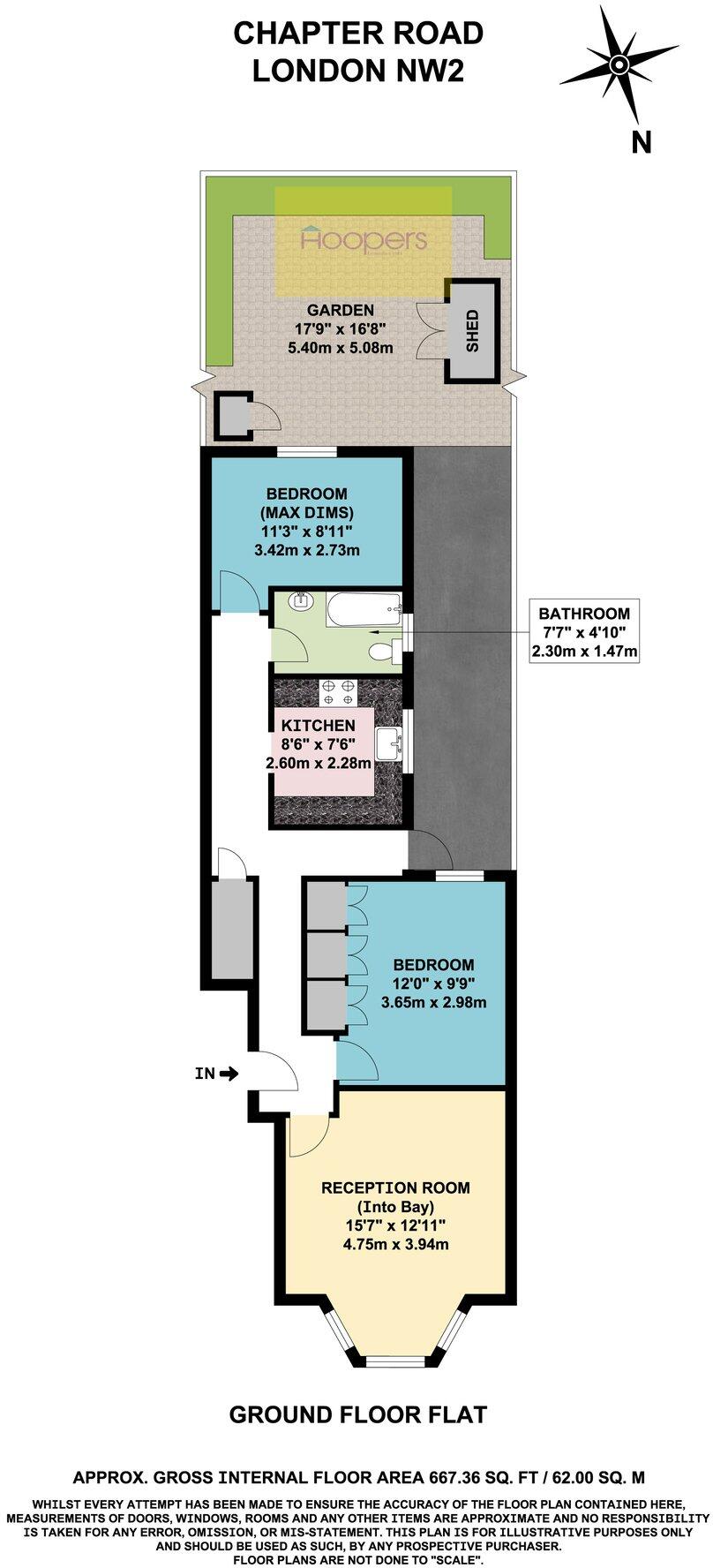
- 667.36
The heatmap indicates the level of crime in the area. The color of the heatmap indicates the crime severity and recency.
Metrics Year-on-Year
- Average area value
- 628,995.00 £Increased by 10.43 %
- Est sale value
- 539,894.24 £Increased by 35.28 %
- Average area rental value
- 1,632.00 £/moDecreased by 14.96 %
- Est letting value
- 1,334.72 £/moUnchanged by 0.00 %
- Est rental Yield
- 3.11 %Decreased by 23.02 %
- Crime Rate
- 8.00 %Unchanged by 0.00 %
from 569,600.00 £
from 399,081.28 £
from 1,919.00 £/mo
from 1,334.72 £/mo
from 4.04 %
from 8.00 %
Agent Activity
Hoopers created the listing.
Nearby Schools
| Name | Type | Ofsted | Distance |
|---|---|---|---|
| Gladstone Park Primary School | Academy Sponsor Led | Good | 0.24 KM |
| St Andrew And St Francis Cofe Primary School | Academy Sponsor Led | Good | 0.36 KM |
| St Mary Magdalen'S Catholic Junior School | Voluntary Aided School | Good | 0.57 KM |
| Convent Of Jesus And Mary Rc Infant School | Voluntary Aided School | Outstanding | 0.69 KM |
| Donnington Primary School | Community School | Good | 0.97 KM |
Images
Nearby Streets
| Name | Average Price | Average Sqft | Distance |
|---|---|---|---|
| St Andrews Road | £ 315,000 | 0 | 0.00 KM |
| Kendal Road | £ 0 | 0 | 0.00 KM |
| Clare Road | £ 0 | 0 | 0.00 KM |
| Staverton Road | £ 0 | 0 | 0.00 KM |
| Unity Close | £ 0 | 0 | 0.00 KM |
Nearby Transport
| Name | NLC | TLC | Distance |
|---|---|---|---|
| Kensal Rise | 1448 | KNR | 2.28 KM |
| Kensal Green | 1447 | KNL | 2.38 KM |
| Willesden Junction | 1457 | WIJ | 2.39 KM |
| Cricklewood | 1519 | CRI | 2.40 KM |
| Brondesbury Park | 1438 | BSP | 2.74 KM |
Nearby Listings
| Address | Price | Type | Score | Distance |
|---|---|---|---|---|
| Chapter Road, London, NW2 | £ 475,000 | BUY | 8 / 10 | 0.00 KM |
| Chapter Road, London, NW2 | £ 530,000 | BUY | 6 / 10 | 0.02 KM |
| Chapter Road, Willesden Green, NW2 | £ 640,000 | BUY | Unknown | 0.07 KM |
| 173A & 173B Chapter Road, Brent, London, NW2 5LJ | £ 380,000 | BUY | 5 / 10 | 0.07 KM |
| Chapter Road, London | £ 450,000 | BUY | 6 / 10 | 0.08 KM |
Nearby Properties
| Address | Price | Distance |
|---|---|---|
| 130a Chapter Road | £ 430,000 | 0.03 KM |
| 130 Chapter Road | £ 365,000 | 0.03 KM |
| 122 Chapter Road | £ 610,000 | 0.03 KM |
| 112 Chapter Road | £ 55,500 | 0.03 KM |
| 130b Chapter Road | £ 230,000 | 0.03 KM |