Chapel Street, Norton Canes
By Lovett&Co. Estate Agents
£ 220,000
Reviews
3 out of 5 stars
Lovett&Co. Estate Agents says ..
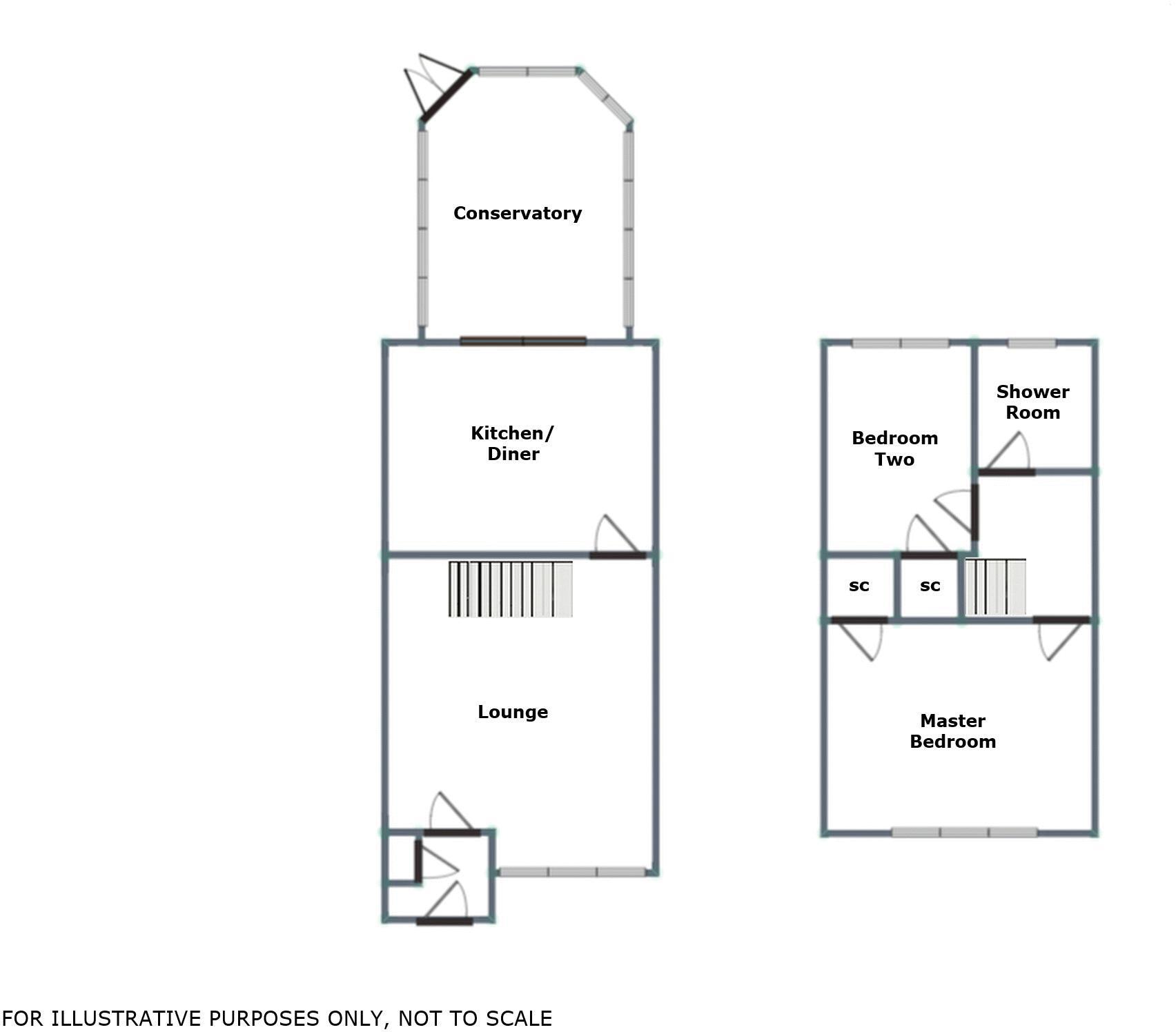
Lovett&Co. Estate Agents are pleased to offer for sale this modern finished two bedroom semi-detached house ideal for first time buyers, investors and those looking to downsize. The property features off road parking on a private driveway for three vehicles, plus a private rear garden with s...
Property Oracle says ..
This is a two-bedroom semi-detached property located on Chapel Street in Norton Canes. The house features a modern kitchen and bathroom, and a conservatory. The property benefits from a garden with a shed. Several schools are located nearby. The property is listed for £220,000, which appears competitive compared to the average property price in the area.
Therefore, we give this property 7 / 10. *Disclaimer: This is our option and does constitute a recommendation or financial advice. Do your own research. *
- Price
- 8
- Condition
- 7
- Location
- 7
- Land
- 6
- Bedrooms
- 2
- Bathrooms
- 1
- Sqft (est)
- 970.00
The heatmap indicates the level of crime in the area. The color of the heatmap indicates the crime severity and recency.
Metrics Year-on-Year
- Average area value
- 273,750.00 £Decreased by 0.82 %
- Est sale value
- 340,470.00 £Increased by 22.73 %
- Average area rental value
- 1,183.00 £/moDecreased by 7.79 %
- Est letting value
- 970.00 £/moUnchanged by 0.00 %
- Est rental Yield
- 5.19 %Decreased by 6.99 %
- Crime Rate
- 12.00 %Unchanged by 0.00 %
Agent Activity
Lovett&Co. Estate Agents created the listing.
Nearby Schools
| Name | Type | Ofsted | Distance |
|---|---|---|---|
| Jerome Primary School | Community School | Good | 0.27 KM |
| Norton Canes Primary Academy | Academy Sponsor Led | Good | 0.88 KM |
| Norton Canes High School | Community School | Good | 1.18 KM |
| Heath Hayes Primary Academy | Academy Sponsor Led | Good | 2.37 KM |
| Gorsemoor Primary School | Community School | Good | 2.68 KM |
Images
Nearby Streets
| Name | Average Price | Average Sqft | Distance |
|---|---|---|---|
| Hanbury Road | £ 0 | 0 | 0.00 KM |
| Ivy Gardens | £ 0 | 0 | 0.00 KM |
| Butts Close | £ 0 | 0 | 0.00 KM |
| Brambling Way | £ 0 | 0 | 0.00 KM |
| Mallard Way | £ 0 | 0 | 0.00 KM |
Nearby Transport
| Name | NLC | TLC | Distance |
|---|---|---|---|
| Hednesford | 1148 | HNF | 5.19 KM |
| Landywood | 1017 | LAW | 5.36 KM |
| Cannock | 1016 | CAO | 5.47 KM |
| Bloxwich North | 1018 | BWN | 7.02 KM |
| Bloxwich | 1141 | BLX | 7.23 KM |
Nearby Listings
| Address | Price | Type | Score | Distance |
|---|---|---|---|---|
| Chapel Street, Norton Canes | £ 220,000 | BUY | 7 / 10 | 0.00 KM |
| Chapel Street, Norton Canes | £ 295,000 | BUY | 6 / 10 | 0.09 KM |
| Bridges Road, Norton Canes, Cannock | £ 230,000 | BUY | 7 / 10 | 0.10 KM |
| Chapel Street, Norton Canes, Cannock, Staffordshire, WS11 | £ 300,000 | BUY | 7 / 10 | 0.11 KM |
| Chapel Street, Cannock | £ 300,000 | BUY | 7 / 10 | 0.11 KM |
Nearby Properties
| Address | Price | Distance |
|---|---|---|
| 28 Chapel Street | £ 138,000 | 0.01 KM |
| 4 Chapel Street | £ 115,000 | 0.01 KM |
| 24 Chapel Street | £ 145,000 | 0.01 KM |
| 38 Chapel Street | £ 106,000 | 0.01 KM |
| 42a Chapel Street | £ 140,000 | 0.01 KM |