Oliver Jaques says ..
Moments from the Greenland Quay and the convenient Thames Clippers, this river facing apartment offers all the benefits of it's dockland location. Pe...
Property Oracle says ..
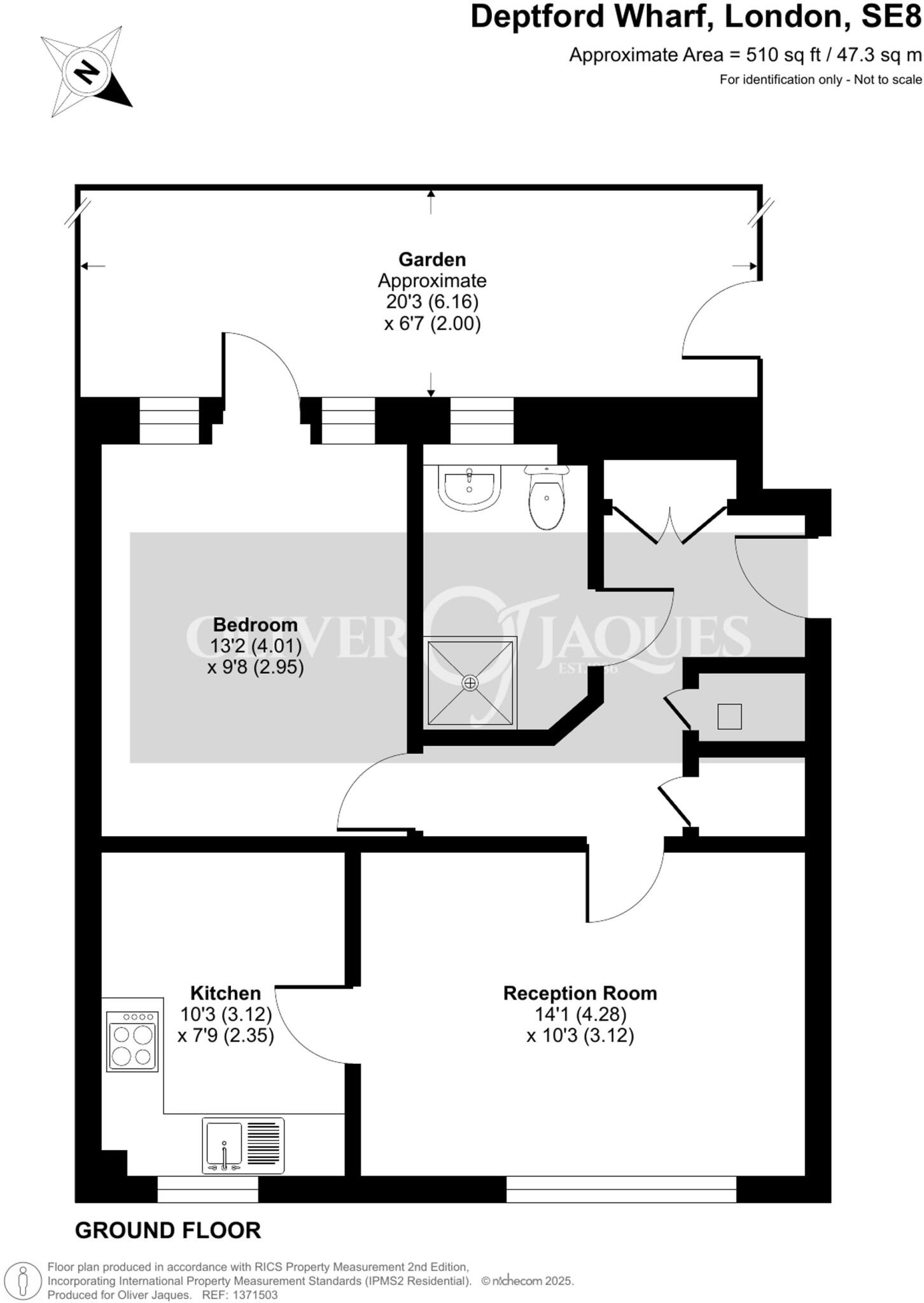
This is a one-bedroom flat located in Deptford Wharf, London. The property is in reasonable condition and has a small garden. The location is desirable, with good access to transportation and local amenities. The price is slightly above the average price per square foot for the area, but overall seems reasonable. The flat is located close to the Thames river.
Therefore, we give this property 6 / 10. *Disclaimer: This is our option and does constitute a recommendation or financial advice. Do your own research. *
- Price
- 8
- Condition
- 7
- Location
- 7
- Land
- 4
- Bedrooms
- 1
- Bathrooms
- 1
- Sqft (est)
- 488.24
The heatmap indicates the level of crime in the area. The color of the heatmap indicates the crime severity and recency.
Metrics Year-on-Year
- Average area value
- 460,000.00 £Decreased by 0.33 %
- Est sale value
- 305,150.00 £Decreased by 7.68 %
- Average area rental value
- 2,264.00 £/moIncreased by 1.25 %
- Est letting value
- 1,464.72 £/moUnchanged by 0.00 %
- Est rental Yield
- 5.91 %Increased by 1.72 %
- Crime Rate
- 2.00 %Unchanged by 0.00 %
Agent Activity
Oliver Jaques created the listing.
Nearby Schools
| Name | Type | Ofsted | Distance |
|---|---|---|---|
| Arnhem Wharf Primary School | Community School | Good | 0.71 KM |
| Deptford Park Primary School | Community School | Good | 0.78 KM |
| Clyde Early Childhood Centre | Children's Centre | 0.91 KM | |
| Clyde Nursery School. | Local Authority Nursery School | Outstanding | 0.93 KM |
| St Edmund'S Catholic School | Voluntary Aided School | Good | 1.07 KM |
Images
Nearby Streets
| Name | Average Price | Average Sqft | Distance |
|---|---|---|---|
| St Georges Square | £ 0 | 0 | 0.00 KM |
| Calypso Way | £ 0 | 0 | 0.00 KM |
| Deptford Strand | £ 325,000 | 0 | 0.00 KM |
| Cary Avenue | £ 0 | 0 | 0.00 KM |
| Durand's Wharf | £ 0 | 0 | 0.00 KM |
Nearby Transport
| Name | NLC | TLC | Distance |
|---|---|---|---|
| Deptford | 5145 | DEP | 1.67 KM |
| Surrey Quays | 1083 | SQE | 1.68 KM |
| Canada Water | 1659 | ZCW | 2.01 KM |
| New Cross | 5150 | NWX | 2.01 KM |
| New Cross Gate | 5345 | NXG | 2.13 KM |
Nearby Listings
| Address | Price | Type | Score | Distance |
|---|---|---|---|---|
| Deptford Wharf, London, SE8 | £ 350,000 | BUY | 6 / 10 | 0.00 KM |
| Enterprize Way, London, SE8 | £ 600,000 | BUY | 5 / 10 | 0.06 KM |
| Grove Street, Surrey Quays, London, SE8 | £ 700,000 | BUY | 5 / 10 | 0.08 KM |
| Deptford Wharf, London, SE8 | £ 400,000 | BUY | 5 / 10 | 0.14 KM |
| George Beard Road, London | £ 375,000 | BUY | Unknown | 0.19 KM |
Nearby Properties
| Address | Price | Distance |
|---|---|---|
| 28 Enterprize Way | £ 499,999 | 0.12 KM |
| 9 Enterprize Way | £ 55,000 | 0.12 KM |
| 3 Enterprize Way | £ 89,995 | 0.12 KM |
| 8 Deptford Wharf | £ 390,000 | 0.12 KM |
| 8 Capstan Road | £ 330,000 | 0.14 KM |