Fairhaven Close, Great Sankey, Warrington
By Mark Antony Estates
£ 345,000
Reviews
3 out of 5 stars
Mark Antony Estates says ..
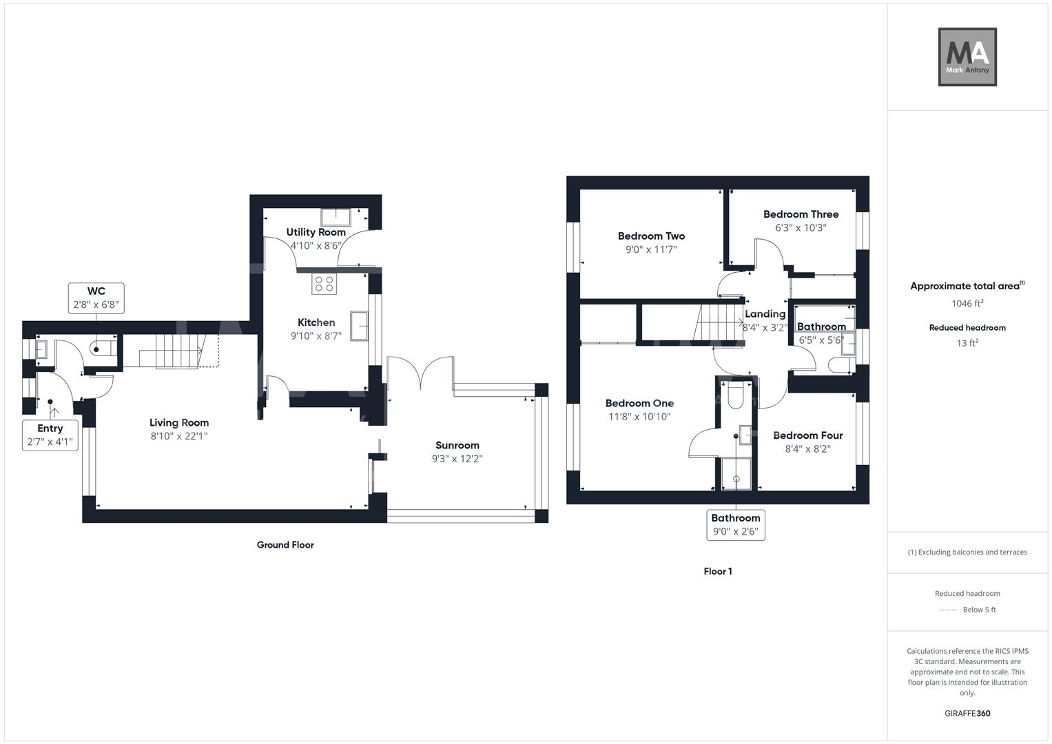
This charming FOUR BEDROOM DETACHED home on Fairhaven Close offers a FREEHOLD tenure and a fantastic location. With a DOUBLE DRIVEWAY, garage, OPEN-PLAN living and dining area, and a SUNROOM flooded with natural light, this property is ideal for FAMILIES seeking COMFORT and CONVENIENCE.
Property Oracle says ..
This is a detached property in Great Sankey, Warrington. It has four bedrooms and two bathrooms, and a good-sized garden. The property is in reasonable condition, although some aspects could benefit from modernisation. The property is located close to schools and transportation links. The listing price is £345,000, which is slightly above the average for the area, but this is likely due to it being a detached property.
Therefore, we give this property 6 / 10. *Disclaimer: This is our option and does constitute a recommendation or financial advice. Do your own research. *
- Price
- 7
- Condition
- 6
- Location
- 7
- Land
- 7
- Bedrooms
- 4
- Bathrooms
- 2
- Sqft (est)
- 1,046.00
The heatmap indicates the level of crime in the area. The color of the heatmap indicates the crime severity and recency.
Metrics Year-on-Year
- Average area value
- 230,000.00 £Decreased by 0.66 %
- Est sale value
- 299,156.00 £Increased by 13.94 %
- Average area rental value
- 841.00 £/moDecreased by 14.96 %
- Est letting value
- 1,046.00 £/moUnchanged by 0.00 %
- Est rental Yield
- 4.39 %Decreased by 14.42 %
- Crime Rate
- 6.00 %Unchanged by 0.00 %
Agent Activity
Mark Antony Estates created the listing.
Nearby Schools
| Name | Type | Ofsted | Distance |
|---|---|---|---|
| Great Sankey Children'S Centre | Children's Centre | 0.90 KM | |
| Great Sankey Primary School | Academy Converter | Good | 0.90 KM |
| Penketh High School | Academy Converter | Good | 1.15 KM |
| Sankey Valley St James Church Of England Primary School | Voluntary Aided School | Good | 1.22 KM |
| Chapelford Village Primary School | Academy Converter | 1.38 KM |
Images
Nearby Streets
| Name | Average Price | Average Sqft | Distance |
|---|---|---|---|
| West Drive | £ 228,995 | 0 | 0.00 KM |
| Victoria Road | £ 0 | 0 | 0.00 KM |
| Denham Avenue | £ 239,475 | 0 | 0.00 KM |
| East Avenue | £ 360,000 | 0 | 0.00 KM |
| Ealing Road | £ 300,000 | 0 | 0.00 KM |
Nearby Transport
| Name | NLC | TLC | Distance |
|---|---|---|---|
| Warrington West | 6583 | WAW | 1.06 KM |
| Sankey For Penketh | 2388 | SNK | 1.65 KM |
| Warrington Bank Quay | 2384 | WBQ | 3.94 KM |
| Warrington Central | 2390 | WAC | 5.02 KM |
| Runcorn East | 2294 | RUE | 7.03 KM |
Nearby Listings
| Address | Price | Type | Score | Distance |
|---|---|---|---|---|
| Fairhaven Close, Great Sankey, WA5 | £ 345,000 | BUY | 6 / 10 | 0.00 KM |
| Fairhaven Close, Great Sankey, Warrington | £ 345,000 | BUY | 6 / 10 | 0.00 KM |
| West Drive, Great Sankey, Warrington | £ 245,000 | BUY | 7 / 10 | 0.07 KM |
| Fleetwood Close, Great Sankey, WA5 | £ 269,950 | BUY | 6 / 10 | 0.09 KM |
| Fleetwood Close, Great Sankey, WA5 | £ 275,000 | BUY | 6 / 10 | 0.09 KM |
Nearby Properties
| Address | Price | Distance |
|---|---|---|
| 10 Fairhaven Close | £ 230,000 | 0.03 KM |
| 5 Fairhaven Close | £ 275,000 | 0.03 KM |
| 12 Fairhaven Close | £ 245,000 | 0.03 KM |
| 14 Fairhaven Close | £ 191,000 | 0.03 KM |
| 11 Fairhaven Close | £ 160,000 | 0.03 KM |