Pound Lane, Ashford, TN23
By Distinctive Homes
£ 600,000
Reviews
3 out of 5 stars
Distinctive Homes says ..
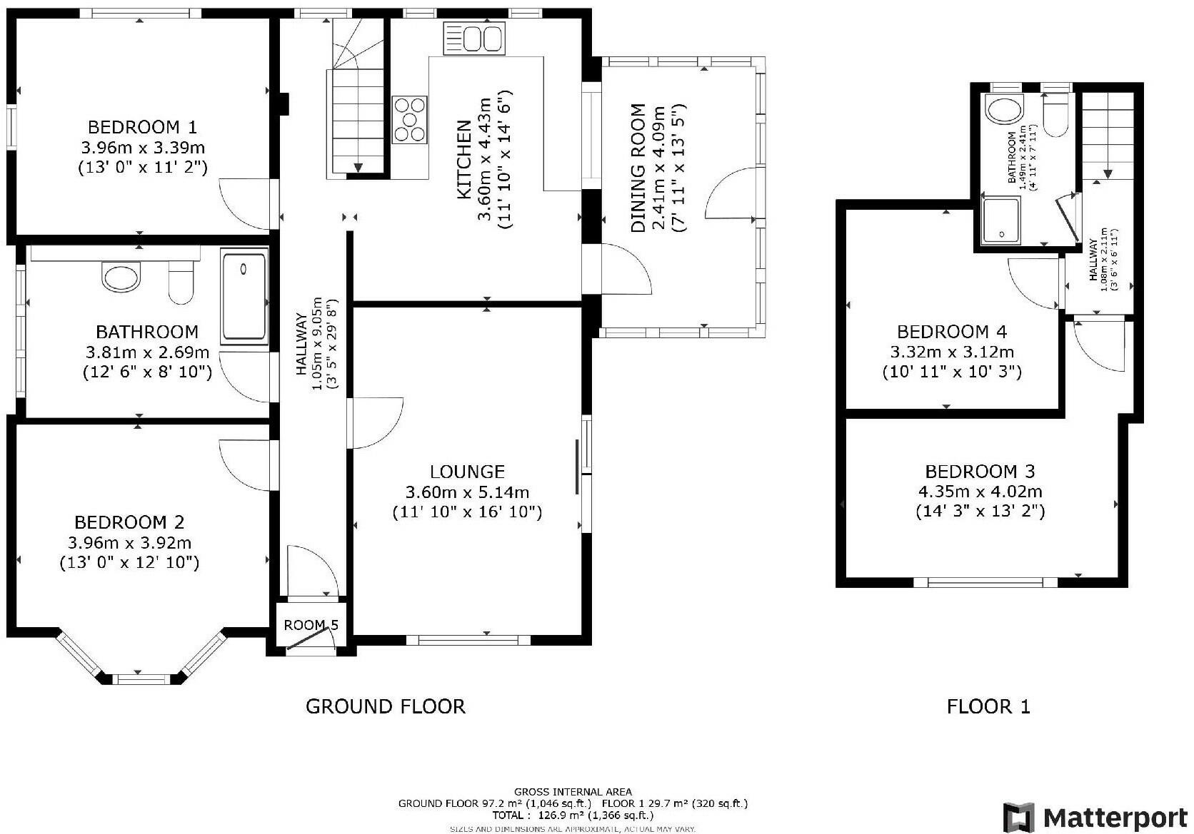
This stunning FOUR bedroom detached home is situated in a sought after and convenient location, it has two cabins, enjoys extensive parking and a large plot of Approx. 0.53 (1/2 Acre) It is also offered chain free, Call us today to arrange a viewing.
Property Oracle says ..
This four-bedroom detached house in Ashford, Kent, presents a compelling proposition for buyers seeking a spacious family home with substantial outdoor space. The property’s location benefits from proximity to Ashford International Station, providing convenient access to major transportation networks. Multiple highly rated primary schools are also found nearby. The house itself appears well-maintained, boasting recently modernized kitchen and bathrooms. The hardwood floors and sunroom add to the inviting feel. A key selling point is the extensive land surrounding the property. The inclusion of outbuildings is a significant added bonus for storage or potential conversion into additional living spaces. However, a detailed structural survey and local market comparison should be carried out before committing to purchase. The provided photos reveal a property in good repair that should be capable of immediate inhabitation. Overall, it appears to be a good value proposition for those requiring additional living space or outbuildings. The lack of detailed data regarding square footage does however make it difficult to make a definitive statement about the value for money.
Therefore, we give this property 7 / 10. *Disclaimer: This is our option and does constitute a recommendation or financial advice. Do your own research. *
- Price
- 7
- Condition
- 7
- Location
- 7
- Land
- 8
- Bedrooms
- 4
- Bathrooms
- 2
- Sqft (est)
- 1,365.94
The heatmap indicates the level of crime in the area. The color of the heatmap indicates the crime severity and recency.
Metrics Year-on-Year
- Average area value
- 197,000.00 £Decreased by 35.79 %
- Est sale value
- 424,807.34 £Increased by 0.65 %
- Average area rental value
- 1,400.00 £/moIncreased by 16.28 %
- Est letting value
- 2,731.88 £/moIncreased by 100.00 %
- Est rental Yield
- 8.53 %Increased by 81.10 %
- Crime Rate
- 0.00 %
Agent Activity
Distinctive Homes marked this listing as sold.
Distinctive Homes created the listing.
Nearby Schools
| Name | Type | Ofsted | Distance |
|---|---|---|---|
| The John Wallis Church Of England Academy | Academy Sponsor Led | Good | 0.76 KM |
| Ray Allen Children'S Centre | Children's Centre | 1.09 KM | |
| Beaver Green Primary School | Academy Sponsor Led | Good | 1.24 KM |
| The John Wesley Church Of England Methodist Voluntary Aided Primary School | Voluntary Aided School | Good | 1.57 KM |
| Kingsnorth Church Of England Primary School | Academy Converter | Good | 1.71 KM |
Images
Nearby Streets
| Name | Average Price | Average Sqft | Distance |
|---|---|---|---|
| Summerhill | £ 0 | 0 | 0.00 KM |
| Magnolia Drive | £ 0 | 0 | 0.00 KM |
| Coppice Drive | £ 0 | 0 | 0.00 KM |
| Cherry Gardens | £ 400,000 | 0 | 0.00 KM |
| Hedgers Way | £ 420,995 | 0 | 0.00 KM |
Nearby Transport
| Name | NLC | TLC | Distance |
|---|---|---|---|
| Ashford International | 5004 | AFK | 3.66 KM |
| Ham Street | 5037 | HMT | 6.17 KM |
Nearby Listings
| Address | Price | Type | Score | Distance |
|---|---|---|---|---|
| Lucilla Avenue, Ashford, Kent | £ 347,000 | BUY | 6 / 10 | 0.22 KM |
| Lucilla Avenue, Ashford, Kent | £ 525,000 | BUY | 6 / 10 | 0.22 KM |
| Lucilla Avenue, Ashford, TN23 3 | £ 315,000 | BUY | 7 / 10 | 0.23 KM |
| Shepherd Close, Kingsnorth | £ 500,000 | BUY | 6 / 10 | 0.23 KM |
| The Haven, Kingsnorth, ASHFORD | £ 250,000 | BUY | 6 / 10 | 0.25 KM |
Nearby Properties
| Address | Price | Distance |
|---|---|---|
| Lunamere | £ 370,000 | 0.06 KM |
| The Priors | £ 185,000 | 0.06 KM |
| Reverslea House | £ 521,000 | 0.06 KM |
| Bookham | £ 296,000 | 0.06 KM |
| Al-fresco | £ 226,250 | 0.06 KM |