FO
Beaumont Avenue, North Wembley, Wembley, HA0
By Foxtons
£ 650,000
Reviews
3 out of 5 stars
Foxtons says ..
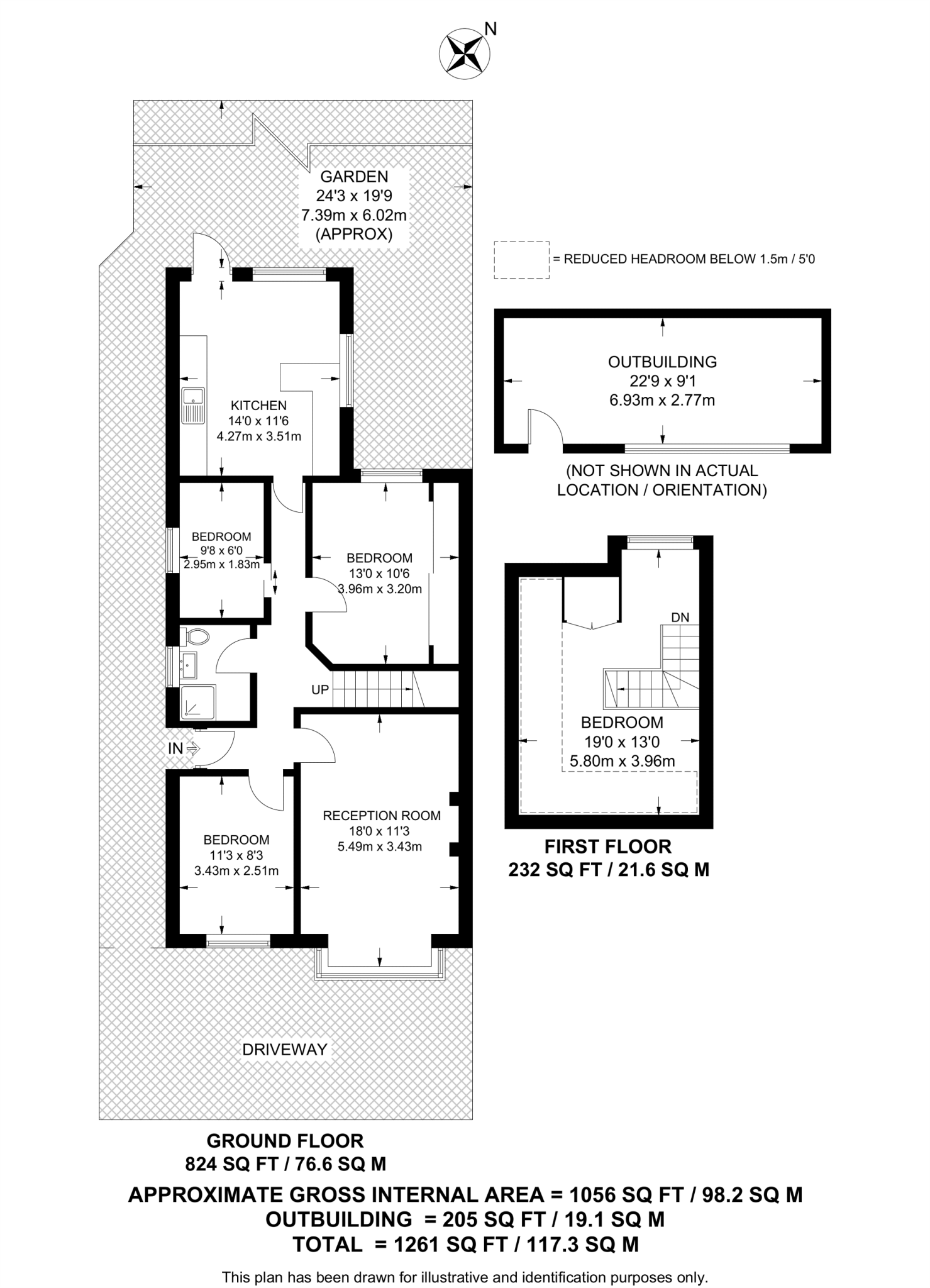
A fabulous 3 bedroom bungalow in North Wembley featuring generously sized and extended living space, large loft bedroom, lovely rear garden with outbuilding and off street parking.
Property Oracle says ..
Therefore, we give this property 6 / 10. *Disclaimer: This is our option and does constitute a recommendation or financial advice. Do your own research. *
- Price
- 6
- Condition
- 5
- Location
- 7
- Land
- 7
- Bedrooms
- 3
- Bathrooms
- 1
- Sqft (est)
- 1,262.61
- Lot (est)
- 1,262.61
The heatmap indicates the level of crime in the area. The color of the heatmap indicates the crime severity and recency.
Metrics Year-on-Year
- Average area value
- 497,772.00 £Increased by 11.11 %
- Est sale value
- 756,303.39 £Increased by 37.70 %
- Average area rental value
- 1,863.00 £/moDecreased by 5.72 %
- Est letting value
- 2,525.22 £/moIncreased by 100.00 %
- Est rental Yield
- 4.49 %Decreased by 15.12 %
- Crime Rate
- 3.00 %Unchanged by 0.00 %
from 447,990.00 £
from 549,235.35 £
from 1,976.00 £/mo
from 1,262.61 £/mo
from 5.29 %
from 3.00 %
Agent Activity
Foxtons created the listing.
Nearby Schools
| Name | Type | Ofsted | Distance |
|---|---|---|---|
| Wembley High Technology College | Academy Converter | 0.78 KM | |
| East Lane Primary School | Academy Converter | Outstanding | 0.91 KM |
| North Brent School | Free Schools | 0.91 KM | |
| Sudbury Primary School | Academy Converter | Good | 0.98 KM |
| Barham Primary School | Community School | Good | 1.01 KM |
Images
Nearby Streets
| Name | Average Price | Average Sqft | Distance |
|---|---|---|---|
| Beaumont Court | £ 1,100,000 | 0 | 0.00 KM |
| Allendale Road | £ 367,500 | 0 | 0.00 KM |
| Marloes Close | £ 625,000 | 0 | 0.00 KM |
| Bridgewater Road | £ 0 | 0 | 0.00 KM |
| Chestnut Grove | £ 528,333 | 0 | 0.00 KM |
Nearby Transport
| Name | NLC | TLC | Distance |
|---|---|---|---|
| Sudbury And Harrow Road | 1483 | SUD | 0.47 KM |
| North Wembley | 1422 | NWB | 1.10 KM |
| South Kenton | 1453 | SOK | 1.61 KM |
| Wembley Central | 1423 | WMB | 1.73 KM |
| Sudbury Hill Harrow | 1484 | SDH | 2.69 KM |
Nearby Listings
| Address | Price | Type | Score | Distance |
|---|---|---|---|---|
| Beaumont Avenue, North Wembley, Wembley, HA0 | £ 650,000 | BUY | 6 / 10 | 0.00 KM |
| Beaumont Avenue, Wembley, HA0 | £ 500,000 | BUY | 5 / 10 | 0.03 KM |
| Charterhouse Avenue, Wembley | £ 180,000 | BUY | 6 / 10 | 0.05 KM |
| Sudbury | £ 600,000 | BUY | 6 / 10 | 0.09 KM |
| Charterhouse Avenue, Wembley | £ 525,000 | BUY | Unknown | 0.11 KM |
Nearby Properties
| Address | Price | Distance |
|---|---|---|
| 93 Beaumont Avenue | £ 262,000 | 0.03 KM |
| 61 Beaumont Avenue | £ 281,000 | 0.03 KM |
| 44a Beaumont Avenue | £ 525,000 | 0.03 KM |
| 73a Beaumont Avenue | £ 210,000 | 0.03 KM |
| 64 Beaumont Avenue | £ 380,000 | 0.03 KM |