Gillingham Road, Cricklewood, NW2
PA

Gillingham Road, Cricklewood, NW2

By Paramount

£ 1,100,000

Reviews

4 out of 5 stars

Paramount says ..

This ones for you if... You’re after a home that’s both playful and polished, with all the soul of a classic family London terrace and the opportunity to add further space (subject to planning permission) as you wish. Downstairs is full of vibrant energy. There&...

Property Oracle says ..

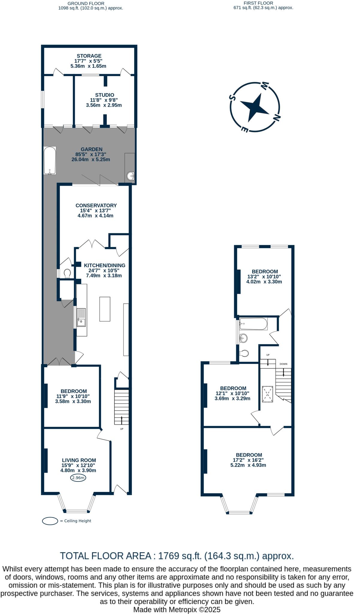
The property is a well-presented 3 bedroom, 1 bathroom terraced house in Cricklewood, NW2. It benefits from excellent transport links and nearby schools, although the surrounding area shows a mix of property values. The property itself is in good condition and has been recently updated, featuring a large garden with a decked area, outdoor bath, and a converted shed/home office. The asking price seems reasonable considering its size, condition, and features, although a precise comparison with local price per sqft is difficult due to limited data for similar properties.

Therefore, we give this property 8 / 10. *Disclaimer: This is our option and does constitute a recommendation or financial advice. Do your own research. *

Price
8
Condition
9
Location
8
Land
9
Bedrooms
3
Bathrooms
1
Sqft (est)
2,832.00
Lot (est)
1,769.00

The heatmap indicates the level of crime in the area. The color of the heatmap indicates the crime severity and recency.

Metrics Year-on-Year

Average area value
631,500.00 £
Decreased by 49.35 %
from 1,246,724.00 £
Est sale value
1,973,904.00 £
Decreased by 12.55 %
from 2,257,104.00 £
Average area rental value
2,142.00 £/mo
Decreased by 10.94 %
from 2,405.00 £/mo
Est letting value
5,664.00 £/mo
Increased by 100.00 %
from 2,832.00 £/mo
Est rental Yield
4.07 %
Increased by 76.19 %
from 2.31 %
Crime Rate
10.00 %
Unchanged by 0.00 %
from 10.00 %

Agent Activity

  • Paramount created the listing.

Nearby Schools

NameTypeOfstedDistance
St Agnes' Catholic Primary SchoolVoluntary Aided SchoolOutstanding0.08 KM
Childs Hill Primary SchoolAcademy Converter0.40 KM
Hampstead SchoolCommunity SchoolGood0.65 KM
Claremont Primary SchoolAcademy ConverterGood0.99 KM
The Mulberry House SchoolOther Independent School1.07 KM

Images

Picture No. 08 Picture No. 07 Picture No. 10 Picture No. 09 Picture No. 11 Picture No. 47 Picture No. 12 Picture No. 13 Picture No. 14 Picture No. 15 Picture No. 16 Picture No. 17 Picture No. 18 Picture No. 19 Picture No. 20 Picture No. 21 Picture No. 22 Picture No. 23 Picture No. 24 Picture No. 25 Picture No. 26 Picture No. 27 Picture No. 28 Picture No. 29 Picture No. 30 Picture No. 31 Picture No. 32 Picture No. 33 Picture No. 34 Picture No. 35 Picture No. 36 Picture No. 37 Picture No. 38 Picture No. 39 Picture No. 40 Picture No. 41 Picture No. 42 Picture No. 43 Picture No. 44 Picture No. 45 Google Maps Image

Nearby Streets

NameAverage PriceAverage SqftDistance
Harman Close £ 382,50000.00 KM
Cumbrian Gardens £ 999,50000.00 KM
Sylvan Grove £ 000.00 KM
Malvern Gardens £ 000.00 KM
Hudson Way £ 625,00000.00 KM

Nearby Transport

NameNLCTLCDistance
Cricklewood1519CRI0.37 KM
Brondesbury1437BSY1.94 KM
Brondesbury Park1438BSP2.23 KM
West Hampstead Thameslink1525WHP2.45 KM
West Hampstead1421WHD2.57 KM

Nearby Listings

AddressPriceTypeScoreDistance
Gillingham Road, Cricklewood, NW2 £ 1,100,000BUY8 / 100.00 KM
116 Cricklewood Lane, London £ 475,000BUY6 / 100.10 KM
Woodley Crescent, Cricklewood, NW2 £ 425,000BUY6 / 100.12 KM
Thorverton Road, London £ 475,000BUY6 / 100.14 KM
Omnibus House, Cricklewood, LONDON, NW2 £ 550,000BUY6 / 100.15 KM

Nearby Properties

AddressPriceDistance
21 Gillingham Road £ 340,0000.01 KM
9 Gillingham Road £ 480,0000.01 KM
3 Gillingham Road £ 450,0000.01 KM
5 Gillingham Road £ 950,0000.01 KM
7 Gillingham Road £ 460,0000.01 KM