Pier House, Harbour Road, Brora, Sutherland KW9 6QF
By Paul Coutts Estate Agency
£ 195,000
Reviews
2 out of 5 stars
Paul Coutts Estate Agency says ..
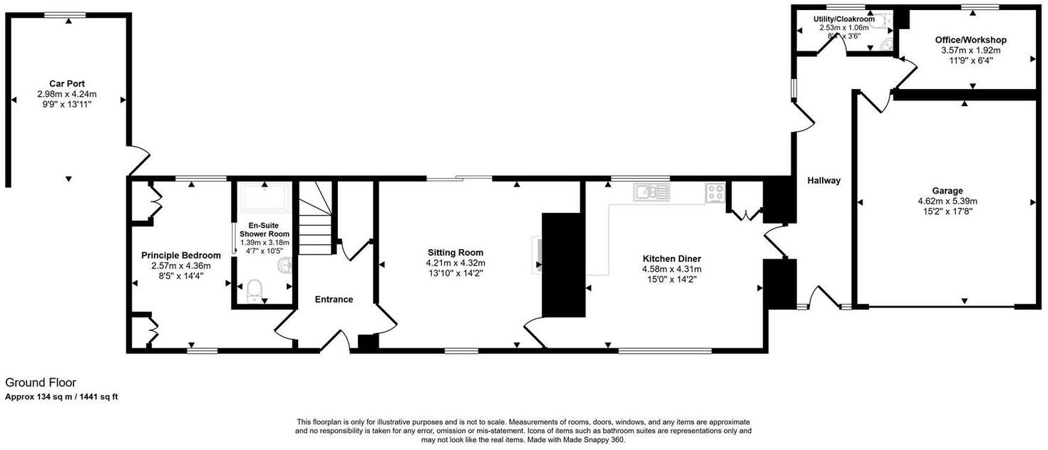
The Location... that's what this house has, formerly the Harbour Master's house, it looks directly on to the harbour and mouth of the river Brora. Comprising 3/4 bedrooms, sitting room, kitchen/diner, 2 bathrooms, utility, garage and enclosed garden, this house is in need of remedial work and ...
Property Oracle says ..
Therefore, we give this property 5 / 10. *Disclaimer: This is our option and does constitute a recommendation or financial advice. Do your own research. *
- Price
- 5
- Condition
- 4
- Location
- 7
- Land
- 6
- Bedrooms
- 4
- Bathrooms
- 2
- Sqft (est)
- 1,083.28
The heatmap indicates the level of crime in the area. The color of the heatmap indicates the crime severity and recency.
Metrics Year-on-Year
- Average area value
- 100,833.00 £Decreased by 30.42 %
- Est sale value
- 137,576.56 £Decreased by 52.96 %
- Average area rental value
- 877.00 £/moIncreased by 4.40 %
- Est letting value
- 1,083.28 £/moUnchanged by 0.00 %
- Est rental Yield
- 10.44 %Increased by 50.00 %
- Crime Rate
- 0.00 %
from 144,919.00 £
from 292,485.60 £
from 840.00 £/mo
from 1,083.28 £/mo
from 6.96 %
from 0.00 %
Agent Activity
Paul Coutts Estate Agency created the listing.
Images
Nearby Streets
| Name | Average Price | Average Sqft | Distance |
|---|---|---|---|
| Market Street | £ 0 | 0 | 0.00 KM |
| Manse Park | £ 100,000 | 0 | 0.00 KM |
| Links View | £ 0 | 0 | 0.00 KM |
| Station Square | £ 100,000 | 0 | 0.00 KM |
| Park Terrace | £ 0 | 0 | 0.00 KM |
Nearby Transport
| Name | NLC | TLC | Distance |
|---|---|---|---|
| Brora | 8618 | BRA | 0.49 KM |
Nearby Listings
| Address | Price | Type | Score | Distance |
|---|---|---|---|---|
| Pier House, Harbour Road, Brora, Sutherland KW9 6QF | £ 195,000 | BUY | 5 / 10 | 0.00 KM |
| Pier House, Harbour Road, Brora, Sutherland KW9 6QF | £ 195,000 | BUY | 6 / 10 | 0.00 KM |
| Dunmore, Harbour Road, Brora, Sutherland KW9 6QF | £ 170,000 | BUY | 5 / 10 | 0.04 KM |
| 3 Elder St, Brora, Sutherland, KW9 6QD | £ 150,000 | BUY | 6 / 10 | 0.11 KM |
| Bet-sys-mith, 14 Market Street, Brora, Sutherland KW9 PX | £ 110,000 | BUY | 5 / 10 | 0.23 KM |