Broomloan Lane, Sutton, Surrey, SM1
By Higgins Drysdale National Property Auctions
£ 730,000
Reviews
3 out of 5 stars
Higgins Drysdale National Property Auctions says ..
Nestled in a sought-after location, this impeccably maintained four-bedroom end-of-terrace home offers the perfect blend of modern living and family-friendly charm. The property, presented in excellent condition, is ready to welcome its new owners with a truly move-in-ready experience.
Property Oracle says ..
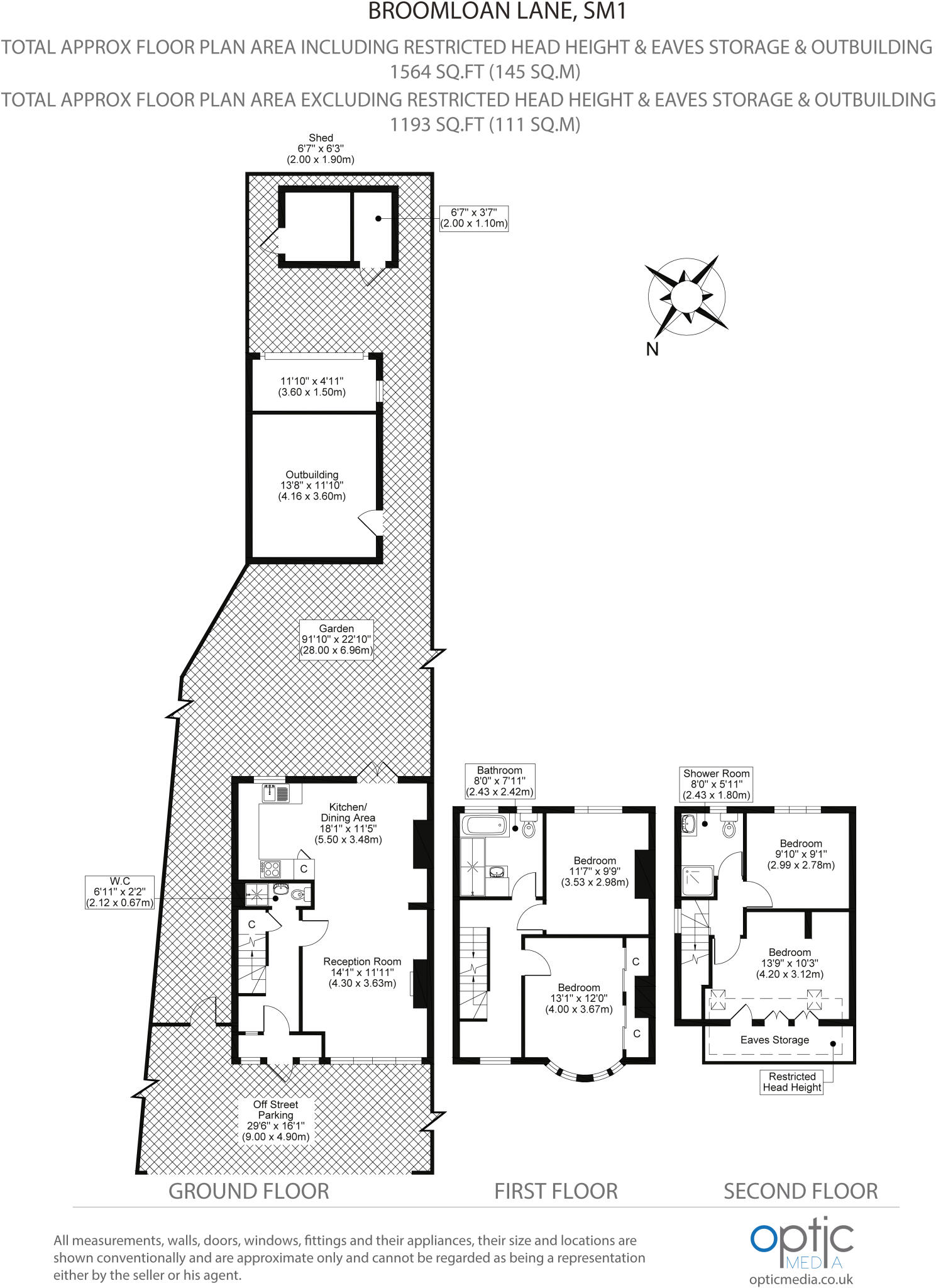
This four-bedroom end-of-terrace house located on Broomloan Lane in Sutton, Surrey presents a compelling proposition for potential buyers. The property is presented in excellent condition with clear evidence of recent modernisation, as showcased by the updated kitchen and bathrooms. The images depict a contemporary and well-maintained interior, ready for immediate occupancy. The inclusion of a sizable garden that provides a good amount of space, adding to the family-friendly appeal. Proximity to Sutton Common railway station ensures excellent transport links to central London. Moreover, the location is highly desirable due to its closeness to several highly-rated schools, particularly the outstanding Glenthorne High School. Although precise square footage information is unavailable, the asking price seems reasonable in relation to similar properties in the area. Further information on the plot size and comparative property sales data would allow for a more precise valuation.
Therefore, we give this property 7 / 10. *Disclaimer: This is our option and does constitute a recommendation or financial advice. Do your own research. *
- Price
- 7
- Condition
- 8
- Location
- 7
- Land
- 6
- Bedrooms
- 4
- Bathrooms
- 0
- Sqft (est)
- 1,193.00
The heatmap indicates the level of crime in the area. The color of the heatmap indicates the crime severity and recency.
Metrics Year-on-Year
- Average area value
- 364,000.00 £Decreased by 29.95 %
- Est sale value
- 318,531.00 £Decreased by 53.08 %
- Average area rental value
- 1,700.00 £/moDecreased by 10.62 %
- Est letting value
- 1,193.00 £/moDecreased by 50.00 %
- Est rental Yield
- 5.60 %Increased by 27.56 %
- Crime Rate
- 5.00 %Unchanged by 0.00 %
Agent Activity
Higgins Drysdale National Property Auctions created the listing.
Nearby Schools
| Name | Type | Ofsted | Distance |
|---|---|---|---|
| Glenthorne High School | Academy Converter | Outstanding | 0.49 KM |
| Westbourne Primary School | Academy Converter | 0.56 KM | |
| Abbey Primary School | Academy Converter | 0.84 KM | |
| All Saints Benhilton Cofe Primary School | Voluntary Aided School | Good | 1.07 KM |
| Robin Hood Junior School | Community School | Good | 1.34 KM |
Images
Nearby Streets
| Name | Average Price | Average Sqft | Distance |
|---|---|---|---|
| Anderson Close | £ 0 | 0 | 0.00 KM |
| Anton Crescent | £ 0 | 0 | 0.00 KM |
| All Saints Road | £ 400,000 | 0 | 0.00 KM |
| Bushey Road | £ 0 | 0 | 0.00 KM |
| Vale Road | £ 0 | 0 | 0.00 KM |
Nearby Transport
| Name | NLC | TLC | Distance |
|---|---|---|---|
| Sutton Common | 5436 | SUC | 0.50 KM |
| West Sutton | 5293 | WSU | 1.31 KM |
| St Helier | 5290 | SIH | 1.48 KM |
| Morden South | 5291 | MDS | 2.16 KM |
| Sutton | 5385 | SUO | 2.17 KM |
Nearby Listings
| Address | Price | Type | Score | Distance |
|---|---|---|---|---|
| Broomloan Lane, Sutton, Surrey, SM1 | £ 730,000 | BUY | 7 / 10 | 0.00 KM |
| Broomloan Lane, Sutton, SM1 | £ 600,000 | BUY | 7 / 10 | 0.01 KM |
| Broomloan Lane, Sutton, Surrey | £ 375,000 | BUY | Unknown | 0.02 KM |
| Broomloan Lane, Sutton | £ 675,000 | BUY | 7 / 10 | 0.05 KM |
| Clensham Lane, Sutton, SM1 | £ 625,000 | BUY | 7 / 10 | 0.08 KM |
Nearby Properties
| Address | Price | Distance |
|---|---|---|
| 1a Broomloan Lane | £ 365,000 | 0.00 KM |
| 22 Broomloan Lane | £ 350,000 | 0.00 KM |
| 1d Broomloan Lane | £ 236,000 | 0.00 KM |
| 30 Broomloan Lane | £ 267,500 | 0.00 KM |
| 20 Broomloan Lane | £ 605,000 | 0.00 KM |