Butters John Bee says ..
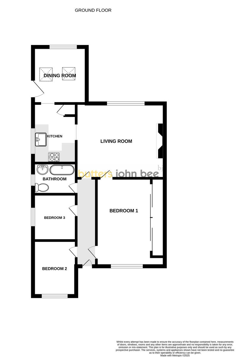
Nestled in a desirable location, this semi-detached bungalow offers both comfort and versatility
Property Oracle says ..
Therefore, we give this property 6 / 10. *Disclaimer: This is our option and does constitute a recommendation or financial advice. Do your own research. *
- Price
- 5
- Condition
- 7
- Location
- 7
- Land
- 6
- Bedrooms
- 3
- Bathrooms
- 1
- Sqft (est)
- 623.00
The heatmap indicates the level of crime in the area. The color of the heatmap indicates the crime severity and recency.
Metrics Year-on-Year
- Average area value
- 198,130.00 £Decreased by 16.97 %
- Est sale value
- 142,667.00 £Increased by 3.62 %
- Average area rental value
- 1,075.00 £/moIncreased by 14.97 %
- Est letting value
- 623.00 £/mo
- Est rental Yield
- 6.51 %Increased by 38.51 %
- Crime Rate
- 5.00 %Unchanged by 0.00 %
from 238,625.00 £
from 137,683.00 £
from 935.00 £/mo
from 0.00 £/mo
from 4.70 %
from 5.00 %
Agent Activity
Butters John Bee created the listing.
Nearby Schools
| Name | Type | Ofsted | Distance |
|---|---|---|---|
| Springfield School | Community Special School | Outstanding | 0.61 KM |
| Hungerford Primary Academy | Academy Converter | 0.79 KM | |
| Sir William Stanier Community School | Academy Sponsor Led | Requires improvement | 1.38 KM |
| Safe Opportunities | Special Post 16 Institution | 1.75 KM | |
| Monks Coppenhall Children'S Centre | Children's Centre | 1.76 KM |
Images
Nearby Streets
| Name | Average Price | Average Sqft | Distance |
|---|---|---|---|
| Woodland Avenue | £ 0 | 0 | 0.00 KM |
| Calder Avenue | £ 0 | 0 | 0.00 KM |
| Joseph Lucas Road | £ 0 | 0 | 0.00 KM |
| Sydney Road | £ 400,000 | 0 | 0.00 KM |
| Robert Lewis Avenue32 | £ 0 | 0 | 0.00 KM |
Nearby Transport
| Name | NLC | TLC | Distance |
|---|---|---|---|
| Crewe | 1243 | CRE | 1.82 KM |
| Sandbach | 1261 | SDB | 6.32 KM |
Nearby Listings
| Address | Price | Type | Score | Distance |
|---|---|---|---|---|
| Laureston Avenue, Crewe | £ 220,000 | BUY | 6 / 10 | 0.00 KM |
| Lansdowne Road, Crewe, Cheshire, CW1 | £ 190,000 | BUY | 7 / 10 | 0.17 KM |
| Pelican Close, Crewe, Cheshire | £ 280,000 | BUY | 7 / 10 | 0.17 KM |
| Pelican Close, Crewe, CW1 | £ 210,000 | BUY | 6 / 10 | 0.18 KM |
| Laureston Avenue, Crewe | £ 135,000 | BUY | 6 / 10 | 0.19 KM |
Nearby Properties
| Address | Price | Distance |
|---|---|---|
| 21 Seagull Close | £ 124,000 | 0.09 KM |
| 20 Seagull Close | £ 152,000 | 0.09 KM |
| 7 Seagull Close | £ 188,000 | 0.09 KM |
| 3 Seagull Close | £ 118,000 | 0.09 KM |
| 12 Seagull Close | £ 164,000 | 0.09 KM |