Holroyds says ..
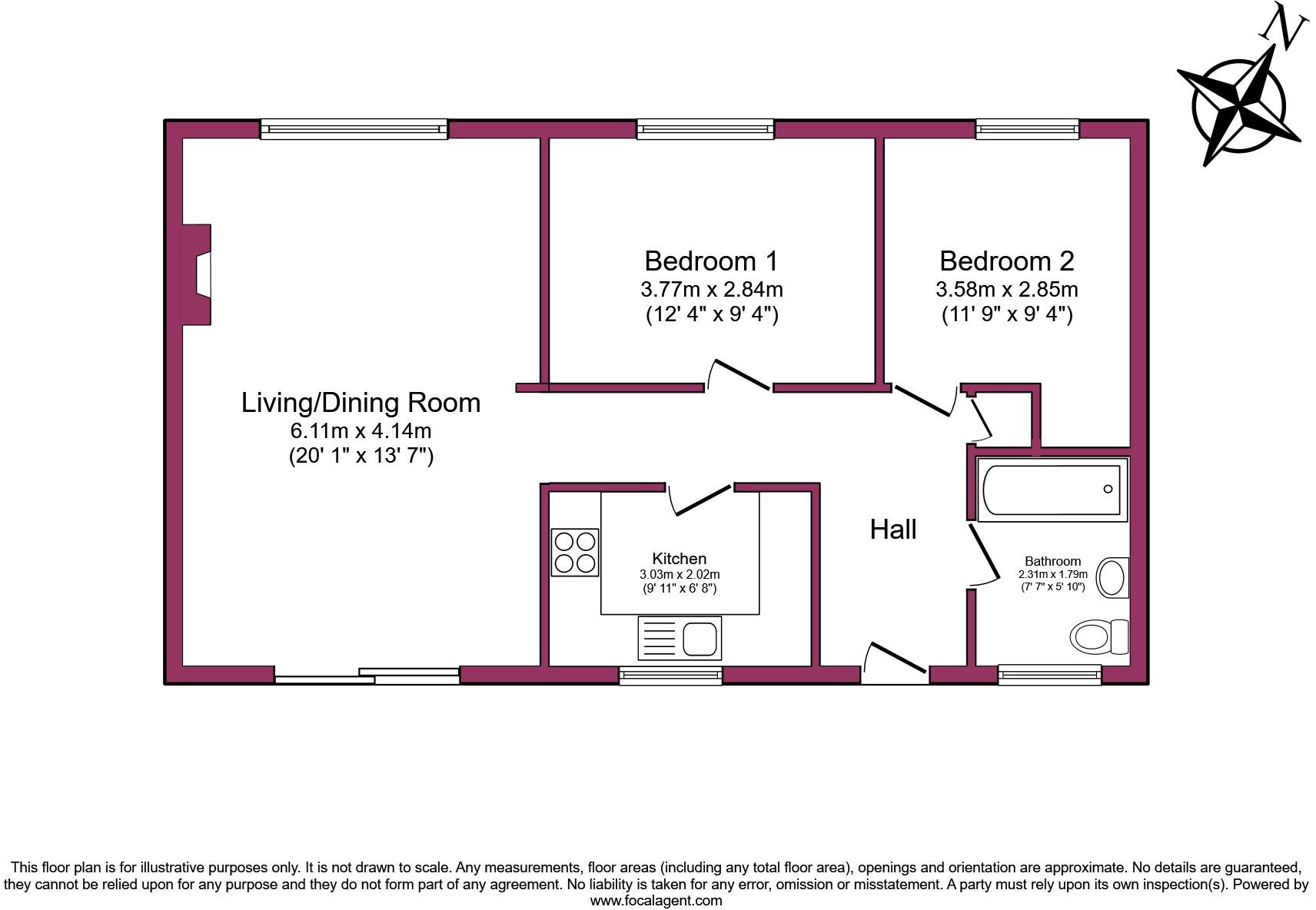
Stylish 2-Bedroom Apartment in Baildon
Property Oracle says ..
Therefore, we give this property 7 / 10. *Disclaimer: This is our option and does constitute a recommendation or financial advice. Do your own research. *
- Price
- 8
- Condition
- 8
- Location
- 8
- Land
- 7
- Bedrooms
- 2
- Bathrooms
- 1
- Sqft (est)
- 607.73
The heatmap indicates the level of crime in the area. The color of the heatmap indicates the crime severity and recency.
Metrics Year-on-Year
- Average area value
- 388,918.00 £Increased by 10.36 %
- Est sale value
- 212,097.77 £Increased by 36.86 %
- Average area rental value
- 809.00 £/moDecreased by 20.92 %
- Est letting value
- 0.00 £/mo
- Est rental Yield
- 2.50 %Decreased by 28.16 %
- Crime Rate
- 3.00 %Unchanged by 0.00 %
from 352,414.00 £
from 154,971.15 £
from 1,023.00 £/mo
from 0.00 £/mo
from 3.48 %
from 3.00 %
Agent Activity
Holroyds created the listing.
Nearby Schools
| Name | Type | Ofsted | Distance |
|---|---|---|---|
| Hoyle Court Primary School | Community School | Good | 0.32 KM |
| Baildon Cofe Primary School | Voluntary Aided School | Outstanding | 0.75 KM |
| St Anthony'S Catholic Primary School, A Voluntary Academy | Academy Converter | 1.56 KM | |
| Christ Church Church Of England Academy | Academy Sponsor Led | Good | 1.80 KM |
| Baildon Children'S Centre | Children's Centre Linked Site | 2.26 KM |
Images
Nearby Streets
| Name | Average Price | Average Sqft | Distance |
|---|---|---|---|
| (Old) Holden Lane | £ 249,950 | 0 | 0.00 KM |
| St James Court | £ 0 | 0 | 0.00 KM |
| St. John's Court | £ 0 | 0 | 0.00 KM |
| Heygate Close | £ 0 | 0 | 0.00 KM |
| Broadacre Way | £ 0 | 0 | 0.00 KM |
Nearby Transport
| Name | NLC | TLC | Distance |
|---|---|---|---|
| Baildon | 8552 | BLD | 0.25 KM |
| Shipley (Yorks) | 8347 | SHY | 2.67 KM |
| Frizinghall | 8556 | FZH | 3.54 KM |
| Saltaire | 8561 | SAE | 4.03 KM |
| Menston | 8574 | MNN | 5.28 KM |
Nearby Listings
| Address | Price | Type | Score | Distance |
|---|---|---|---|---|
| Ridgewood Close, Baildon, Shipley | £ 180,000 | BUY | 7 / 10 | 0.00 KM |
| Ridgewood Close, Baildon, West Yorkshire, BD17 | £ 275,000 | BUY | Unknown | 0.03 KM |
| Ridgewood Close, Baildon, Shipley, West Yorkshire, BD17 | £ 225,000 | BUY | 6 / 10 | 0.03 KM |
| Kirklands Avenue, Baildon, Shipley, West Yorkshire, BD17 | £ 399,950 | BUY | Unknown | 0.12 KM |
| Kirklands Avenue, Baildon, Shipley, West Yorkshire, BD17 | £ 475,000 | BUY | Unknown | 0.13 KM |
Nearby Properties
| Address | Price | Distance |
|---|---|---|
| 28 Ridgewood Close | £ 195,000 | 0.00 KM |
| 3 Ridgewood Close | £ 78,995 | 0.00 KM |
| 12 Ridgewood Close | £ 140,000 | 0.00 KM |
| 10 Ridgewood Close | £ 150,000 | 0.00 KM |
| 6 Ridgewood Close | £ 112,000 | 0.00 KM |