Ocean says ..
Meticulously maintained and elegantly decorated this recently built two-bedroom house is perfect for first time buyers.
Property Oracle says ..
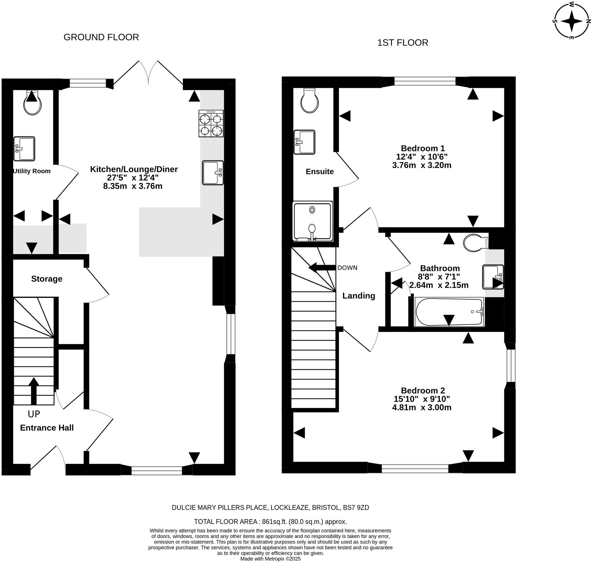
This is a modern semi-detached property in Lockleaze, Bristol. It features two bedrooms and three bathrooms, with a well-maintained interior and a functional garden. The location offers a suburban feel with access to local schools and transportation. The property appears to be in excellent condition, requiring no immediate renovations. The asking price of £325,000 seems fair considering the size, condition, and location, aligning with the average price per square foot in the area. The property is conveniently located near Stoke Park Primary School and Trinity Academy.
Therefore, we give this property 7 / 10. *Disclaimer: This is our option and does constitute a recommendation or financial advice. Do your own research. *
- Price
- 7
- Condition
- 9
- Location
- 7
- Land
- 6
- Bedrooms
- 2
- Bathrooms
- 3
- Sqft (est)
- 861.11
The heatmap indicates the level of crime in the area. The color of the heatmap indicates the crime severity and recency.
Metrics Year-on-Year
- Average area value
- 308,695.00 £Decreased by 14.98 %
- Est sale value
- 387,499.50 £Decreased by 0.22 %
- Average area rental value
- 2,053.00 £/moIncreased by 3.06 %
- Est letting value
- 1,722.22 £/moUnchanged by 0.00 %
- Est rental Yield
- 7.98 %Increased by 21.28 %
- Crime Rate
- 6.00 %Unchanged by 0.00 %
Agent Activity
Ocean created the listing.
Nearby Schools
| Name | Type | Ofsted | Distance |
|---|---|---|---|
| Stoke Park Primary School | Academy Converter | 0.44 KM | |
| Trinity Academy | Free Schools | 0.44 KM | |
| Filton Avenue Nursery School And Children'S Centre | Children's Centre | 0.84 KM | |
| Filton Avenue Primary School | Academy Converter | Requires improvement | 0.91 KM |
| Filton Avenue Nursery School | Local Authority Nursery School | Outstanding | 1.00 KM |
Images
Nearby Streets
| Name | Average Price | Average Sqft | Distance |
|---|---|---|---|
| Flaxman Close | £ 0 | 0 | 0.00 KM |
| Gainsborough Square | £ 0 | 0 | 0.00 KM |
| Concorde Way | £ 0 | 0 | 0.00 KM |
| More Street | £ 0 | 0 | 0.00 KM |
| Newbury Road | £ 335,000 | 0 | 0.00 KM |
Nearby Transport
| Name | NLC | TLC | Distance |
|---|---|---|---|
| Filton Abbey Wood | 3235 | FIT | 1.59 KM |
| Stapleton Road | 3250 | SRD | 2.63 KM |
| Montpelier | 3203 | MTP | 3.54 KM |
| Bristol Parkway | 3230 | BPW | 3.67 KM |
| Lawrence Hill | 3225 | LWH | 3.69 KM |
Nearby Listings
| Address | Price | Type | Score | Distance |
|---|---|---|---|---|
| Dulcie Mary Pillers Place, Bristol | £ 325,000 | BUY | 7 / 10 | 0.00 KM |
| Dulcie Mary Pillers Place, Lockleaze, BS7 | £ 325,000 | BUY | Unknown | 0.00 KM |
| Crome Road | Lockleaze | £ 315,000 | BUY | Unknown | 0.04 KM |
| Landseer Avenue, Bristol | £ 260,000 | BUY | Unknown | 0.07 KM |
| HMO INVESTMENT | £63K PA | £ 550,000 | BUY | Unknown | 0.10 KM |
Nearby Properties
| Address | Price | Distance |
|---|---|---|
| 22 Crome Road | £ 250,000 | 0.02 KM |
| 2 Crome Road | £ 110,000 | 0.02 KM |
| 28a Crome Road | £ 215,000 | 0.04 KM |
| 26 Crome Road | £ 240,000 | 0.04 KM |
| 19 Crome Road | £ 245,000 | 0.07 KM |