Twydall Lane, Twydall, Kent, ME8
By Robinson Michael & Jackson
£ 280,000
Reviews
3 out of 5 stars
Robinson Michael & Jackson says ..
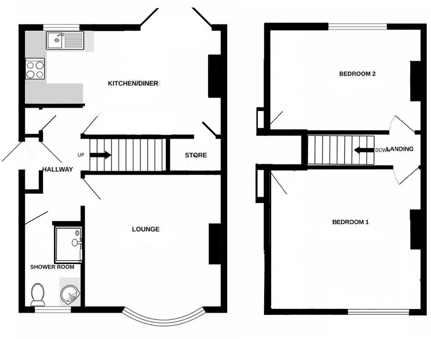
Robinson Michael & Jackson proudly present this well-maintained two-bedroom semi-detached home on the ever-popular Twydall Lane – a must-see for first-time buyers, downsizers, or investors alike. This charming property offers a bright and spacious living area with a large fro...
Property Oracle says ..
Therefore, we give this property 7 / 10. *Disclaimer: This is our option and does constitute a recommendation or financial advice. Do your own research. *
- Price
- 8
- Condition
- 8
- Location
- 7
- Land
- 7
- Bedrooms
- 2
- Bathrooms
- 1
- Sqft (est)
- 800.00
The heatmap indicates the level of crime in the area. The color of the heatmap indicates the crime severity and recency.
Metrics Year-on-Year
- Average area value
- 405,000.00 £Increased by 14.70 %
- Est sale value
- 317,600.00 £Increased by 5.03 %
- Average area rental value
- 1,825.00 £/moIncreased by 1.45 %
- Est letting value
- 800.00 £/moUnchanged by 0.00 %
- Est rental Yield
- 5.41 %Decreased by 11.46 %
- Crime Rate
- 9.00 %Unchanged by 0.00 %
from 353,082.00 £
from 302,400.00 £
from 1,799.00 £/mo
from 800.00 £/mo
from 6.11 %
from 9.00 %
Agent Activity
Robinson Michael & Jackson created the listing.
Nearby Schools
| Name | Type | Ofsted | Distance |
|---|---|---|---|
| St Thomas Of Canterbury Rc Primary School | Voluntary Aided School | Good | 0.26 KM |
| Hand In Hand Children'S Centre | Children's Centre | 0.31 KM | |
| Twydall Primary School And Nursery | Academy Sponsor Led | Requires improvement | 0.31 KM |
| Featherby Junior School | Academy Sponsor Led | 0.74 KM | |
| Featherby Infant And Nursery School | Academy Converter | 0.83 KM |
Images
Nearby Streets
| Name | Average Price | Average Sqft | Distance |
|---|---|---|---|
| Courteney Road | £ 238,000 | 0 | 0.00 KM |
| Hartley Mews | £ 0 | 0 | 0.00 KM |
| Minster Road | £ 0 | 0 | 0.00 KM |
| Wright Close | £ 0 | 0 | 0.00 KM |
| Caldew Avenue | £ 0 | 0 | 0.00 KM |
Nearby Transport
| Name | NLC | TLC | Distance |
|---|---|---|---|
| Rainham (Kent) | 5177 | RAI | 3.44 KM |
| Gillingham (Kent) | 5169 | GLM | 3.79 KM |
| Chatham | 5199 | CTM | 6.66 KM |
| Rochester | 5203 | RTR | 7.94 KM |
| Strood (Kent) | 5191 | SOO | 9.32 KM |
Nearby Listings
| Address | Price | Type | Score | Distance |
|---|---|---|---|---|
| Twydall Lane, Twydall, Kent, ME8 | £ 280,000 | BUY | 7 / 10 | 0.00 KM |
| Twydall Lane, Twydall, Gillingham, Kent | £ 310,000 | BUY | 7 / 10 | 0.04 KM |
| Lewis Avenue, Gillingham | £ 290,000 | BUY | Unknown | 0.07 KM |
| Greenvale Gardens, Twydall, Kent, ME8 | £ 325,000 | BUY | 6 / 10 | 0.09 KM |
| Greenvale Gardens, Gillingham | £ 290,000 | BUY | 6 / 10 | 0.10 KM |
Nearby Properties
| Address | Price | Distance |
|---|---|---|
| 82 Twydall Lane | £ 370,000 | 0.04 KM |
| 87 Twydall Lane | £ 249,150 | 0.04 KM |
| 85 Twydall Lane | £ 145,500 | 0.04 KM |
| 69 Twydall Lane | £ 302,500 | 0.04 KM |
| 61 Twydall Lane | £ 330,000 | 0.04 KM |