Hamilton Chase says ..
Situated in this sought after location within easy access of New Barnet and High Barnet Overground and Underground Stations, Excellent Schools and Shopping facilities Hamilton Chase are delighted to offer for sale this attractive two double bedroom top floor flat forming part of this small dev...
Property Oracle says ..
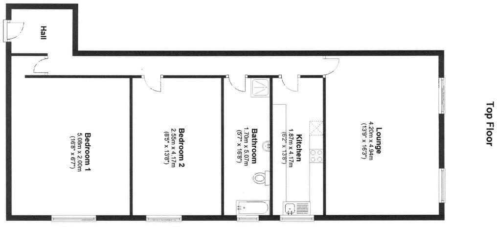
This is a two-bedroom apartment located in Duncan Close, High Barnet. The property is listed for £375,000 and is being marketed by Hamilton Chase. The apartment is situated in a residential area with access to communal gardens. New Barnet station is within walking distance, providing convenient access to transportation links. Nearby schools include Lyonsdown School and Cromer Road Primary School. The property appears to be in reasonable condition, but could benefit from some modernisation. The kitchen and bathroom are functional but somewhat dated. Overall, this property represents a decent opportunity for first-time buyers or investors looking for a property in a desirable location with good transport links.
Therefore, we give this property 6 / 10. *Disclaimer: This is our option and does constitute a recommendation or financial advice. Do your own research. *
- Price
- 7
- Condition
- 6
- Location
- 7
- Land
- 5
- Bedrooms
- 2
- Bathrooms
- 1
- Sqft (est)
- 623.88
The heatmap indicates the level of crime in the area. The color of the heatmap indicates the crime severity and recency.
Metrics Year-on-Year
- Average area value
- 677,122.00 £Decreased by 28.61 %
- Est sale value
- 336,895.20 £Decreased by 27.71 %
- Average area rental value
- 5,020.00 £/moIncreased by 76.26 %
- Est letting value
- 2,495.52 £/moIncreased by 100.00 %
- Est rental Yield
- 8.90 %Increased by 147.22 %
- Crime Rate
- 21.00 %Unchanged by 0.00 %
Agent Activity
Hamilton Chase created the listing.
Nearby Schools
| Name | Type | Ofsted | Distance |
|---|---|---|---|
| Lyonsdown School | Other Independent School | 0.40 KM | |
| Cromer Road Primary School | Community School | Good | 0.42 KM |
| St Margaret'S Nursery School | Local Authority Nursery School | Outstanding | 1.09 KM |
| Jcoss | Voluntary Aided School | Good | 1.13 KM |
| Beya Children'S Centre | Children's Centre | 1.17 KM |
Images
Nearby Streets
| Name | Average Price | Average Sqft | Distance |
|---|---|---|---|
| Mowbray Road | £ 0 | 0 | 0.00 KM |
| Bulwer Gardens | £ 325,000 | 0 | 0.00 KM |
| Preston Court | £ 289,995 | 0 | 0.00 KM |
| Station Approach | £ 0 | 0 | 0.00 KM |
| Triangle Passage | £ 0 | 0 | 0.00 KM |
Nearby Transport
| Name | NLC | TLC | Distance |
|---|---|---|---|
| New Barnet | 6018 | NBA | 0.57 KM |
| Oakleigh Park | 6020 | OKL | 1.85 KM |
| Hadley Wood | 6075 | HDW | 2.13 KM |
| New Southgate | 6019 | NSG | 5.52 KM |
| Potters Bar | 6022 | PBR | 5.54 KM |
Nearby Listings
| Address | Price | Type | Score | Distance |
|---|---|---|---|---|
| Duncan Close, Barnet | £ 375,000 | BUY | 6 / 10 | 0.00 KM |
| Duncan Close, Barnet | £ 365,000 | BUY | 7 / 10 | 0.01 KM |
| Phoenix Court, 29 Station Road, New Barnet, EN5 | £ 500,000 | BUY | 7 / 10 | 0.05 KM |
| Plantagenet Road, Barnet, EN5 | £ 500,000 | BUY | 6 / 10 | 0.05 KM |
| Station Road, Barnet | £ 515,000 | BUY | 8 / 10 | 0.10 KM |
Nearby Properties
| Address | Price | Distance |
|---|---|---|
| 8 Duncan Close | £ 305,000 | 0.01 KM |
| 9 Duncan Close | £ 90,000 | 0.01 KM |
| 2 Duncan Close | £ 306,000 | 0.01 KM |
| 12 Duncan Close | £ 331,250 | 0.01 KM |
| 13 Duncan Close | £ 59,950 | 0.01 KM |