Cromwell Road, Wolverhampton
By Skitts Estate Agents
£ 275,000
Reviews
3 out of 5 stars
Skitts Estate Agents says ..
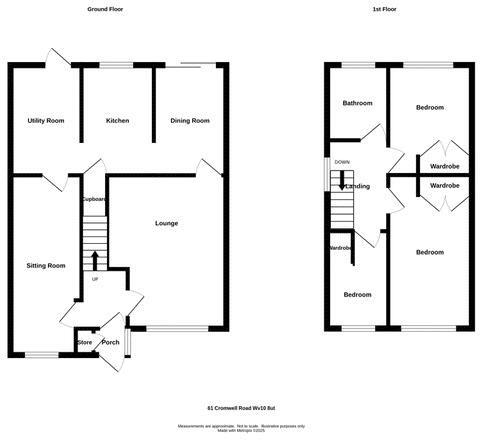
***NO UPWARD CHAIN*** A three bed link-detached property located within a popular and quiet cul-de-sac. The property benefits from central heating, double glazing, ample off road parking and a pleasant rear garden. This family residence has numerous noteworthy features and comprises of; por...
Property Oracle says ..
This property is a 3-bedroom, 1-bathroom link detached house located in Wolverhampton, West Midlands. The property benefits from being close to several schools which have received good Ofsted ratings, including Woodbury School and Northwood Park Primary School, both within a kilometer. Transportation links are also relatively convenient, with Wolverhampton train station approximately 4.52 KM away. The property itself appears to be in reasonable condition, although some updating or modernisation might enhance its appeal. The presence of a garden adds to its value. While the exact square footage is not provided, the asking price of £275,000 seems slightly higher than the average price in the area (£252,093), but comparable to other nearby link detached houses. Further information on the property’s square footage would allow for a more precise assessment of the price per square foot and overall value.
Therefore, we give this property 6 / 10. *Disclaimer: This is our option and does constitute a recommendation or financial advice. Do your own research. *
- Price
- 6
- Condition
- 7
- Location
- 7
- Land
- 6
- Bedrooms
- 3
- Bathrooms
- 1
The heatmap indicates the level of crime in the area. The color of the heatmap indicates the crime severity and recency.
Metrics Year-on-Year
- Average area value
- 278,738.00 £Increased by 27.76 %
- Average area rental value
- 910.00 £/moDecreased by 21.21 %
- Est rental Yield
- 3.92 %Decreased by 38.27 %
- Crime Rate
- 5.00 %Unchanged by 0.00 %
Agent Activity
Skitts Estate Agents created the listing.
Nearby Schools
| Name | Type | Ofsted | Distance |
|---|---|---|---|
| Woodbury School | Other Independent Special School | Good | 0.67 KM |
| Northwood Park Primary School | Academy Converter | Good | 0.83 KM |
| Bushbury Nursery School | Local Authority Nursery School | Good | 0.91 KM |
| St Anthony'S Catholic Primary Academy | Academy Converter | 1.24 KM | |
| Bushbury Hill Primary School | Community School | Good | 1.44 KM |
Images
Nearby Streets
| Name | Average Price | Average Sqft | Distance |
|---|---|---|---|
| Juniper Avenue | £ 0 | 0 | 0.00 KM |
| Blackthorn Drive | £ 0 | 0 | 0.00 KM |
| Hamilton Gardens | £ 0 | 0 | 0.00 KM |
| Bibby's Green | £ 0 | 0 | 0.00 KM |
| Aintree Road | £ 259,950 | 0 | 0.00 KM |
Nearby Transport
| Name | NLC | TLC | Distance |
|---|---|---|---|
| Wolverhampton | 1218 | WVH | 4.52 KM |
| Bilbrook | 4618 | BBK | 7.84 KM |
| Codsall | 4616 | CSL | 9.56 KM |
| Coseley | 1143 | CSY | 9.82 KM |
Nearby Listings
| Address | Price | Type | Score | Distance |
|---|---|---|---|---|
| Cromwell Road, Wolverhampton | £ 275,000 | BUY | 6 / 10 | 0.00 KM |
| Cromwell Road, Wolverhampton, WV10 | £ 213,000 | BUY | 7 / 10 | 0.01 KM |
| Northwood Park Road, Wolverhampton, WV10 | £ 309,995 | BUY | 7 / 10 | 0.15 KM |
| Northwood Park Road, Bushbury, Wolverhampton | £ 325,000 | BUY | 7 / 10 | 0.15 KM |
| Northwood Park Road, Wolverhampton, WV10 | £ 309,995 | BUY | 8 / 10 | 0.15 KM |
Nearby Properties
| Address | Price | Distance |
|---|---|---|
| 40 Cromwell Road | £ 123,000 | 0.00 KM |
| 29 Cromwell Road | £ 160,000 | 0.00 KM |
| 22 Cromwell Road | £ 125,000 | 0.00 KM |
| 8 Cromwell Road | £ 95,000 | 0.00 KM |
| 10 Cromwell Road | £ 102,000 | 0.00 KM |